The UK's Largest Customer Review Website for the Property Industry
The UK's Largest Customer Review Website for the Property Industry
Back to Property Listings
Main Street, Middle Tysoe
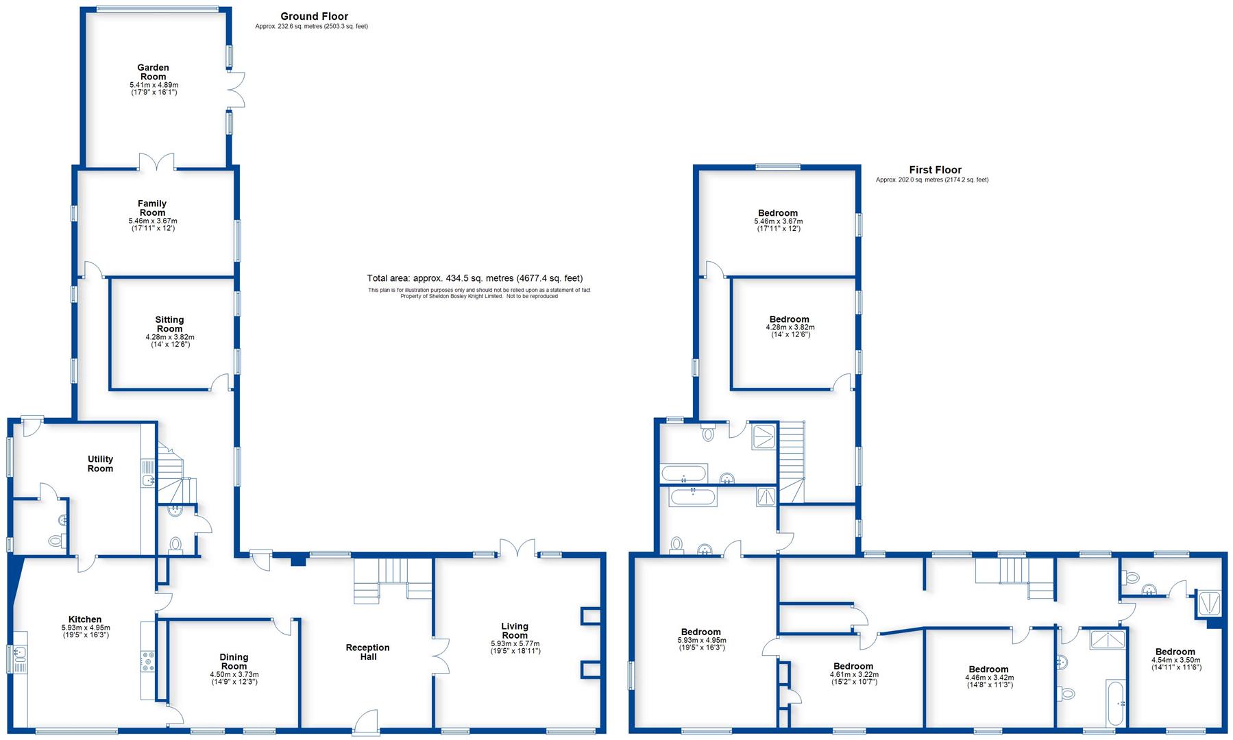
*** AVAILABLE 10th AUGUST 2025 *** Located in the very heart of the quintessentially English village of Middle Tysoe, sits this impressive, stone built, former bakery which has been lovingly extended and modernised to create a wonderfully generous, family home. Just a stones throw from the charming village stores, there is also a number of public footpaths to explore over the neighbouring Cotswold countryside, the nearby Peacock Inn marks an ideal finishing line after braving the British winter weather! The welcoming reception hall of The Old Bakery leads off to two of the five reception rooms but the kitchen is the real hub of this home, oozing warmth and character from the timber beams to the exposed stone walls and fireplace. Practicality has been thought of with the design as the layout includes a rear entrance into a utility/boot room with WC off. The rear extension could make an impressive entertaining space, commanding the best light and view over the garden and paddock beyond due to the vaulted ceiling and fully glazed gable end. With six bedrooms and four bathrooms accessed by two staircases, the arrangement upstairs lends itself to multi-generation living. Externally there is a substantial garden and fenced paddock with a gated driveway accessing the garage and car port to the rear. This country home is offered unfurnished and is pet friendly. Council tax band H. Energy rating D.
Important Information About Tenancy Costs - A holding deposit equivalent to ONE WEEKS RENT is required to secure your interest in the property, until all checks have been completed.
Upon successful referencing contracts will proceed and move in details arranged, the holding deposit will be transferred to your account with Sheldon Bosley Knight and held towards the initial first month's rent unless otherwise agreed.
In case of the following conditions, the holding deposit will be retained, in full to cover company costs incurred:
. False, inaccurate, missing, or misleading information is supplied by you
. Failure by the applicants, or their referees, guarantors (or other third parties supplied by you and relating to your application) to complete the process and sign any Tenancy agreement within 14 days from the date of application (You must ensure that you advise all contacts beforehand that they will be contacted). Should we need to extend this deadline, we will email you to confirm and, in any event, when we inform you that references are complete, the deadline for contract signing will extend by one week (i.e. total 21 days from payment of the holding deposit).
. No legal authority to rent (Failing Right to Rent Checks)
. You and/or any of your co-applicants decide to withdraw from the process after this application is submitted to us.
Online Viewings - Please note due to high volumes of viewing requests, all applicants are required to view the property in person prior to completing an application on the property. An online viewing is for visualisation purposes only and is not a substitute for an in-person viewing.
Kitchen -
Dining Room -
Living Room -
Study -
Play Room -
Sitting Room -
Bedroom One -
En-Suite -
Bedroom Two -
Bedroom Three -
Bedroom Four -
En-Suite -
Bedroom Five -
Bedroom Six -
Bathroom -

This property is marketed by

Sheldon Bosley Knight - Shipston On Stour, Shipston On Stour, CV36
4.8/5 Rating
(1253) reviews
Agent Statistics (Based on 1253 Reviews) :