The UK's Largest Customer Review Website for the Property Industry
The UK's Largest Customer Review Website for the Property Industry
Back to Property Listings
Main Street, Cold Overton, Rutland
The Old Orchard is an impressive, ironstone, single-storey home, built only three years ago it sits on a generous plot with beautiful countryside views, offering flexible accommodation in the peaceful village of Cold Overton.
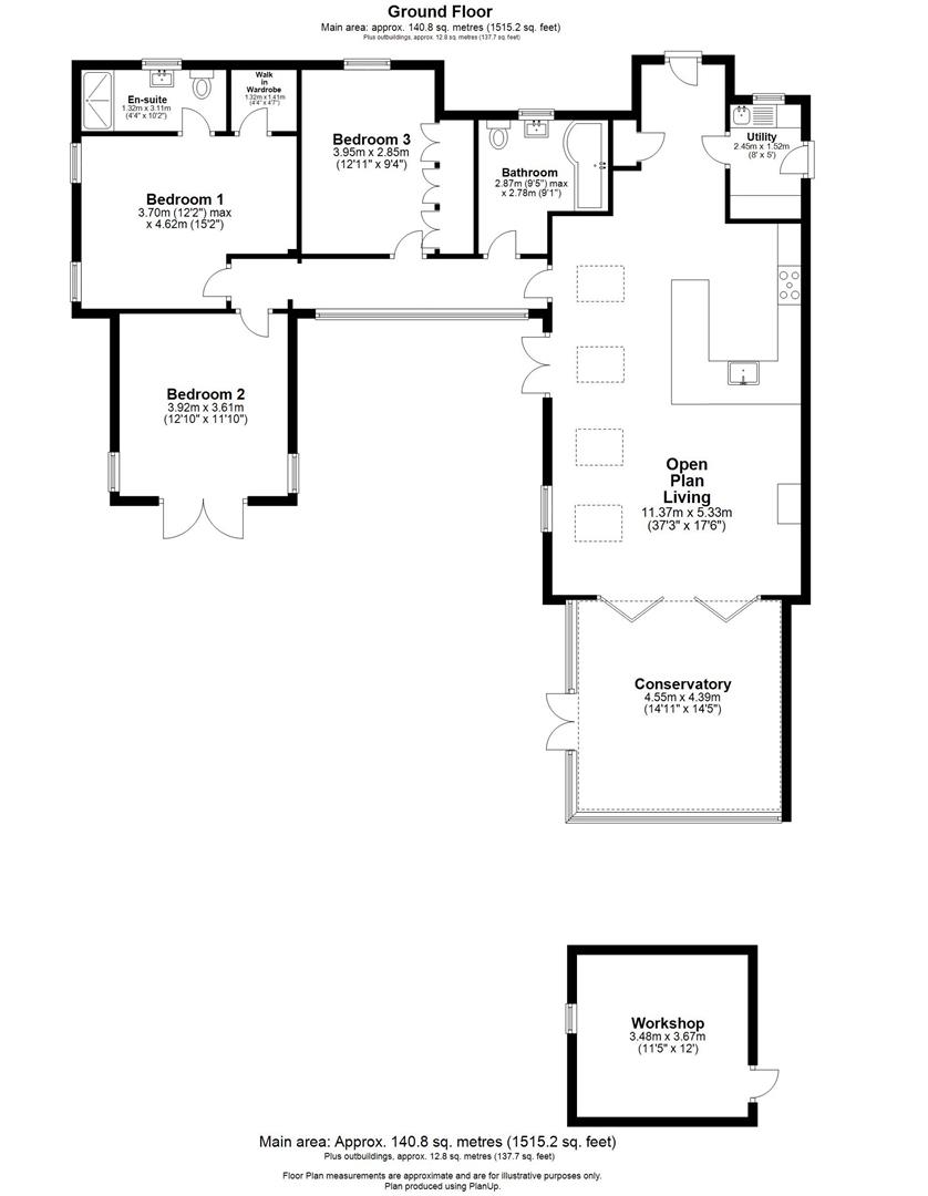
Accommodation - Enter the property into a spacious and open entrance hall with a storage cupboard, built in space for coats and shoes and a door into the utility room. The hall flows into the open plan living kitchen, the focal point of the property. The impressive room has a vaulted ceiling with exposed timber, half of the room being kitchen and dining space and the other half being the living area. The modern kitchen has a great range of units with ample space for appliances and an integrated dishwasher. There are French doors opening from the dining space out to a decked area. The living area features a wood burning stove and a set of bi-fold doors opening into a conservatory. The conservatory sits to the rear of the property with French doors opening into the garden. The utility room sits just off the entrance hall with further storage, a secondary sink, space for white goods and a door out to the side of the property.
A door from the kitchen opens into an inner hallway with floor to ceiling glazing on one side taking advantage of the countryside views. The hallway gives access to the bedroom bathroom accommodation comprising three double bedrooms and two bathrooms. Bedroom one sits to the front of the property overlooking to front garden and is complemented by an ensuite shower room and walk-in wardrobe. Bedroom two sits to the rear with French doors opening out to the patio and garden beyond and bedroom three sits to the front with ample built-in wardrobes. Bedroom two and three are served by a main bathroom comprising a p-shaped bath with shower over, low flush lavatory, wash hand basin and heated towel rail.
Outside - The property is approached through double timber gates onto a large block-paved driveway offering plenty of parking and access to the double carport. There is a front garden, raised from the driveway with a variety of specimen trees and walling on all sides and a path leading round to the rear garden. The rear garden is predominantly laid to lawn with floral and shrub borders, a large patio spanning the almost the entire width of the house and a brick-built workshop. There is also a timber and thatched pergola with built-in seating and table in the perfect spot to enjoy the beautiful countryside views.
Location - Cold Overton is a small village located approximately 4 miles from the market town of Oakham, and is home to the famous Gates Garden Centre. Whilst there are no amenities within the village, the neighbouring villages of Knossington and Langham both offer well-regarded primary schools and public houses. Further amenities and transport links can be found in Oakham, also in the market town of Melton Mowbray situation approximately 8 miles away.
Directional Note - Head out of Oakham on the B640 towards Barleythorpe, take the first exit at the roundabout to Langham, once in Langham take the Cold Overton Road. As you approach the village of Cold Overton you will see Gates Garden Nursery on your left, continue past the entrance and take your next right, signposted "Cold Overton". Continue on the Main Road and you will find The Old Orchard on your right-hand side opposite the church.
Services & Council Tax - The property is offered to the market with all mains services and air source underfloor heating throughout. Council Tax Band D.

This property is marketed by

James Sellicks Estate Agents - London office, London, SW1A
5/5 Rating
(274) reviews
Agent Statistics (Based on 274 Reviews) :