The UK's Largest Customer Review Website for the Property Industry
The UK's Largest Customer Review Website for the Property Industry
Back to Property Listings
Mackie Avenue, Stewarton
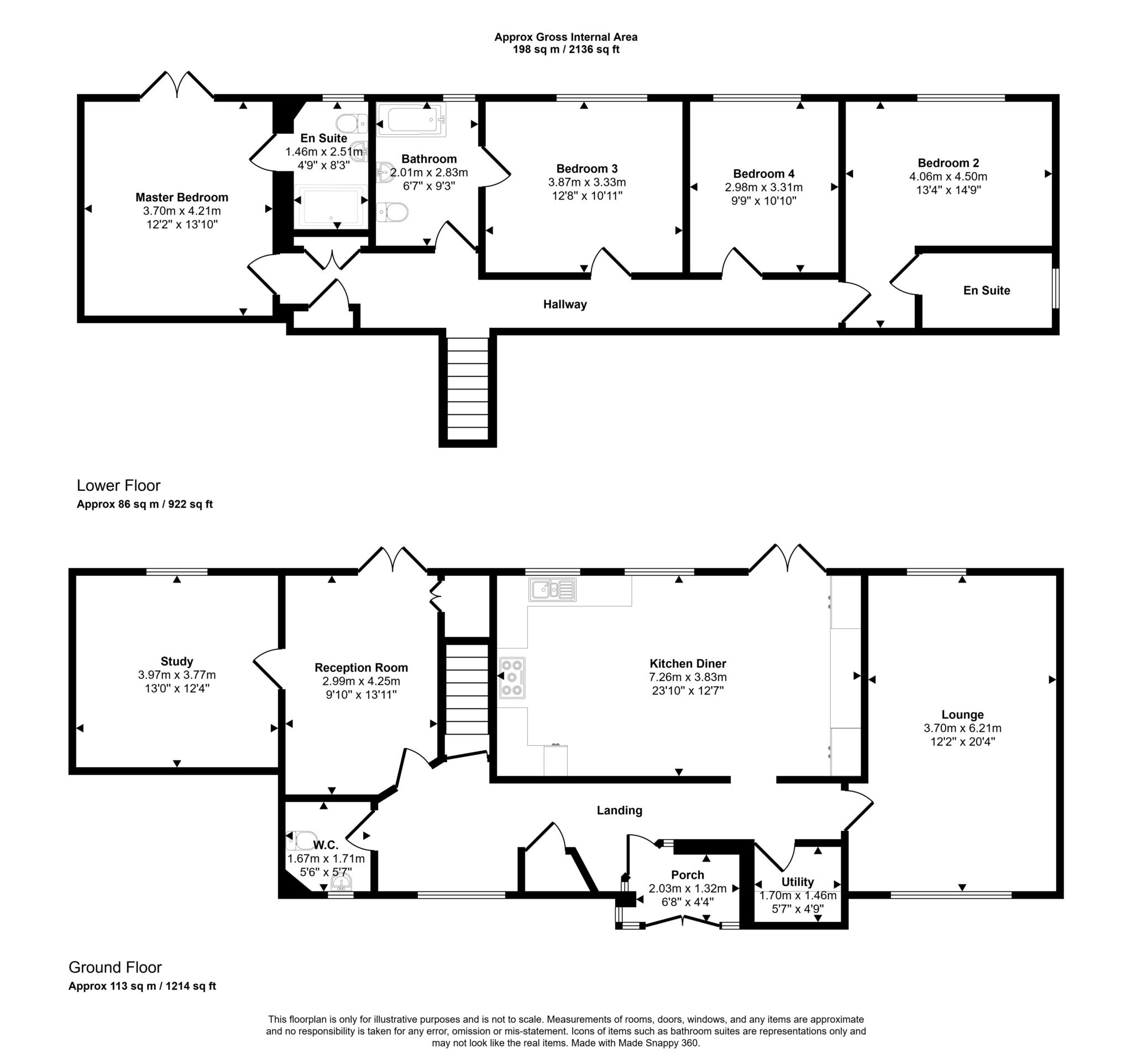
Nestled in the charming town of Stewarton, East Ayrshire, this impressive detached family home is offered to the market at offers in excess of ?425,000. Boasting a generous five bedrooms and four bathrooms, this property provides ample space for a growing family or those who enjoy hosting guests. The accommodation is thoughtfully laid out over two levels, combining comfort, style, and practicality.
Upon entering, you are welcomed into a spacious hallway that leads to the well-proportioned reception room. the room is ideal for more formal entertaining or as a versatile family room, flooded with natural light from the large double-glazed windows. the rooms benefits from tasteful d?cor and a warm, inviting atmosphere. The additional reception room offers a cosy yet elegant space, perfect for relaxing evenings or intimate gatherings.
The kitchen is a highlight of the home, fitted with modern units and ample work surfaces, designed to cater for everyday family life and entertaining alike. that comfortably accommodates a large dining table, making it perfect for family meals or dinner parties, off from the kitchen is the utility room and small porch, and the kitchen opens onto the terrace, where you could sit of an evening enjoying the view.
Downstairs to the bedrooms, the property features five well-sized bedrooms, each offering plenty of storage and natural light. The master bedroom is particularly impressive, boasting an en-suite bathroom and direct access to a private terrace. This outdoor space provides a tranquil retreat where you can enjoy morning coffee or unwind in the evening while taking in views of the garden and surrounding area. The additional bedrooms are served by three further bathrooms, ensuring convenience and privacy for all family members and guests.
Externally, the property benefits from a beautifully maintained garden, ideal for children to play or for alfresco dining during the warmer months. The garden is predominantly laid to lawn with mature shrubs and flower beds, creating a peaceful and private outdoor space. A garage provides secure parking and additional storage, while the driveway offers parking for up to three vehicles, a rare and valuable feature in this sought-after location.
Additional benefits include double glazing throughout and gas central heating, ensuring the home is warm and energy-efficient all year round. The combination of these features makes this property a truly exceptional family home in a desirable part of East Ayrshire.
Stewarton itself is a delightful town steeped in history and community spirit, offering a range of amenities and activities for residents and visitors alike. For those who enjoy the outdoors, the surrounding countryside provides numerous walking and cycling routes, allowing you to explore the beautiful Ayrshire landscape. The nearby Annick Water is a popular spot for leisurely strolls and picnics.
The town centre boasts a variety of shops, cafes, and local businesses, providing everything you need for day-to-day living. There are also several pubs and restaurants offering traditional Scottish fare and contemporary dining experiences. Stewarton is well served by schools, making it an excellent choice for families.
For those interested in culture and heritage, the town hosts regular community events and has easy access to nearby historic sites and castles. Golf enthusiasts will appreciate the proximity to several well-regarded golf courses in the area.
Transport links are convenient, with good road connections to Glasgow and Ayr, as well as regular bus services. This makes Stewarton an ideal location for commuters seeking a peaceful home within easy reach of the city.
In summary, this detached property in Stewarton offers spacious, flexible living accommodation with excellent outdoor space and parking facilities. Coupled with the charm and amenities of the town, it presents a wonderful opportunity to acquire a family home in a highly desirable part of East Ayrshire. Viewing is highly recommended to fully appreciate all that this home and location have to offer.
LOUNGE - 12'2" (3.71m) x 20'4" (6.2m)
KITCHEN - 23'10" (7.26m) x 12'7" (3.84m)
UTILITY ROOM - 5'7" (1.7m) x 4'9" (1.45m)
PORCH - 6'8" (2.03m) x 4'4" (1.32m)
WC - 5'4" (1.63m) x 5'7" (1.7m)
STUDY / BEDROOM ONE - 13'0" (3.96m) x 12'4" (3.76m)
2ND RECEPTION - 9'10" (3m) x 13'11" (4.24m)
BEDROOM TWO - 13'4" (4.06m) x 13'3" (4.04m)
EN SUITE - 5'0" (1.52m) x 8'2" (2.49m)
BEDROOM THREE - 12'8" (3.86m) x 10'10" (3.3m)
MASTER BEDROOM - 8'11" (2.72m) x 13'10" (4.22m)
EN SUITE - 4'10" (1.47m) x 8'2" (2.49m)
BATHROOM - 6'7" (2.01m) x 9'3" (2.82m)
Notice
Please note we have not tested any apparatus, fixtures, fittings, or services. Interested parties must undertake their own investigation into the working order of these items. All measurements are approximate and photographs provided for guidance only.
Council Tax
East Ayrshire Council, Band F
Utilities
Electric: Mains Supply
Gas: Mains Supply
Water: Mains Supply
Sewerage: Mains Supply
Broadband: FTTP
Telephone: Landline
Other Items
Heating: Gas Central Heating
Garden/Outside Space: Yes
Parking: Yes
Garage: Yes

Agent Statistics (Based on 0 Reviews) :