The UK's Largest Customer Review Website for the Property Industry
The UK's Largest Customer Review Website for the Property Industry
Back to Property Listings
Lynn Street, Swaffham
Situated in the town centre in Swaffham, Longsons are delighted to bring to the market this one bedroom, mid terrace cottage. The property offers kitchen/dining area, log burning stove, garden, gas central heating and UPVC double glazing.
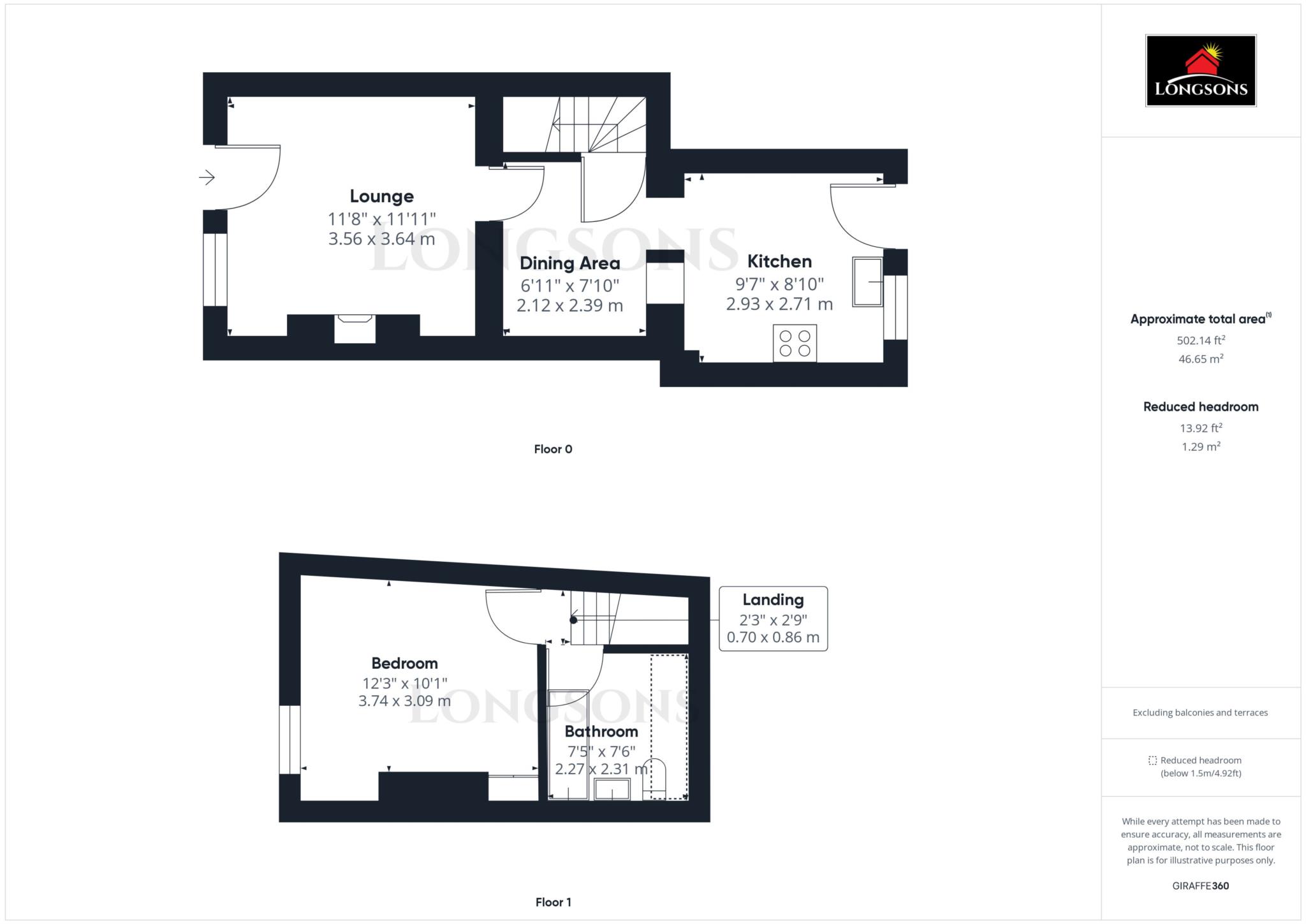
Briefly the property offers; lounge, kitchen/dining area, one bedroom, bathroom, garden, gas central. heating, UPVC double glazing.
Available unfurnished, non smokers, no pets.
SWAFFHAM
Swaffham is a popular Norfolk market town with a good selection of shops, pubs and restaurants, social clubs, sports clubs and a popular 18 hole golf club. The town is well catered for with a Waitrose and other supermarkets, an excellent Saturday market, three doctors surgery`s, free parking throughout the town and also primary, secondary and higher schools. There is easy access to the A47 with Kings Lynn approx 15 miles, Downham Market approx 15 miles, and approx 30 miles to the city of Norwich, all of which with rail links to London. Swaffham has an excellent bus services to local villages and surrounding towns and cities.
Lounge - 11'8" (3.56m) x 11'11" (3.63m)
Feature Inglenook style brickwork fireplace with inset log burning stove, composite entrance door to front aspect, UPVC sliding sash double glazed window to front aspect, two radiators, pamment tiles to floor.
Kitchen/Dining Area - 9'7" (2.92m) x 8'10" (2.69m)
Kitchen units to walls and floor complemented by a work surface over and stainless steel sink, space for electric oven, space and plumbing for washing machine, wall mounted gas fired central heating boiler, space for tall upright fridge/freezer, double glazed composite entrance door opening to rear garden, UPVC double glazed window to rear aspect, two radiators, door providing access to stairs, built in understairs storage cupboard, pamment tiles to floor.
Stairs and Landing
Cupboard housing electric meters.
Bedroom - 12'3" (3.73m) x 10'1" (3.07m)
Built in storage cupboard, UPVC double glazed sliding sash window to front aspect, wooden boards to floor, radiator.
Bathroom
Bathroom suites comprising bath with mixer shower over and shower screen, wash basin, WC, double glazed velux roof window, radiator.
Rear Garden
Enclosed rear garden, steps up to area laid to lawn, patio seating area laid to block paving, brick built storage shed to bottom of garden, outside light, flint wall and wooden fence to perimeter.
what3words /// crackles.inversion.starring
Notice
All photographs are provided for guidance only.
Redress scheme provided by: The Property Ombudsman (D8980)
Client Money Protection provided by: NFoPP Client Money protection Scheme (C0125843)
Council Tax
Breckland District Council, Band A
Utilities
Electric: Mains Supply
Gas: None
Water: Mains Supply
Sewerage: None
Broadband: None
Telephone: None
Other Items
Heating: Gas Central Heating
Garden/Outside Space: Yes
Parking: No
Garage: No

Agent Statistics (Based on 1 Reviews) :