The UK's Largest Customer Review Website for the Property Industry
The UK's Largest Customer Review Website for the Property Industry
Back to Property Listings
Lyndhurst Road, London, N22
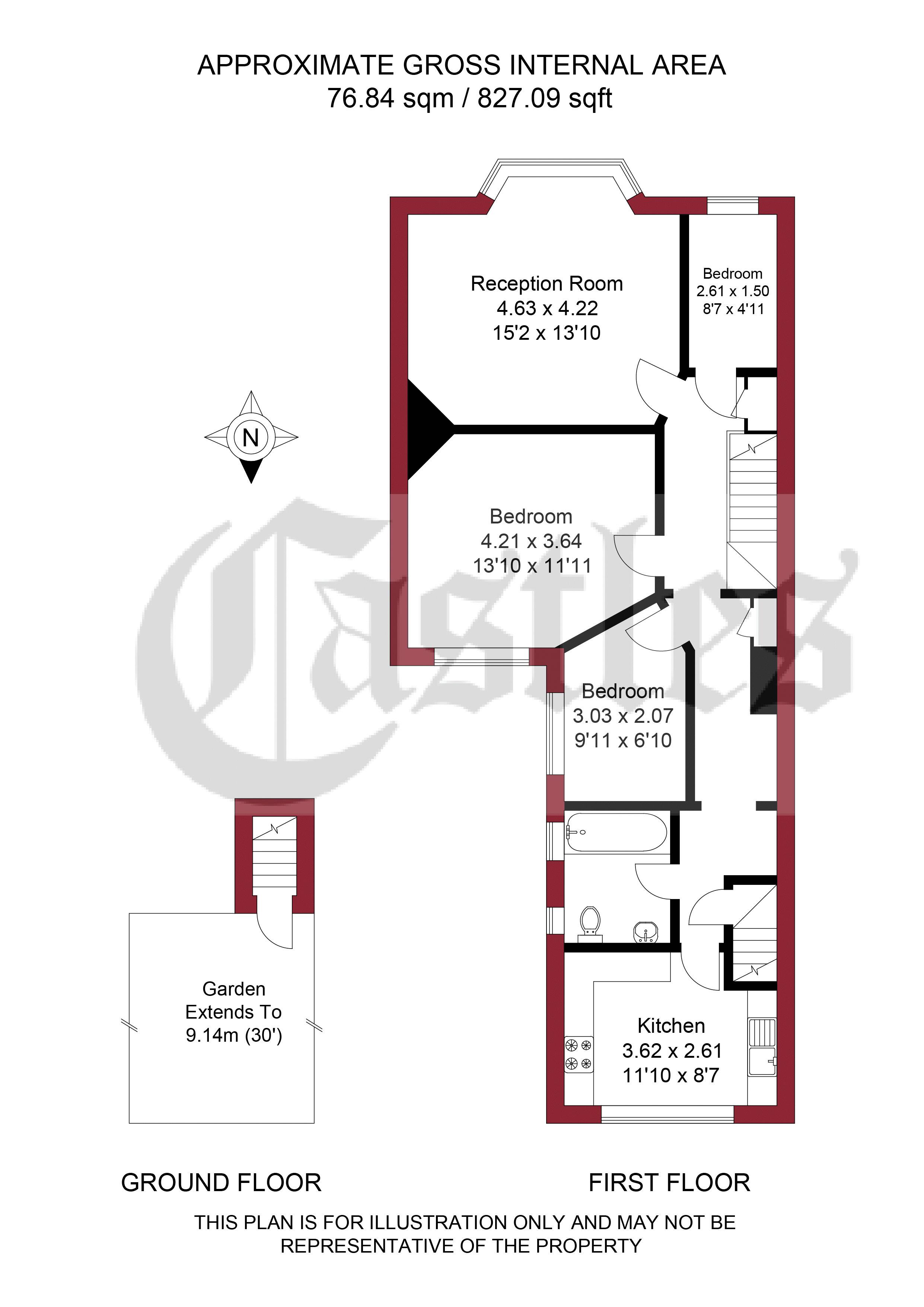
Guide Price £400,000-£425,000. Castles are pleased to present this first floor FREEHOLD, two/three-bedroom, period maisonette with private garden. The property consists of; reception room, three bedrooms, separate kitchen and family bathroom. You then have stairs towards the rear of the property with direct access in to your own garden. Situated directly off the High Road, N22 so being close to bus stops and Wood Green tube station (Piccadilly Line). Offered chain free. Call to book a viewing as soon as possible to avoid disappointment.

This property is marketed by

Castles Estate Agents (London) - Palmers Green, London, N13
4.9/5 Rating
(939) reviews
Agent Statistics (Based on 939 Reviews) :