The UK's Largest Customer Review Website for the Property Industry
The UK's Largest Customer Review Website for the Property Industry
Back to Property Listings
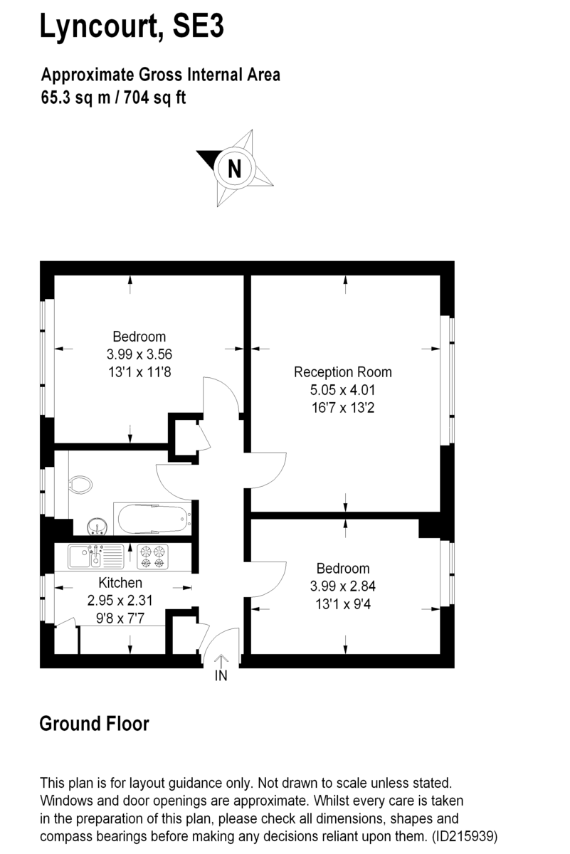
Lyncourt, The Orchard, Blackheath, SE3
A well presented 2 bedroom ground floor flat with far reaching views located in this modern block almost touching the Heath and within easy walking distance of Blackheath Village and station. (see video walk through)
Details - A well presented 2 bedroom ground floor flat, situated in a small block almost touching the Heath and offering great views across it.
The property offers a modern and well equipped kitchen.
Two double bedrooms and a neat and well specified bathroom.
The property also had the added benefit of off street allocated parking.
Its close to village shops and the station.

Agent Statistics (Based on 344 Reviews) :