The UK's Largest Customer Review Website for the Property Industry
The UK's Largest Customer Review Website for the Property Industry
Back to Property Listings
Low Farm Court, Womersley, Doncaster
A charming SIX BEDROOM detached property with generous accommodation in a prime village location. VIEWING ESSENTIAL. EPC rating C74.
Introducing to the market this exceptional six bedroom, stone built detached residence, ideally located in the highly sought after rural village of Womersley and finished to an impressive standard throughout, this substantial home offers well proportioned accommodation across three floors, featuring a high specification interior, generous off road parking, and a spacious, enclosed rear garden.
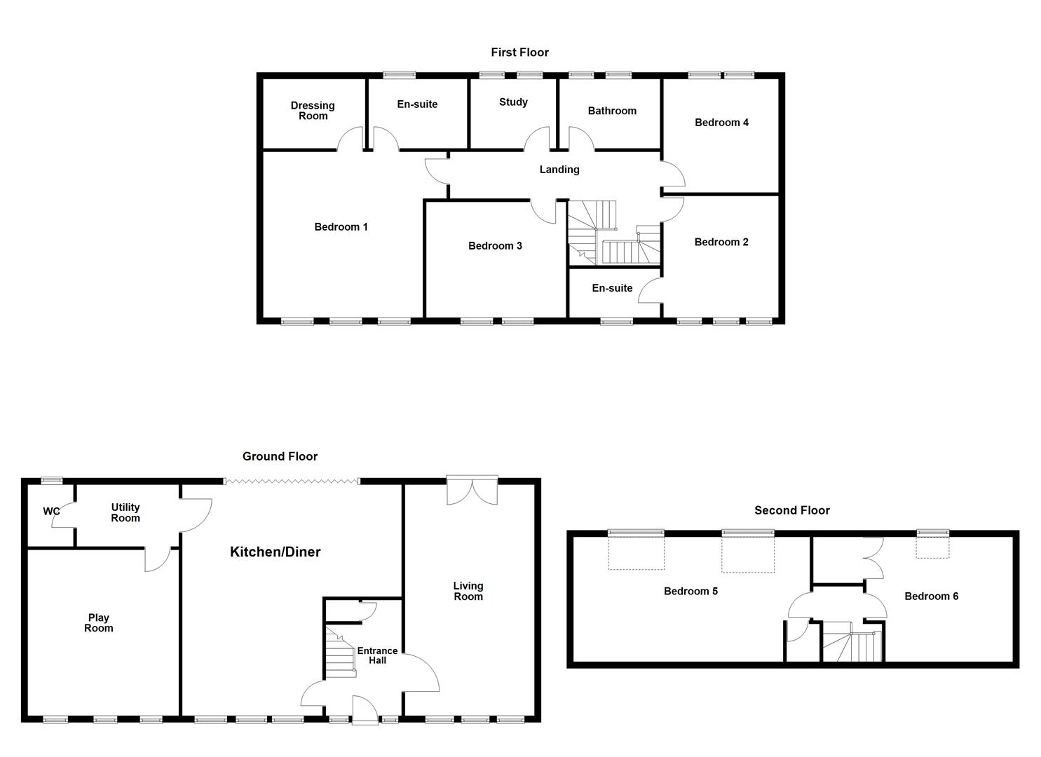
The ground floor comprises a welcoming entrance hall, a formal living room, an expansive open plan kitchen/dining area, separate utility room, playroom and a guest W.C. The first floor landing leads to four well sized double bedrooms, including a luxurious principal suite with dressing room and en suite bathroom, and a second bedroom also benefiting from en suite facilities. A separate study and contemporary house bathroom complete this level. The second floor offers access to two additional double bedrooms, providing flexible living or guest accommodation. Externally, to the front, a block paved driveway provides ample off road parking, alongside a lawned garden and flagged path to the entrance. A timber gate leads to the enclosed rear garden, which features a large lawn, decked seating area, timber shed and additional side parking for two vehicles.
Womersley is a picturesque rural village, ideal for those who enjoy countryside walks and a peaceful setting. Local amenities, including charming public houses, are nearby, with a wider selection of shops and schools easily accessible in Pontefract and Knottingley. For commuters, the nearby A1 provides excellent connectivity to the wider motorway network, including the M62 and M1.
This outstanding home is ideally suited for the growing family, and an early viewing is strongly recommended to fully appreciate the quality and space on offer.
Accommodation -
Entrance Hall - Composite front entrance door, understairs storage cupboard, staircase to the first floor landing, doors to the kitchen/diner and living room.
Living Room - 6.93m x 3.83m (22'8" x 12'6") - UPVC patio doors leading to the rear garden and UPVC double glazed windows to the front.
Kitchen/Diner - 4.47m x 6.62m (min) x 6.70m (max) (14'7" x 21'8" ( - Range of wall and base unit with quartz work surface over, composite sink and drainer with mixer tap, island with integrated cooker, integrated microwave, five ring induction hob, extractor fan. Integrated dishwasher, marble porcelain effect tiled flooring, UPVC double glazed windows to the front elevation, spotlights, bi-folding doors leading to the rear garden and door to the utility room.
Utility - 4.20m x 1.76m (13'9" x 5'9") - Laminate work surface over with space and plumbing for a washing machine and dryer. Space for fridge/freezer, marble porcelain effect tiled flooring, UPVC double glazed windows to the rear elevation and doors to the play room and downstairs w.c.
W.C. - 1.61m x 1.52m (5'3" x 4'11") - Marble porcelain effect tiled flooring, chrome style ladder radiator, low flush w.c., wash hand basin with mixer tap, storage units, extractor fan and UPVC double glazed frosted window to the rear elevation.
Play Room - 3.32m x 4.93m (10'10" x 16'2") - UPVC double glazed windows to the front elevation, storage cupboard, radiator and spotlights.
First Floor Landing - Doors to four double bedrooms, house bathroom and study. A further set of stairs providing access to the second floor landing.
Bedroom One - 5.01m x 4.74m (16'5" x 15'6") - Radiator, UPVC double glazed windows to the front elevation and doors to the en suite shower room and dressing room.
Dressing Room - 3.12m x 1.99m (10'2" x 6'6") - UPVC double glazed frosted window to the rear elevation and radiator
En Suite Shower Room/W.C. - 2.23m x 1.99m (7'3" x 6'6") - Low flush w.c., wash basin with mixer tap and storage, corner shower unit with shower head attachment. Tiled flooring, UPVC double glazed frosted window to the rear elevation, chrome ladder style radiator, extractor fan and spotlights.
Study - 2.47m x 2.15m (8'1" x 7'0") - Radiator and UPVC double glazed window to the rear elevation.
Bathroom/W.C. - 1.99m x 2.99m (6'6" x 9'9") - Tiled bath with overhead shower and pull out shower attachment, Villeroy & Bosch low flush w.c. and double hand wash basin with storage. Radiator, UPVC double glazed frosted window to the rear elevation and spotlights.
Bedroom Two - 3.39m x 3.58m (11'1" x 11'8") - Radiator, UPVC double glazed windows to the front elevation and door to the en suite shower room.
En Suite Shower Room/W.C. - 2.55m x 1.33m (8'4" x 4'4") - Low flush w.c., shower unit with shower head attachment and wash basin. Marble porcelain effect tiled flooring, chrome ladder style radiator, spotlights, extractor fan and UPVC double glazed frosted window to the front.
Bedroom Three - 3.99m x 3.34m (13'1" x 10'11") - Radiator and UPVC double glazed windows to the front elevation.
Bedroom Four - 3.48m x 3.57m (11'5" x 11'8") - UPVC double glazed windows to the rear elevation and radiator.
Second Floor Landing - Doors to two further double bedrooms.
Bedroom Five - 3.95m x 8.30m (12'11" x 27'2") - Two radiators, two velux windows to the rear elevation and additional storage space.
Bedroom Six - 3.43m x 5.05m (11'3" x 16'6") - Access to eaves storage, radiator and velux window to the rear elevation.
Outside - To the front of the property is a block paved driveway offering ample off road parking, complemented by a neatly maintained lawn and a flagged pathway leading to the main entrance. A timber gate provides access to the rear garden, which features a generously sized lawn, a flagged pathway extending across the width of the property, a timber decked seating area, and a useful garden shed. The garden is fully enclosed with timber fencing, ensuring privacy and security. Additionally, there is further off-road parking to the side of the property, suitable for two vehicles.
Council Tax Band - The council tax band for this property is F.
Floor Plan - This floor plan is intended as a rough guide only and is not to be intended as an exact representation and should not be scaled. We cannot confirm the accuracy of the measurements or details of this floor plan.
Viewings - To view please contact our Pontefract office and they will be pleased to arrange a suitable appointment.
Epc Rating - To view the full Energy Performance Certificate please call into one of our local offices.

This property is marketed by

Richard Kendall Estate Agent - Pontefract, Pontefract, WF8
4.9/5 Rating
(1653) reviews
Agent Statistics (Based on 1653 Reviews) :