The UK's Largest Customer Review Website for the Property Industry
The UK's Largest Customer Review Website for the Property Industry
Back to Property Listings
Loughborough Park, SW9
Keating Estates are proud to present to market a bright and spacious two double bedroom, two bathroom apartment with a South-East facing private terrace, set within a secure and contemporary development in an ideal location. Moments from the heart of Brixton and a short stroll to Herne Hill.
Full Description - Keating Estates are proud to present to market a bright and spacious two double bedroom, two bathroom apartment with a South-East facing private terrace, set within a secure and contemporary development in an ideal location. Moments from the heart of Brixton and a short stroll to Herne Hill, the property benefits from efficient choices of transport links alongside great amenities, restaurants and nightlife, and even the outstanding schools in Herne Hill.
Natural light is a key feature throughout, with large, high-specification windows designed to maximise brightness while maintaining warmth and tranquillity. Built to modern standards, the apartment is exceptionally well-insulated, ensuring energy efficiency and promoting a quiet, comfortable ambience.
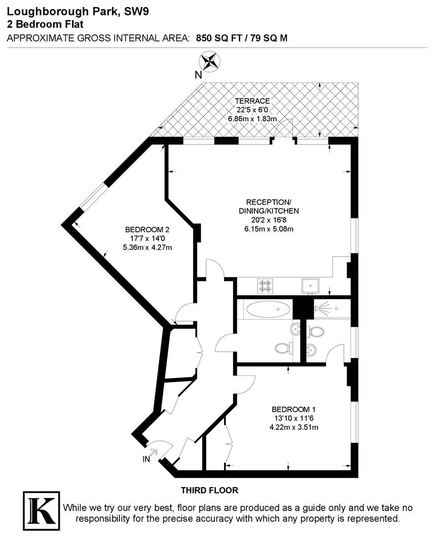
The heart of the home is the spacious open-plan reception, an inviting setting for relaxing, entertaining or hosting dinner parties. Floor-to-ceiling glass windows on two aspects create a bright and airy environment, while the generous proportions offer flexibility in layout. The sleek contemporary kitchen sits neatly to the rear of this sociable space, fully fitted with integrated appliances, ample storage and glossy cabinetry which reflects the light to enhance the modern finish.
A large glass door opens from the lounge onto the private South-East facing terrace, perfect for al fresco dining, a morning coffee or an evening nightcap. Decked for ease of maintenance and framed by elegant glass balustrades, the terrace offers a sheltered yet open feel, beautifully extending the living space.
Both bedrooms are generous doubles, positioned at opposite ends of the apartment for maximum privacy. The principal bedroom benefits from built-in wardrobes and the luxury of an en-suite shower room, while the second bedroom, currently arranged as a nursery, provides versatility as a home office, guest room or comfortable double. Conveniently set in the centre of the home, just across from the second bedroom, the main bathroom offers a soothing environment ideal for a relaxing soak in the bathtub.
Practicality has been well-considered with three substantial hallway cupboards providing excellent storage. Further benefits of this sought-after development include secure entry with intercom and CCTV, lift access, landscaped communal gardens, sports facilities, a children's playground, secure bike storage and the opportunity to apply for an allotment.
This beautiful home enjoys an unrivalled location within the Electric Quarter, situated moments from the heart of buzzing Brixton. The wonders of trendy Brixton Village are just a six-minute stroll down the road, and purchasers will be able to sample the culinary offerings of local favourites every day, from the likes of Fish Wings n Tings, Eat of Eden, Cheese+Fizz and Honest Burger, to name just a few. Purchasers will have all the local amenities on the doorstep, but enjoy peace and quiet, tucked away in this well-maintained modern development. The lush, open spaces of the award-winning Brockwell Park are a ten-minute walk away, along with its popular 1930s Lido and superb sports facilities. The restaurants, cafes and the French market in the village-esq Herne Hill are all within easy walking distance, as well as being within the catchment of outstanding schools in Herne Hill.
The transport links are excellent, with the start of the Victoria Line in close proximity at Brixton tube, plus the trains at Brixton overground station, and Thames Link services from Loughborough Junction, not to mention a wide selection of day and night buses ready to whisk you into the city and surrounding areas.
Chain-free.

Agent Statistics (Based on 1262 Reviews) :