The UK's Largest Customer Review Website for the Property Industry
The UK's Largest Customer Review Website for the Property Industry
Back to Property Listings
Lobley Street, Heckmondwike
Situated on an extensive plot, is this larger than average through terraced property. The impressive rear garden has scope to be developed subject to necessary permissions and has gated driveway access (see architects proposal). The spacious property offers two good sized living areas, along with a groundfloor shower room and currently has two first floor bedrooms, but has a versatile layout that could be made into three, along with a house bathroom. Featuring both uPVC double glazing and gas central heating, this would make an ideal family home and an early viewing is strongly recommended to appreciate the potential on offer. The property is located within easy reach of local amenities, well regarded schooling and major road and rail links and is available with no onward chain.
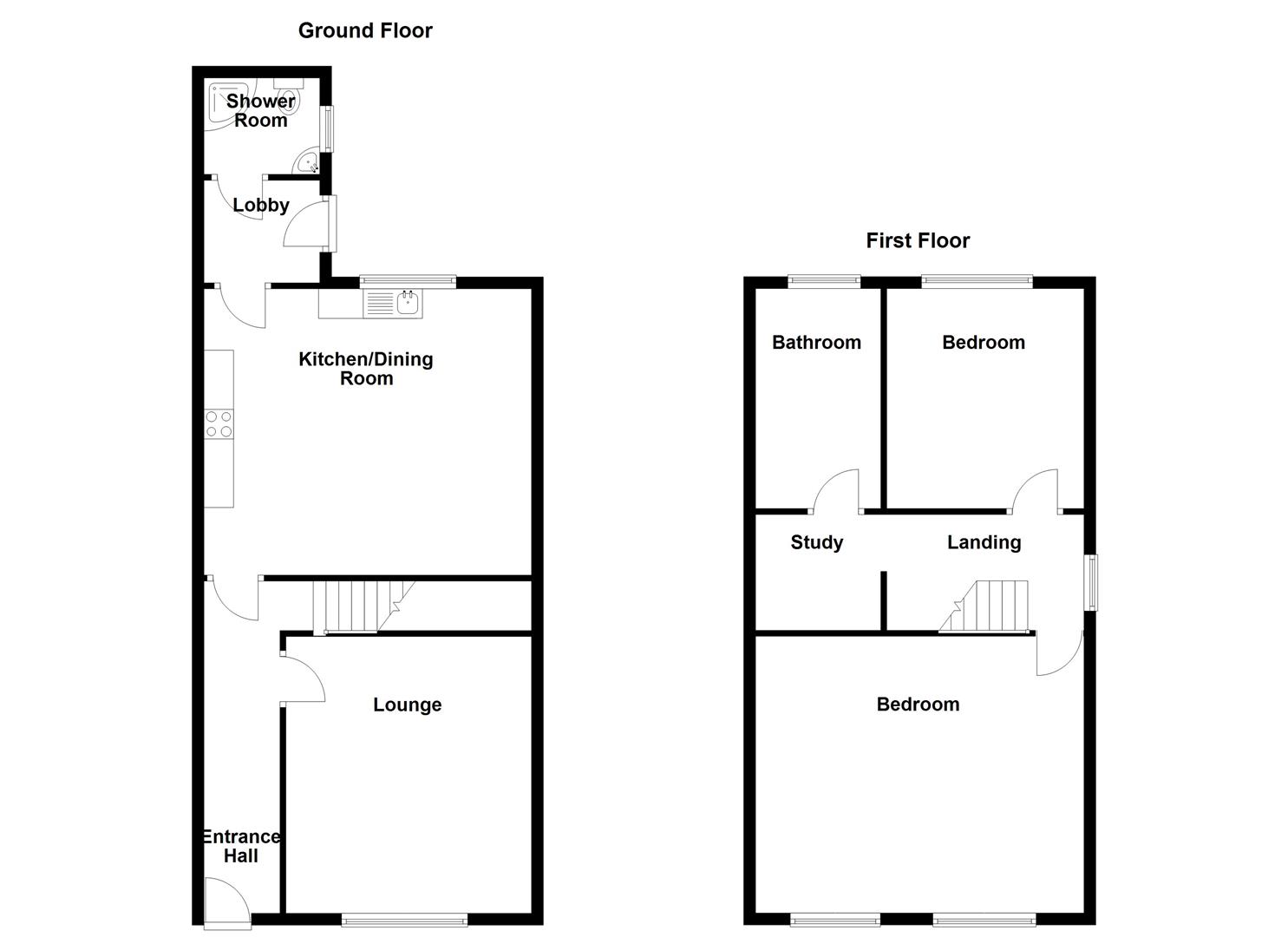
Ground Floor -
Entrance Hall - Accessed via a uPVC front door, the hallway has stairs leading to the first floor accommodation.
Lounge - 4.42m x 4.11m (14'6" x 13'6") - Located to the front, this good sized lounge has a uPVC double glazed window and a central heating radiator. To one wall is a fireplace with hearth and fire. The lounge has many original features, including ceiling coving and detailing and picture rail.
Kitchen/Dining Room - 5.33m x 4.90m (17'6" x 16'1") - This spacious room has uPVC double glazed windows to the side and rear, along with inbuilt storage cupboards and a central heating radiator. To one wall is a feature fireplace with hearth and inset fire. and the room retains original ceiling and wall detailing. The kitchen area is fitted with modern wall and base units with work surfaces, tiled splashbacks and inset sink unit with mixer tap and drainer. Integrated within the units is a four ring hob with extractor over and under oven, along with a fitted fridge. A door leads from this room down to a useful storage cellar.
Lobby - Having an exterior uPVC door leading out to the rear.
Ground Floor Shower Room - Furnished with a walk in shower cubicle, a wash basin and a WC. There is tiling to the walls and a uPVC double glazed window.
First Floor -
Landing - Having a side uPVC double glazed window.
Bedroom 1 - 5.69m x 4.50m (18'8" x 14'9") - The spacious master bedroom overlooks the front and has two uPVC double glazed windows and a central heating radiator.
Bedroom 2 - 3.86m x 3.10m (12'8" x 10'2") - Enjoying views over the rear garden via a uPVC double glazed window and having a central heating radiator.
Study Area - 2.59m x 2.29m (8'6" x 7'6") - Located off the landing and having access into the bathroom.
Bathroom - A large bathroom furnished with a four piece suite comprising of panelled bath, independent shower cubicle, wash basin and WC. There is some wall tiling, a central heating radiator and a uPVC double glazed window.
Outside - To the front of the property is a small forecourt garden with outer walling and gateway. To the side is a wide gated driveway leading to the rear. The extensive and impressive rear garden has large lawned and planted sections, along with a summerhouse.
Boundaries & Ownerships: - The boundaries and ownerships have not been checked on the title deeds for any discrepancies or rights of way. All prospective purchasers should make their own enquiries before proceeding to exchange of contracts.
Tenure: -
Council Tax Band: - Band B
Mortgages: - Bramleys have partnered up with a small selection of independent mortgage brokers who can search the full range of mortgage deals available and provide whole of the market advice, ensuring the best deal for you. YOUR HOME IS AT RISK IF YOU DO NOT KEEP UP REPAYMENTS ON A MORTGAGE OR OTHER LOAN SECURED ON IT.
Online Conveyancing Services: - Available through Bramleys in conjunction with leading local firms of solicitors. No sale no legal fee guarantee (except for the cost of searches on a purchase) and so much more efficient. Ask a member of staff for details.

Agent Statistics (Based on 463 Reviews) :