The UK's Largest Customer Review Website for the Property Industry
The UK's Largest Customer Review Website for the Property Industry
Back to Property Listings
Lindley Street, Blackburn
Nestled on Lindley Street in Blackburn, this charming mid-terrace house presents an excellent opportunity for both first-time buyers and savvy investors. Spanning 979 square feet, the property boasts two well-proportioned bedrooms, making it ideal for small families or those seeking a comfortable living space.
Upon entering, you are welcomed by an entrance hall which leads into a spacious reception room that offers a warm and inviting atmosphere. The property also offers a spacious kitchen and features a delightful conservatory, which provides a lovely spot to enjoy the south facing garden and natural light throughout the year.
The house includes a well-appointed bathroom, ensuring convenience for all residents. With no onward chain, this property is ready for you to move in without delay, allowing for a smooth transition into your new home.
Situated in a desirable area of Blackburn, this terraced house is not only a fantastic place to live but also represents a sound investment opportunity. Whether you are looking to make your first step onto the property ladder or seeking a rental property, this home is sure to meet your needs. Don't miss out on the chance to make this lovely house your own.
Lounge - 4.13 x 4.06 (13'6" x 13'3") - UPVC Double Glazed front door which leads into the entrance hall and reception room. The reception room comprises of UPVC double glazed window, laminate flooring, gas central heating radiator, meter cupboards, ample plug sockets and tv point.
Kitchen - 4.11 x 3.01 (13'5" x 9'10") - Spacious kitchen comprising of laminate flooring, gas central heating radiator, ceiling light, kitchen base units with complimentary worktops, fitted electric hob and oven, stainless steel sink, plumbing for washing machine, combination boiler, ample plug sockets and access to the understairs storage and conservatory.
Conservatory - 2.59 x 3.16 (8'5" x 10'4") - UPVC double glazed window to the side of the property, UPVC double glazed patio doors to the rear garden, central heating radiator, laminate flooring, plug sockets and ceiling light.
Garden - Easy Maintainable South facing Garden.
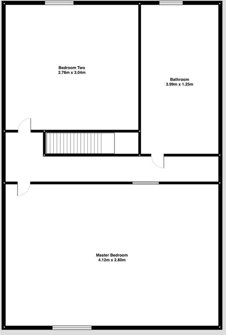
Master Bedroom - 4.12 x 2.80 (13'6" x 9'2") - UPVC double glazed window to the front of the property, window to the hallway, central heating radiator, plug sockets and grey fitted carpet.
Second Bedroom - 2.78 x 3.04 (9'1" x 9'11") - UPVC double glazed window to the rear of the property, central heating radiator, plug sockets and grey fitted carpet.
Bathroom - 3.99 x 1.25 (13'1" x 4'1") - Three piece suite comprising of; panelled bath with electric overhead shower, wash basin with chrome tap, dual flushed WC, part tiled elevations, lino flooring, UPVC double glazed frosted window to the rear of the property and towel radiator.
Hallway - Hallway to the two bedrooms and bathrooms which is fitted with grey carpet.

Agent Statistics (Based on 13 Reviews) :