The UK's Largest Customer Review Website for the Property Industry
The UK's Largest Customer Review Website for the Property Industry
Back to Property Listings
Leeds Road, Mirfield
Providing an ideal opportunity for development, is this 3/4 bedroom stone built detached cottage.
Set in greenbelt countryside, the property at present provides a substantial detached property with adjacent former wash house, in total the buildings extend to over 2,250 sqft.
Offering an array of development opportunities in that the property could be renovated to provide one substantial family home, or alternatively demolition of the existing buildings to provide a select development of detached properties (subject to local authority approval).
A pre application has been submitted to Kirklees and has received a favourable response for this development, copies of which can be provided on request.
Seldom do opportunities of this nature appear on the open market to create a select cul-de-sac development.
The property is handily located for both J.25 and J.26 of the M62 motorway network and is also within 1.5 miles from Mirfield town centre, which provides rail links to both Huddersfield, Leeds, Manchester and London.
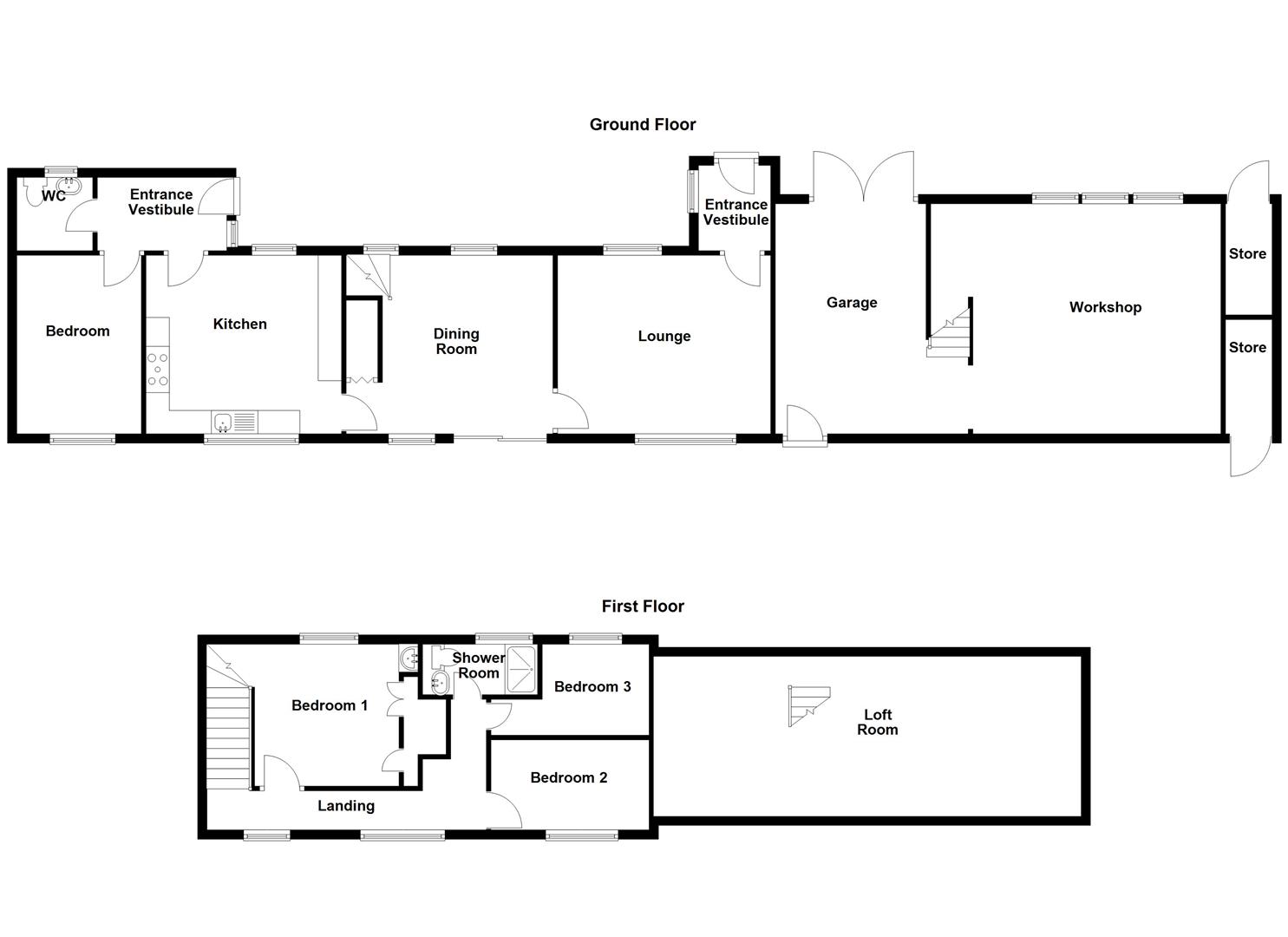
Ground Floor: - Enter the property via a uPVC double glazed exterior door into:-
Entrance Vestibule - With doors accessing bedroom 4/study, ground floor WC and dining kitchen.
Cloakroom/Wc - Furnished with a 2 piece suite comprising of a low flush WC and pedestal wash hand basin. There is also a double glazed window to the front elevation and a central heating radiator.
Bedroom 4/Study - 3.84m x 2.67m (12'7" x 8'9") - Offering a variety of uses with a double glazed window to the rear elevation and a central heating radiator.
Breakfast Kitchen - 3.84m x 4.19m (12'7" x 13'9") - Fitted with a range of base and wall units, with laminated work surfaces and tiled splashbacks. There is an inset stainless steel sink unit with side drainer and mixer tap, 5 ring hob, double oven, extractor fan, wall mounted gas fire and double glazed windows to both the front and rear aspects. A door leads into the dining room.
Dining Room - 3.84m x 4.45m (12'7" x 14'7") - This good sized reception room has a feature Inglenook fireplace and staircase rising to the first floor. There is also 2 double glazed windows to the front elevation, double glazed window to the rear elevation, uPVC double glazed sliding doors which lead out to the rear garden, as well as a concertina door which accesses a useful understairs storage cupboard.
Lounge - 3.84m x 4.57m (12'7" x 15'0") - Having a stone built fireplace with rosewood mantel, space for a gas fire and 2 double glazed windows to both the front and rear aspect. There is also a central heating radiator and a timber and glazed door which accesses the entrance vestibule.
Entrance Vestibule - With a double glazed window to the side elevation and a uPVC double glazed door which accesses the front.
First Floor: -
Landing - Having 2 uPVC double glazed windows to the rear elevation and doors accessing all of the first floor accommodation.
Bedroom 1 - 4.52m max x 3.05m (14'10" max x 10'0") - Having fitted wardrobes which offer useful storage, wall mounted vanity sink unit, central heating radiator and double glazed window to the front elevation which provides far reaching views.
Bedroom 2 - 3.40m x 1.93m (11'2" x 6'4") - Situated to the rear of the property, having a central heating radiator and double glazed window which provides views across the garden and farmland.
Bedroom 3 - 3.40m max x 1.96m (11'2" max x 6'5") - With far reaching views to the front via a double glazed window, this single bedroom has a central heating radiator.
Shower Room - Furnished with a 3 piece suite comprising of walk-in shower, vanity sink unit with useful storage cupboards and an encased low flush WC. There is also a central heating radiator and a double glazed window to the front.
Outside: - To the front of the property there is an enclosed garden area which is currently utilised as a vegetable garden, with mature orchard trees, plants and stone walling. There is a tarmacadam driveway to the front of the property which provides off road parking for a number of vehicles and there are further timber outdoor buildings which offer storage. A stone path leads down the side of the property to the rear garden which is well stocked with mature planted trees and shrubbery. There is also an ornamental pond, lawned garden and backs on to open farmland.
Garage/Workshop - 9.17m x 4.93m (30'1" x 16'2") - Offering further development potential, is this garage/workshop which has timber double doors to the front and 3 double glazed windows. There are also stairs which rise to the loft room which has 2 Velux windows. Beyond the workshop there are two useful brick built stores.
Boundaries & Ownerships: - The boundaries and ownerships have not been checked on the title deeds for any discrepancies or rights of way. All prospective purchasers should make their own enquiries before proceeding to exchange of contracts.
Directions: - Leave our Mirfield office via Huddersfield Road travelling in the direction of Huddersfield. After approximately three quarters of a mile take the right hand fork onto Stocks Bank Road and proceed to its conclusion. Here turn right into Leeds Road and proceed for approximately 400 yards. The driveway to the property will be found on the right hand side, clearly identified by the Bramleys for sale board.
Tenure: - Freehold
Council Tax Band: - E
Mortgages: - Bramleys have partnered up with a small selection of independent mortgage brokers who can search the full range of mortgage deals available and provide whole of the market advice, ensuring the best deal for you. YOUR HOME IS AT RISK IF YOU DO NOT KEEP UP REPAYMENTS ON A MORTGAGE OR OTHER LOAN SECURED ON IT.
Online Conveyancing Services: - Available through Bramleys in conjunction with leading local firms of solicitors. No sale no legal fee guarantee (except for the cost of searches on a purchase) and so much more efficient. Ask a member of staff for details.
Viewings: - Please call our office to book a viewing on 01924 495334.
Concept A & B - Please note, within the images are two architectural concepts for potential development at the site. A copy of the architects design is available by request from the agents.

Agent Statistics (Based on 457 Reviews) :