The UK's Largest Customer Review Website for the Property Industry
The UK's Largest Customer Review Website for the Property Industry
Back to Property Listings
Lea Bridge Road, Leyton
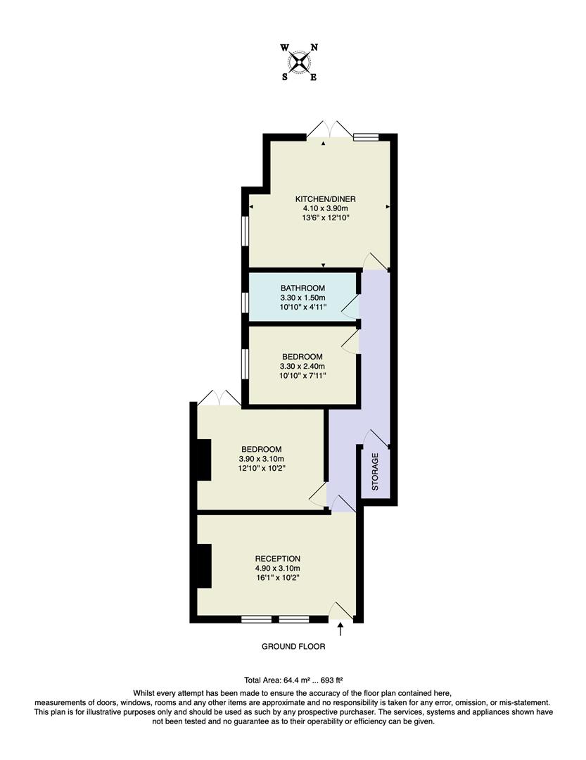
This larger-than-average ground-floor flat offers 693 sq ft of beautifully presented living space in a characterful Victorian conversion. Inside, you'll find two well-proportioned double bedrooms, a separate kitchen/diner and reception area, with gorgeous original period features throughout. A private rear courtyard adds useful outdoor space, while the location strikes a good balance between residential calm and city access, just a short 10-minute walk to Lea Bridge Station. From there, you're one stop from Stratford (for Central Line and National Rail connections) and one stop in the other direction to Tottenham Hale (for the Victoria Line and Stansted Express).
IF YOU LIVED HERE
Finally, the 150 square feet kitchen/diner makes for another excellent hosting option, with still more gorgeous vintage floorboards, gleaming fitted storage from floor to ceiling, a handsome white kitchen suite and heaps of natural light thanks to the double patio doors leading out to the courtyard.
Step into a well-designed home with a naturally bright and welcoming feel, with plenty of period touches thanks to the home's solid Ex-Warner heritage. The generous 160 ft² reception room is filled with light from twin windows dressed in classic white plantation shutters to filter in just the right amount of daylight. Vintage wooden flooring covers the space and flows throughout the property, seamlessly uniting all the rooms. Alcove shelving sits on either side of the chimney breast.
Next door, the master double bedroom is calm and comfortable with soft neutral-toned walls. White-framed French doors sit beneath a further glazed pane for brightness and access into your outdoor space. The second bedroom sits just behind with a low sweep of tobacco coloured decor and a large sash window.
The bathroom is well proportioned and beautifully styled, finished with crisp white walls and tiling surrounding the full-sized bath with an overhead rain shower and glazed screen. The anthracite dark built-in storage cupboard coordinates perfectly with the black fittings to complete the look.
At the rear of the property lies the bright kitchen/diner, with an exposed brick wall peeping out from behind the pristine white tiling and blond plywood cabinetry. A window and glazed door flood the space with light and provide access to the courtyard garden.
Outside, the garden is private and low-maintenance. A gravel base surrounding stepping stone paving leads to a raised wooden decked area at the rear - perfect for a table and chairs - while a thriving raised bed holds cordylines and acers. Natural wood fencing provides privacy, making this a wonderful spot to relax and unwind and a touch of green space close to home.
WHAT ELSE
Whatever your fitness goals, Walthamstow Leisure Centre has you covered with a gym, racquet courts and a wide range of fitness classes. It's all just half a mile on foot.
London's hip postcode, Stratford's East Village, is just a short walk and even shorter train ride away. Be sure to explore the ever-expanding range of independent bars, restaurants and gastropubs.
Equally, Westfield Stratford City has all your favourite brands under one roof, and the Olympic Park is a short distance away, providing the perfect opportunity for those who love running, walking or cycling in nature.
Living Room - 4.9m x 3.1m (16'0" x 10'2") -
Bedroom - 3.9m x 3.1m (12'9" x 10'2") -
Bedroom - 3.3m x 2.4m (10'9" x 7'10") -
Bathroom - 3.3m x 1.5m (10'9" x 4'11") -
Kitchen - 4.1m x 3.9m (13'5" x 12'9") -
Garden - 7.62m (25) -
A WORD FROM THE EXPERT...
I love living in Walthamstow - it's got such a great mix of things going on. Saturdays are my favourite, with the market in Lloyd Park full of fresh food, handmade bits, and plenty of friendly faces. The new Soho Theatre has brought amazing shows right to our doorstep, and if I fancy a pint, the Blackhorse Beer Mile breweries are perfect for a wander. When I need some fresh air, the Walthamstow Wetlands are just a short stroll away - all that greenery makes you completely forget you're in London. Plus, with brilliant transport links, it's so easy to hop on the Tube or Overground and be in Central London in no time at all.
WILLIAM JACKSON
E17 ASSISANT BRANCH MANAGER

Agent Statistics (Based on 2967 Reviews) :