The UK's Largest Customer Review Website for the Property Industry
The UK's Largest Customer Review Website for the Property Industry
Back to Property Listings
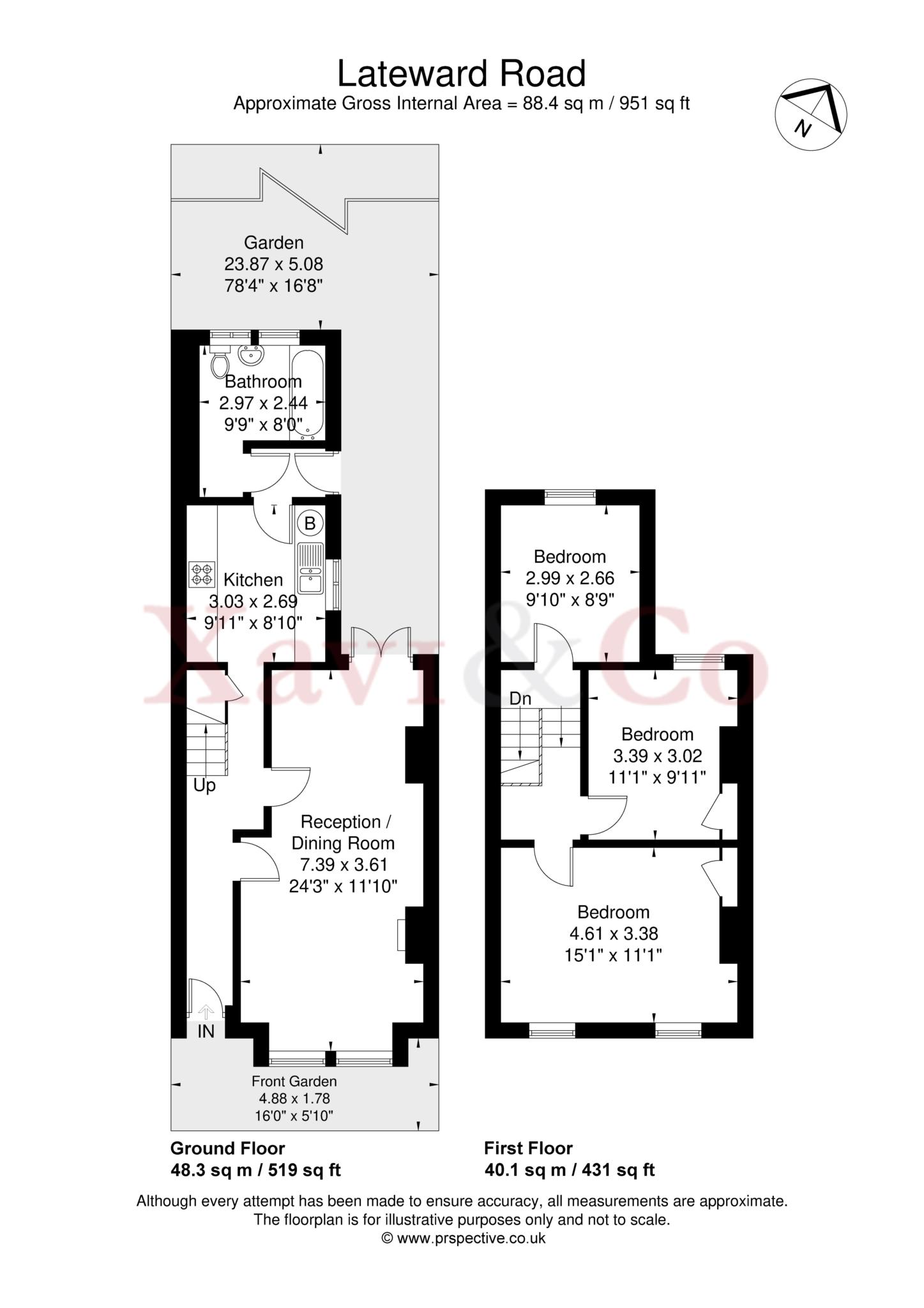
Lateward Road, Brentford
Situated in one of Brentford`s premier roads is this handsome Edwardian, halls-adjoining, three double bedroom terrace house with fine original features and a stunning 78ft (24 metres) long sunny rear garden. The property has been meticulously insulated by the current owners and has achieved an impressive `C` rating.
The delightful family home offers a through double reception room with a square bay fronted window to the front elevation; overlooking the green open space of St Paul`s park and to rear, French doors lead out to a lovely mature rear garden. The wide-galley kitchen and downstairs bathroom are both requiring updating but are bright and spacious. Upstairs are three double bedrooms and a handy, usable loft with easy access, for an abundance of storage or as a hobby space.
The property is situated in one of Brentford`s much requested roads and overlooks St Paul`s Park. The High Street is nearby with a range of great shops, bars and restaurants, excellent transport links are close to hand with Brentford Station providing a service into London Waterloo (in around 30 minutes), many bus routes are also close by. Brentford High Street is currently undergoing an extensive development programme, bringing in new businesses to the area, such as a Everyman cinema, two large well-known supermarkets and family leisure companies making the most of the River Thames and Ground Union Canal.
Notice
Please note we have not tested any apparatus, fixtures, fittings, or services. Interested parties must undertake their own investigation into the working order of these items. All measurements are approximate and photographs provided for guidance only.
Council Tax
Hounslow Council, Band E
Utilities
Electric: Mains Supply
Gas: Mains Supply
Water: Mains Supply
Sewerage: Mains Supply
Broadband: Unknown
Telephone: Unknown
Other Items
Heating: Not Specified
Garden/Outside Space: No
Parking: No
Garage: No

Agent Statistics (Based on 1 Reviews) :