The UK's Largest Customer Review Website for the Property Industry
The UK's Largest Customer Review Website for the Property Industry
Back to Property Listings
Larkspur Drive, Cramlington, Newcastle Upon Tyne
ZERO DEPOSIT OPTION AVAILABLE. Jan Forster Estates are delighted to offer this new build 'Norbury', located in the magnificent new development called West Meadows in Cramlington.
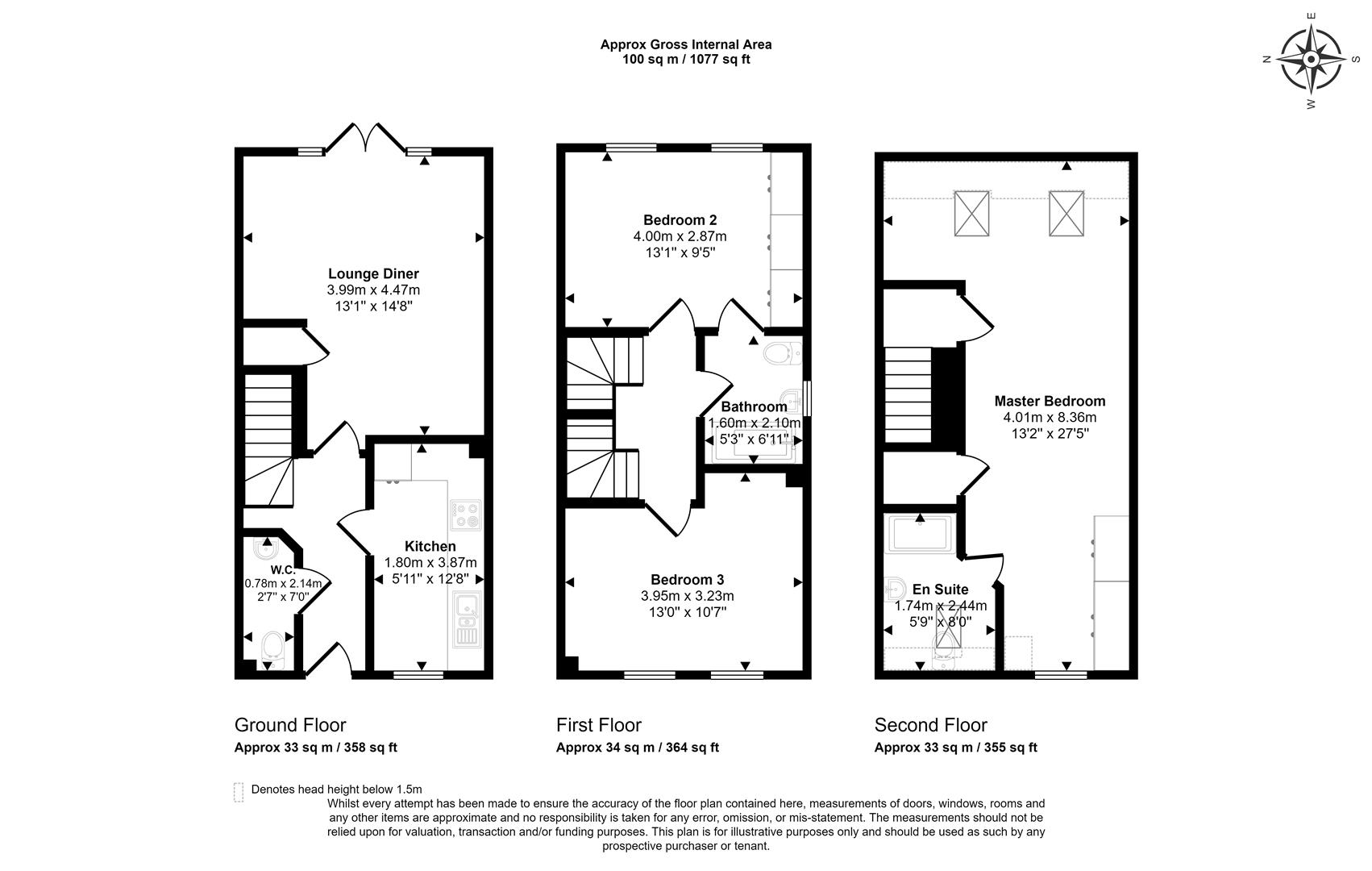
This three-storey home, features generously sized rooms and abundant storage options. The ground floor welcomes you with a delightful lounge/diner located at the rear of the property, with French doors linking the indoor and outdoor space. At the front, a modern kitchen awaits, accompanied by a separate WC and a convenient storage cupboard. The first floor accommodates 2 spacious double bedrooms and a family bathroom serves as a dividing space between these two bedrooms. The second floor provides an expansive main bedroom, which covers the entire floor space and includes a dressing area, en-suite and further storage cupboards.
Living here means you can enjoy country walks at Northumberlandia, just minutes from your doorstep. As well as being a short drive or walk from Manor Walks shopping centre and Cramlington train station. With local amenities, close access to the A19 and A1 and schools rated 'Good' nearby, West Meadows is the perfect place for your family to call home.
Lomond, on behalf of Lloyds Living, part of Lloyds Banking Group, operates a growing portfolio of more than 3,000 professionally managed homes for rent, improving access to good value, quality, sustainable housing across the UK. Lloyds Living helps to support investment into local communities by building and renting homes that people want, in the places they are needed.
Property features and specifications may vary on a plot-by-plot basis. Whilst every attempt has been made to ensure accuracy, all measurements are approximate and not to scale. Computer-generated images, floor plans, and photos (CGIs) are for illustrative purposes only and may not represent the final design or finish of the property. For further information on layouts and specifications, please speak to your Lloyds Living representative.

This property is marketed by

Jan Forster Estates - High Heaton, Newcastle upon Tyne, NE7
4.6/5 Rating
(1051) reviews
Agent Statistics (Based on 1051 Reviews) :