The UK's Largest Customer Review Website for the Property Industry
The UK's Largest Customer Review Website for the Property Industry
Back to Property Listings
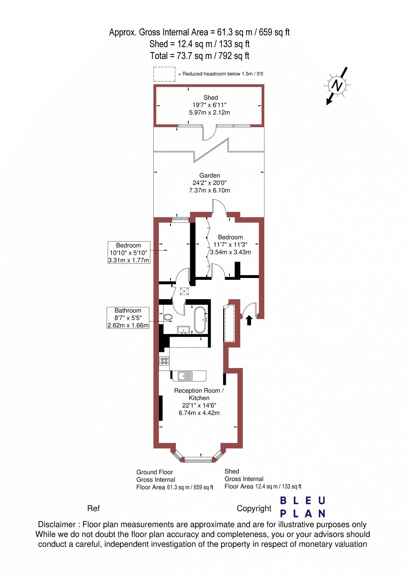
Lambton Road, N19
A wonderful opportunity to purchase a two-bedroom, extended garden conversion benefiting from own entrance.
The property is impressively presented and offers subtle, contemporary detailing throughout whilst maintaining essential period features.
Further comprising spacious open-open planned kitchen/reception, bathroom and southerly facing rear garden.
Ideally located equidistant to Finsbury Park and Archway tube stations and a multitude of local bus routes providing ample transport opportunities.

This property is marketed by

Castles Estate Agents (London) - Crouch End, London, N8
5/5 Rating
(939) reviews
Agent Statistics (Based on 939 Reviews) :