The UK's Largest Customer Review Website for the Property Industry
The UK's Largest Customer Review Website for the Property Industry
Back to Property Listings
Knighton Lane, Aylestone, Leicester
*NO CHAIN* A genuinely spacious two bedroom end terrace home well situated for an abundance of transport links and amenities. This attractive property combines original period features with a contemporary look including modern kitchen and bathroom with the added benefit of being fully re-decorated and re-carpeted within the last few years. The accommodation briefly comprises: Two reception rooms and kitchen downstairs together with two double bedrooms and bathroom upstairs. This great home is an ideal first time buy or investment!
Details - SUMMARY *NO CHAIN* A genuinely spacious two bedroom end terrace home well situated for an abundance of transport links and amenities. This attractive property combines original period features with a contemporary look including modern kitchen and bathroom with the added benefit of being fully re-decorated and re-carpeted within the last few years. The accommodation briefly comprises: Two reception rooms and kitchen downstairs together with two double bedrooms and bathroom upstairs. This great home is an ideal first time buy or investment!
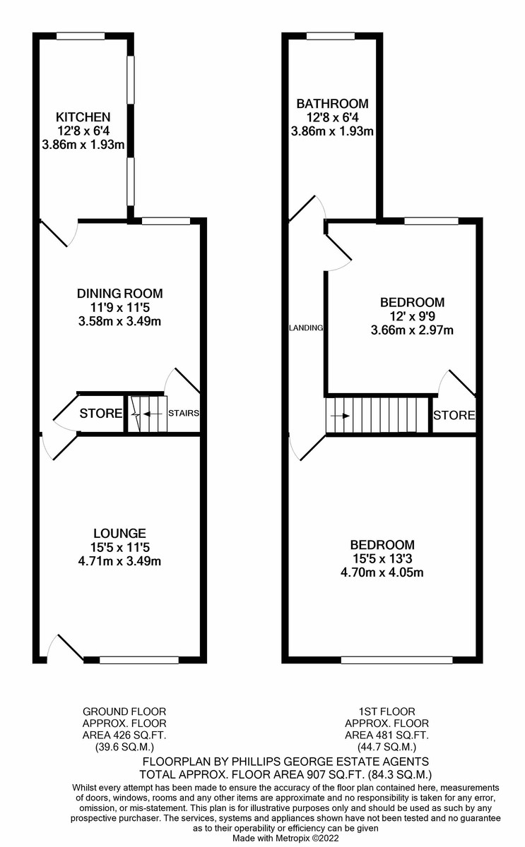
LOUNGE 15' 5" x 11' 5" (4.7m x 3.48m) Accessed via a UPVC double glazed front door. UPVC double glazed window to front aspect. Feature fireplace. TV and telephone point. Radiator.
DINING ROOM 11' 9" x 11' 5" (3.58m x 3.48m) UPVC double glazed window to rear aspect. Doors to: Kitchen and stairs. Built-in cupboards to alcove. Telephone point. Radiator.
KITCHEN 12' 8" x 6' 4" (3.86m x 1.93m) Having a selection of fitted base and wall units with a laminate worktop over and a single bowl stainless steel sink with drainer. There is a single fan assisted electric oven, electric hob, extractor, space and plumbing for a freestanding washing machine with a further space for a freestanding fridge/freezer. UPVC double glazed door out to: Rear garden. UPVC double glazed windows to rear and side aspects. Vinyl flooring. Radiator. Boiler.
LANDING Doors off to: Bedrooms and bathroom. Loft hatch access.
BEDROOM ONE 15' 5" x 13' 3" (4.7m x 4.04m) UPVC double glazed window to front aspect. Feature cast iron fireplace. Radiator.
BEDROOM TWO 12' 0" x 9' 9" (3.66m x 2.97m) UPVC double glazed window to rear aspect. Built-in cupboard. Cast iron feature fireplace. Radiator.
BATHROOM 12' 8" x 6' 4" (3.86m x 1.93m) Comprising: Bath with shower over, low level WC and wash hand basin. UPVC double glazed window to rear aspect. Wall tiling to shower/bath area. Airing cupboard. Vinyl flooring. Radiator.
OUTSIDE The property has the added benefit of a great garden having a paved patio area, pergola/decked seating area, established planted borders and is fully enclosed by wooden fencing.
SALES SUMMARY & MATERIAL INFORMATION •Price : Offers Over £180,000
•Tenure : Freehold
•Length of lease : N/A
•Annual ground rent amount : N/A
•Ground rent review period : N/A
•Annual service charge amount : N/A
•Service charge review period : N/A
•Council tax band : A
• EPC Rating: E
•Shared Ownership : N/A
• Property type: End Terrace
• Property construction: Brick
• Number and types of room: Please refer to floorplan
• Electricity supply: Mains
• Water supply: Metered
• Sewerage: Public sewer
• Heating: Gas boiler, gas central heating
• Broadband: Fibre broadband to cabinet
• Mobile signal / coverage: refer to Ofcom mobile coverage checker
• Parking: On street
• Building safety: No known hazards
• Restrictions: N/A
• Rights and easements: No known relevant rights or easements
• Coastal erosion risk: None
• Planning permission: No known planning permissions or proposals for development
• Accessibility/Adaptations: N/A
• Coalfield or mining area: No direct impact of any mining activity
THINKING OF SELLING? We would be delighted to provide you with a free market appraisal/valuation of your own property. Please contact Phillips George to arrange a convenient appointment on 01162168178.
BUYING TO LET? Phillips George are expert, ARLA qualified letting agents with experience of all kinds of rental property across city and county. Should you need a rental valuation for your new property or on any of your existing portfolio, or simply want some advice on the current rental market, call us now on 01162168178.
DISCLAIMER & IMPORTANT INFORMATION Phillips George Sales & Lettings for themselves and the vendors of this property whose agents they are, give notice that these particulars are not to be relied upon as a statement or representation of fact and do not constitute any part of an offer or a contract. Intending purchasers must satisfy themselves by inspection or otherwise as to the correctness of each and any statements contained in these particulars. The vendors do not make or give and neither do Phillips George Sales & Lettings (nor any person in their employment) have authority to make any representation or warranty whatsoever in relation to the property.
None of the services, systems or appliances listed or shown in this specification have been tested by us and no guarantee as to their operating ability or efficiency is given. All floorplans and dimensions have been provided as a guide for prospective buyers only, and should not be relied on as a true representation.
Current money laundering regulations require us to confirm proof of identity and residency of anyone intending to purchase. We ask for your co-operation in providing the necessary documentation in order to avoid delays in agreeing the sale.

This property is marketed by

Phillips George Estate Agents - Wigston, Leicester, LE18
4.9/5 Rating
(42) reviews
Agent Statistics (Based on 42 Reviews) :