The UK's Largest Customer Review Website for the Property Industry
The UK's Largest Customer Review Website for the Property Industry
Back to Property Listings
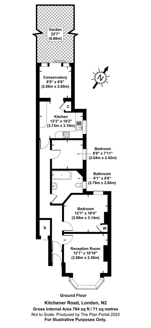
Kitchener Road, East Finchley, N2
We offer this well presented two bedroom extended ground floor maisonette located in this ever popular turning just off East Finchley High Road N2. This homely property offers character throughout, a good sized reception, kitchen, conservatory with dining area, direct access to low maintenence garden and bathroom. Located minutes from shops, East Finchley underground station. Available start of August. Unfurnished

Agent Statistics (Based on 1 Reviews) :