The UK's Largest Customer Review Website for the Property Industry
The UK's Largest Customer Review Website for the Property Industry
Back to Property Listings
Kirkford, Stewarton
Nestled in the heart of the charming town of Stewarton, East Ayrshire, this delightful end terrace property offers a perfect blend of comfort, style, and practicality, making it an ideal family home or a superb investment opportunity. This well-presented residence boasts three generously sized bedrooms, two modern bathrooms, and reception room, providing ample space for both relaxation and entertaining.
Upon entering, you are welcomed into a bright and airy hallway that sets the tone for the rest of the home. , The spacious split level living room benefits from patio doors that flood the space with natural light, creating a warm and inviting atmosphere. Adjacent to the living room, through the French doors is a am additional space which could easily serve as a dining area, home office, or playroom, depending on your needs. Through the patio doors leads to the the garden, in itself is a lovely feature of the property, offering a manageable yet generous space with a lawn and patio area, ideal for children, pets, or gardening enthusiasts.
The modern kitchen is well-equipped with contemporary units, ample work surfaces, and integrated appliances, making meal preparation a pleasure.
Upstairs, the property comprises two comfortable bedrooms, each benefiting from double glazing and gas central heating, ensuring a cosy environment throughout the year. . The family bathroom is equally well-appointed, featuring a bath with shower over, a wash basin, and WC,
Additional benefits include off-street parking for one vehicle, double glazing throughout, and efficient gas central heating, all contributing to the home`s energy efficiency and comfort. The property is well-maintained and move-in ready, offering a fantastic opportunity to acquire a lovely home in a sought-after location.
Stewarton itself is a vibrant and welcoming community, rich in history and surrounded by beautiful Ayrshire countryside. Residents enjoy a range of local amenities including shops, cafes, and schools, all within easy reach. For those who appreciate outdoor pursuits, the nearby countryside provides excellent walking and cycling routes, with scenic trails that showcase the natural beauty of the area.
The town is also well-connected, with regular bus services and easy access to the A77, making commuting to nearby towns and cities straightforward. For leisure and socialising, Stewarton boasts several pubs and restaurants offering traditional Scottish fare and warm hospitality.
Cultural enthusiasts will appreciate the local events and festivals that take place throughout the year, celebrating the town`s heritage and community spirit. Additionally, the proximity to larger towns such as Kilmarnock and Irvine means that a wider array of shopping, entertainment, and recreational facilities are just a short drive away.
For families, Stewarton offers excellent schooling options and safe, friendly neighbourhoods, making it a desirable place to settle. Whether you enjoy peaceful country walks, exploring local history, or simply relaxing in a close-knit community, Stewarton provides a wonderful setting to call home.
In summary, this charming end terrace property in Stewarton presents a fantastic opportunity to acquire a spacious, well-appointed home in a delightful East Ayrshire town. With its three bedrooms, two bathrooms, two reception rooms, garden, and parking, combined with the benefits of double glazing and gas central heating, it is perfectly suited to modern family living. Contact us today to arrange a viewing and experience all that this lovely home and its vibrant community have to offer.
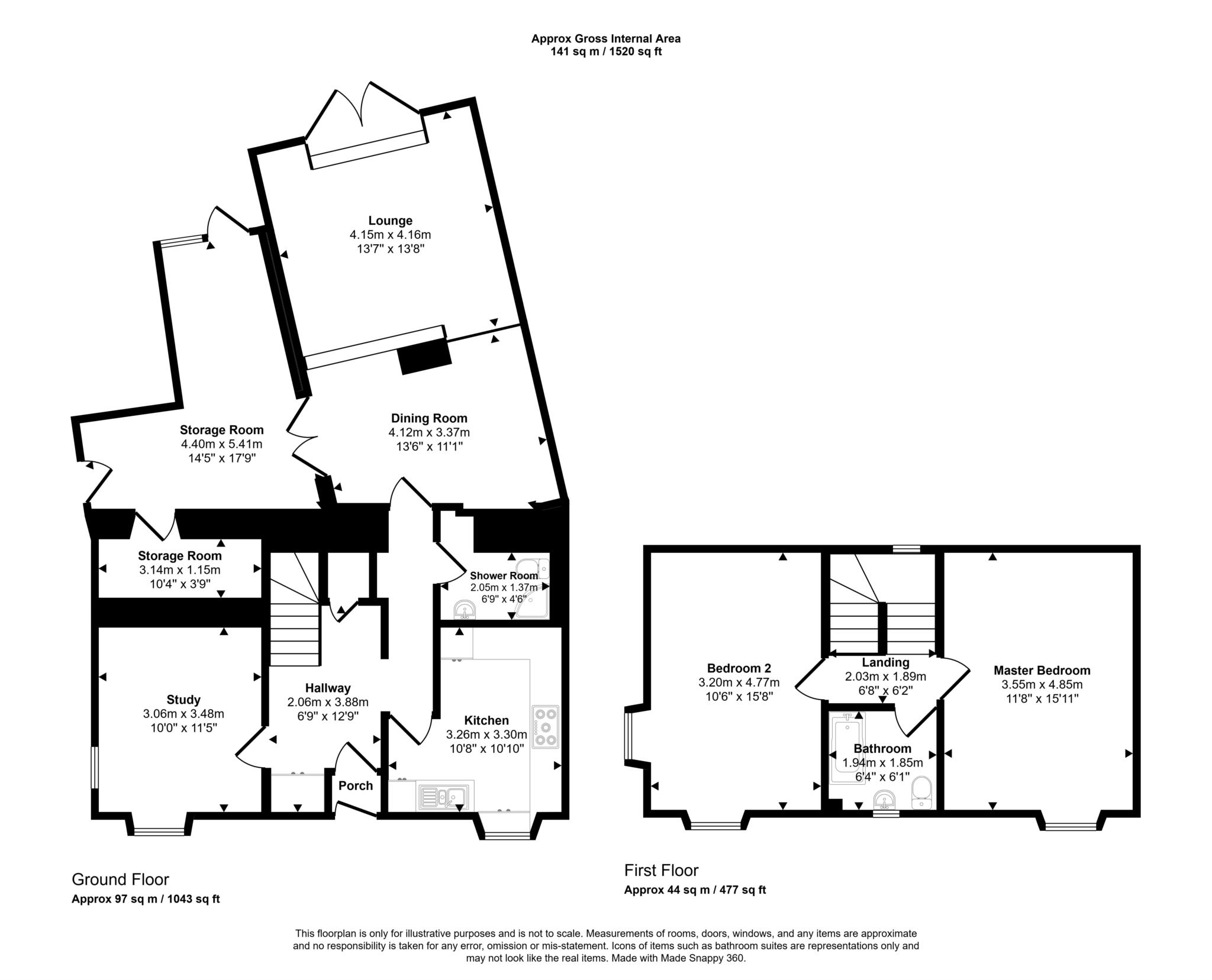
LOUNGE - 13'8" (4.17m) x 13'8" (4.17m)
Rear facing, over looking the rear private garden, with double glazed patio doors, pendant lighting, neutral decor, carpeted flooring, access from dining area, chimney breast, is closed off but can be reinstated.
DINING AREA - 13'6" (4.11m) x 11'1" (3.38m)
Access from the main hallway, carpeted flooring, with over head lighting, carpeted flooring, wall mounted radiator.
KITCHEN - 10'8" (3.25m) x 10'10" (3.3m)
Located to the front of the property, with selection of wall and base units, with complimentary work surface, splash back tiles, integrated ovens and with electric hob, with overhead extractor fan, integrated fridge freezer and over head spotlights and vinyl floor covering.
HALLWAY - 6'9" (2.06m) x 12'9" (3.89m)
Enter through the porch into the hallway, which provides access to the whole accommodation, with large storage cupboard under the stairs, continue on the lower level to access the kitchen shower room and lounge and dining area.
continue up to the upper level to access the family bathroom and two further bedrooms.
BEDROOM THREE - 10'0" (3.05m) x 11'5" (3.48m)
Located on the lower level and sits to the front of the property, with carpeted flooring, pendant lighting and wall mounted radiator.
STORAGE - 10'4" (3.15m) x 3'9" (1.14m)
Located just off the dining area, through the French doors, into the storage area, which could be used as storage or converted to an office.
STORAGE ROOM 2 - 14'5" (4.39m) x 17'9" (5.41m)
Located at the rear of the ground floor bedroom and is access through the French doors off the dining area.
SHOWER ROOM - 6'9" (2.06m) x 4'6" (1.37m)
Located on the lower level and has been recently upgraded, with walk in shower enclosure, vanity sink unit and WC, with luxury fittings and wet wall and tiled, with wooden effect tiled flooring, washing machine is plumbed in and wall mounted towel radiator.
MASTER BEDROOM - 11'8" (3.56m) x 15'11" (4.85m)
Located on the upper level, this substantial sized room with carpeted flooring, neutral decor, with double glazed window and wall mounted radiator
BEDROOM TWO - 10'6" (3.2m) x 15'8" (4.78m)
Located on the upper level, with dual aspect double glazed window, wall mounted radiator and carpeted flooring, pendant lighting.
FAMILY BATHROOM - 6'4" (1.93m) x 6'1" (1.85m)
Located on the upper level, sits between two bedrooms, with three piece bathroom suite, and full sized bath, with shower and shower screen, with tiled walls and flooring, overhead spot lights, and shaver point and wall mounted radiator.
Notice
Please note we have not tested any apparatus, fixtures, fittings, or services. Interested parties must undertake their own investigation into the working order of these items. All measurements are approximate and photographs provided for guidance only.
Council Tax
East Ayrshire Council, Band D
Utilities
Electric: Mains Supply
Gas: Mains Supply
Water: Mains Supply
Sewerage: Mains Supply
Broadband: Cable
Telephone: None
Other Items
Heating: Gas Central Heating
Garden/Outside Space: Yes
Parking: Yes
Garage: No

Agent Statistics (Based on 0 Reviews) :