The UK's Largest Customer Review Website for the Property Industry
The UK's Largest Customer Review Website for the Property Industry
Back to Property Listings
Kingsley Road, Hainault, Fairlop, IG6
Rear Decking Private garden
Front driveway for two Cars.
Gas Central heating
Double glazing throughout
Wooden floors
Two bath/shower rooms
Five Bedroom family home in a very desirable location, very close to Fairlop and Hainault stations (Central Line), Barkingside High Street and great Primary and Secondary Schools. Short walking distance to Redbridge sport centre. Open-plan Lounge/Kitchen, First Floor Shower Room, Ground Floor Bathroom and Rear decking garden. CHAIN FREE!
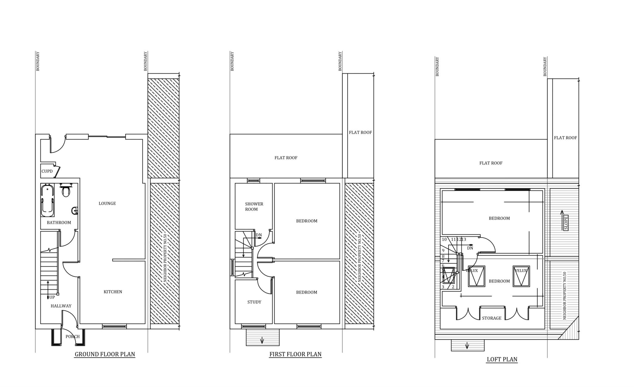
Ground Floor
------------
Porch
Entrance Hall
Lounge Diner - 6.17m x 4.90m (20`3 x 16`1) -
Kitchen Area
Ground floor bathroom
First Floor
-----------
Landing
Bedroom One - 3.25m x 3.07m (10`8 x 10`1) -
Bedroom Two - 2.69m x 1.75m (8`10 x 5`9) -
Bedroom Three - 3.38m x 3.05m (11`1 x 10`0) -
First floor Shower Room
Second Floor
------------
Landing
Bedroom Four - 3.53m x 2.92m (11`7 x 9`7)
Bedroom Five - 4.72m x 2.54m (15`6 x 8`4)
Notice
Please note we have not tested any apparatus, fixtures, fittings, or services. Interested parties must undertake their own investigation into the working order of these items. All measurements are approximate and photographs provided for guidance only.
Council Tax
London Borough Of Redbridge, Band C
Utilities
Electric: Unknown
Gas: Unknown
Water: Unknown
Sewerage: Unknown
Broadband: Unknown
Telephone: Unknown
Other Items
Heating: Gas Central Heating
Garden/Outside Space: Yes
Parking: No
Garage: No

This property is marketed by

Real Move Estates - Chadwell Heath, Romford, RM6
4.9/5 Rating
(136) reviews
Agent Statistics (Based on 136 Reviews) :