The UK's Largest Customer Review Website for the Property Industry
The UK's Largest Customer Review Website for the Property Industry
Back to Property Listings
Kidmore Road, Caversham Heights
Masons are proud to offer to the market this well presented and extended semi-detached house, located on a sought after road in Caversham Heights and close to Caversham & Reading centres, along with Reading mainline station. Having undergone major improvements by its current owners, including a new extension, re-fitted kicthen, recently fitted bathroom, garden office & wood burning stove. Further benefits include a 14ft living room, a 20ft open plan family/dining room, a downstairs cloakroom, a 14ft master bedroom. There is also off road parking for several cars and a large well-tended rear garden that includes a home office. Viewing recommended.
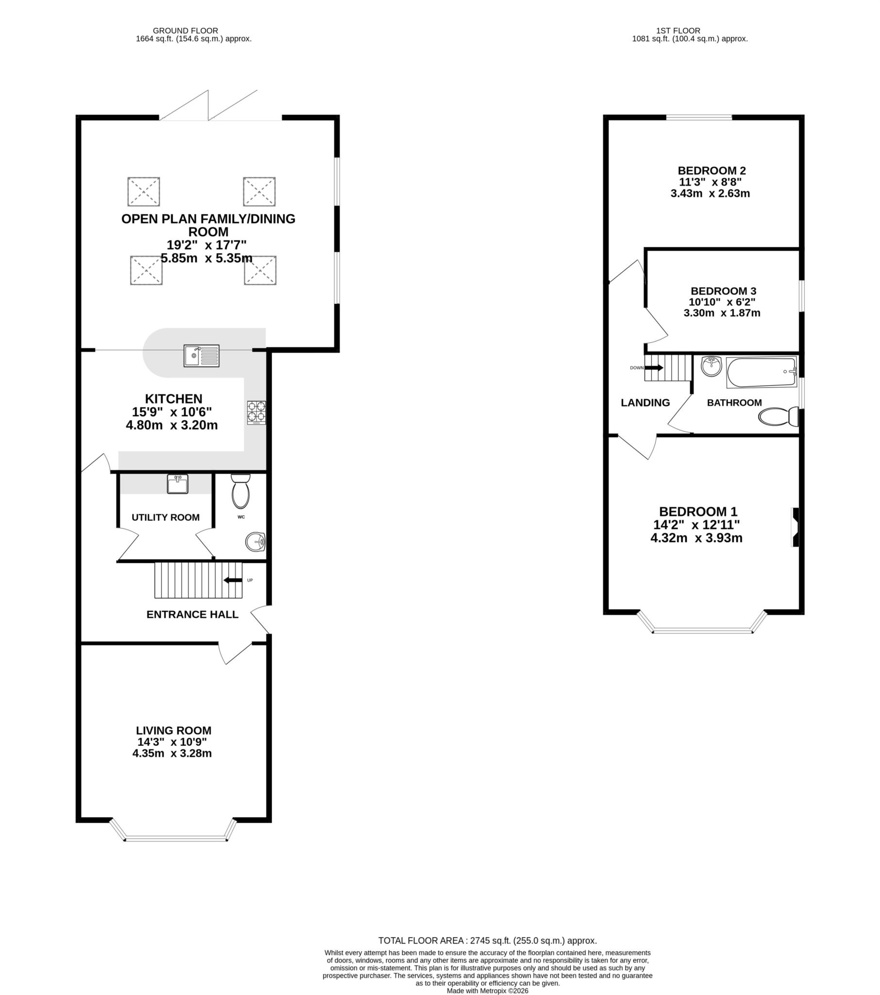
Front door to entrance hall which has the stairs to first floor and has doors to:
Living room: 14`3" x 10`9" into double glazed bay window, feature wood burning stove.
Open plan family/dining room: 19`2" x 17`2" bi-folding doors to the rear garden, opening to:
Kitchen: 15`9" x 10`6" a modern range of eye and base level units with solid wooden tops & breakfast bar, a sink & drainer, oven, hob and extractor.
Utility room: range of eye and base level units with space and plumbing for appliances. Door to:
WC: low level wc and wash basin.
First floor landing has doors to:
Bedroom 1: 14`2" x 12`11" double glazed front aspect.
Bedroom 2: 11`3" x 8`8" double glazed rear aspect.
Bedroom 3: 10`10" x 6`2" double glazed side aspect.
Family bathroom: double glazed side aspect, a panel enclosed bath with shower over, a low level wc and wash basin.
Outside: To the front there is off road parking for several cars and access to the front door. To the rear is one of the main features of the property, with a large well-tended garden, mainly laid to lawn, with a variety of plants, shrubs, trees & flowers. There is a patio area, flowers beds, a home office with light and power. Viewing is recommended.
Home office: light & power.
Notice
Whilst every care has been taken in the preparation of these particulars, and they are believed to be correct, they are not warranted and intending purchasers/lessees should satisfy themselves as to the correctness of the information given.Please note we have not tested any apparatus, fixtures, fittings, or services. Interested parties must undertake their own investigation into the working order of these items. All measurements are approximate and photographs provided for guidance only.
Council Tax
Reading Borough Council, Band E
Utilities
Electric: Mains Supply
Gas: None
Water: Mains Supply
Sewerage: None
Broadband: None
Telephone: None
Other Items
Heating: Gas Central Heating
Garden/Outside Space: Yes
Parking: Yes
Garage: No

Agent Statistics (Based on 72 Reviews) :