The UK's Largest Customer Review Website for the Property Industry
The UK's Largest Customer Review Website for the Property Industry
Back to Property Listings
Kidmore Road, Caversham Heights, Reading
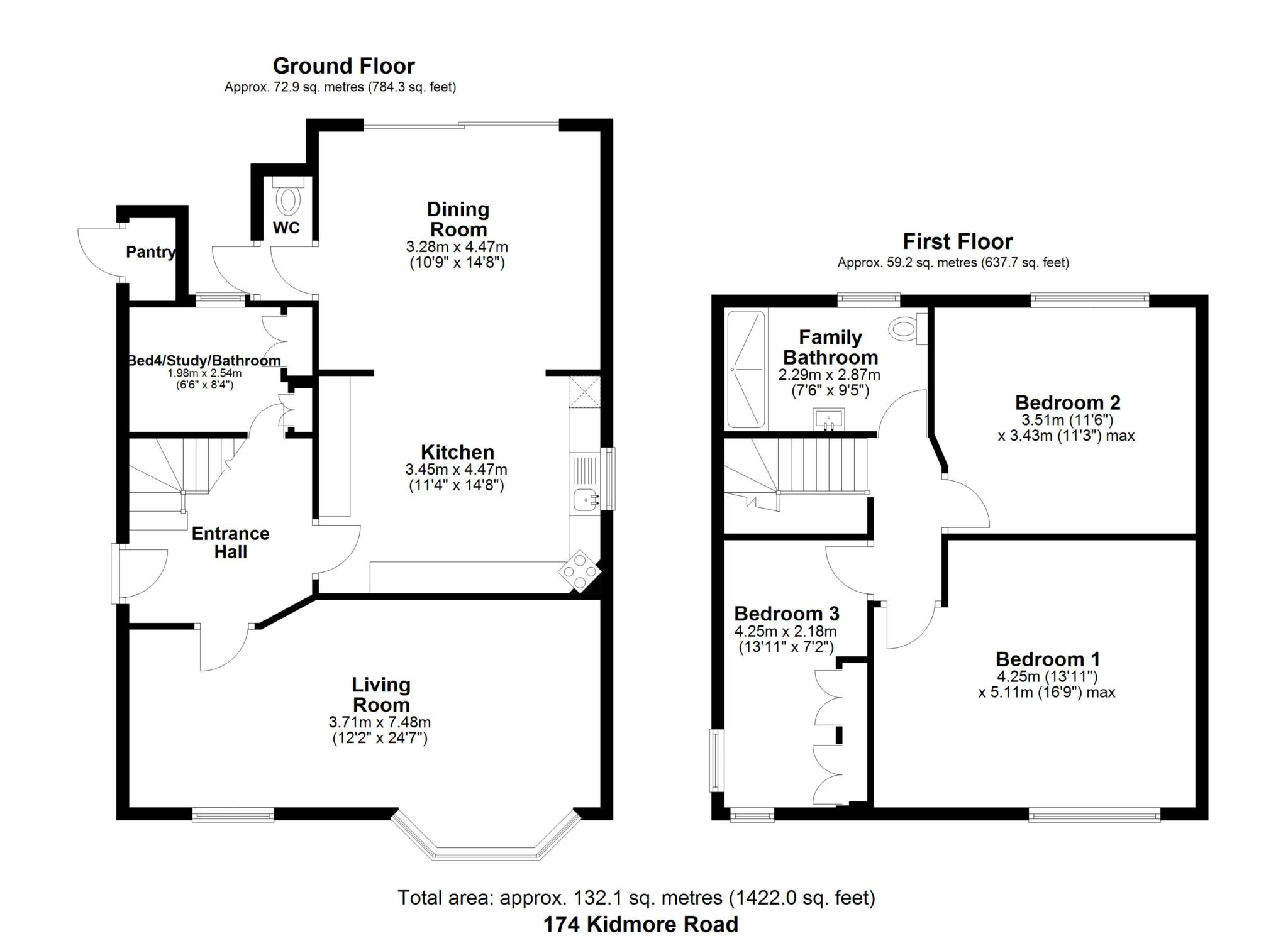
New to the market for the first time in over forty years is this 3/4 bedroom detached house offering generous, versatile accommodation and scope to extend/alter as desired. Benefiting from a large driveway there is parking for four cars including space under a carport. The vast living room runs across the front of the house and benefits from built in storage and two windows, one a generous bay. The kitchen/diner has a range of floor and eye level units and opens to the dining room with French Doors to the garden. There is a study/bedroom with storage and a sink plus a separate downstairs cloakroom. The generous landing gives access to three bedrooms, two good-sized doubles and a single with plenty of built in storage. The back garden is large with a generous patio area with pergola. There is a good-sized lawn, established planting and at the back an array of sheds and greenhouse. Kidmore Road is close to local amenities and is within catchment for excellent schools. An early viewing is recommended by the vendors` sole agent! No onward chain!
what3words /// boot.penny.arrow
Notice
Please note we have not tested any apparatus, fixtures, fittings, or services. Interested parties must undertake their own investigation into the working order of these items. All measurements are approximate and photographs provided for guidance only.
Council Tax
Reading Borough Council, Band E
Utilities
Electric: Unknown
Gas: Unknown
Water: Unknown
Sewerage: Unknown
Broadband: Unknown
Telephone: Unknown
Other Items
Heating: Gas Central Heating
Garden/Outside Space: No
Parking: Yes
Garage: No

This property is marketed by

Bridges Estate Agents (Reading) - Caversham Reading, Reading, RG4
3.7/5 Rating
(3) reviews
Agent Statistics (Based on 3 Reviews) :