The UK's Largest Customer Review Website for the Property Industry
The UK's Largest Customer Review Website for the Property Industry
Back to Property Listings
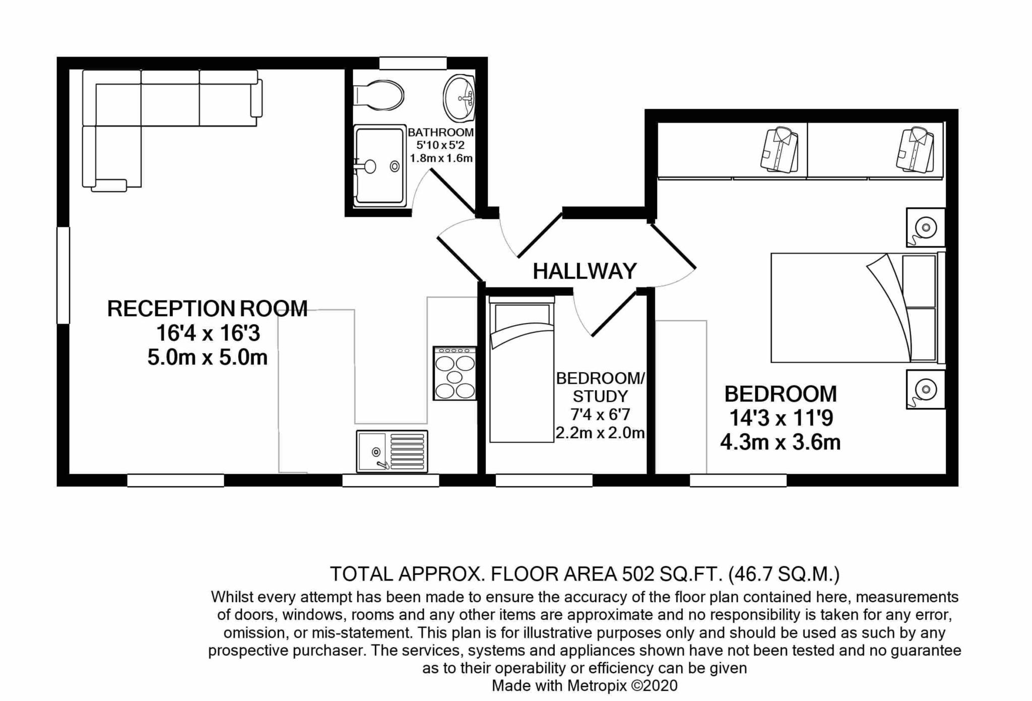
Journeaux Street, St Helier
A fantastic opportunity to purchase a one bedroom, top floor apartment with a second single bedroom or study.
Located on the outskirts of St Helier and within walking distance to town, shops and restaurants, this is a great option for first time buyers or those simply wanting a convenient but quiet location.
The property has a large kitchen living space with lots of natural light, the double bedroom comes with beautiful built in wardrobes offering ample storage. The property has been recently fitted with new carpets and has been freshly painted throughout. Although there is no parking with the property, residents parking is available at just under ?460 a year.
Services
Mains water and drains
electric heating
Double glazing
Service charges
Approx ?120 PCM
Building insurance
Communal maintenance
sinking fund
Notice
Please note we have not tested any apparatus, fixtures, fittings, or services. Interested parties must undertake their own investigation into the working order of these items. All measurements are approximate and photographs provided for guidance only.

Agent Statistics (Based on 0 Reviews) :