The UK's Largest Customer Review Website for the Property Industry
The UK's Largest Customer Review Website for the Property Industry
Back to Property Listings
Jason Court, Heene Terrace
Step Inside
With breathtaking uninterrupted sea views, this exemplary first floor apartment sits within the grandeur of a prestigious Grade II listed Victorian seafront terrace. Impeccably styled the interior lends a tasteful contemporary twist to the heritage and architecture of the building, while the layout deftly allows the views to add a mesmeric backdrop.
Behind the distinguished historic facade, an easy flowing layout pairs cool calming white walls with the warming balance of wooden effect floors and timber framed glass doors. An excellent hallway hints at the attention to detail that features throughout with a mirrored front door that reflects a lovely measure of natural light.
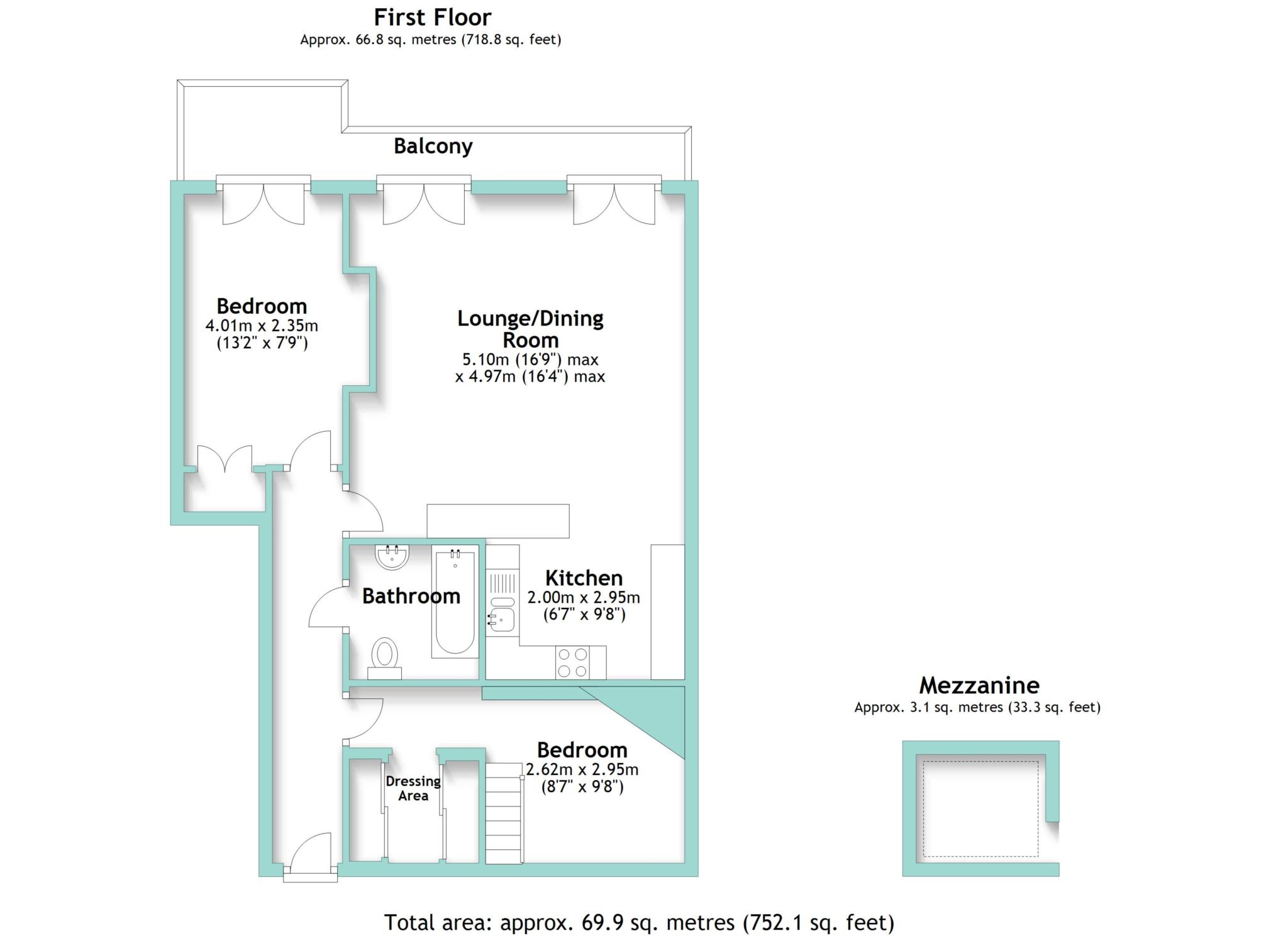
Stretching out to twin sets of French doors that allow the panoramic sea views to give an magnificent wow factor, a superbly sized lounge/dining room opens onto a covered south facing balcony bordered by the patterns of painted wrought iron balustrades. Classically tall shutters, sympathetic to the heritage of the building frame each set of the French doors and the subtle architraves of the notably high ceiling stretch out above you. Sleek and contemporary, the clean lines of a large inset fireplace offer an alternative focal point to the views outside, while the exceptionally light and airy proportions produce an enviable place to relax and unwind.
Adding to the sense of space further still, this enticing room opens seamlessly into a first class kitchen fully fitted with a wealth of modern gloss white cabinets and a wide array of integrated appliances. The wrap-around design has a fantastic amount of storage and workspace, and is finished with matte black countertops that culminate in bar stool seating for several people.
Tucked peacefully away from the main living areas, the main bedroom sits to the rear of the apartment. A generous walk-in dressing room is fitted with an expanse of full height sliding glass door cupboards and wardrobe space while in the main bedroom area stylish steps take you up to a glass framed mezzanine that gives handy additional storage space and enhances the height of the room.
Versatile to your needs, a second double bedroom with recessed fitted wardrobes echoes the picturesque views of the lounge/dining room. Matching shutters open to reveal French doors that give it its own direct access to a deep seating area of the balcony and let you soak up the views from the comfort of your own bed.
Arranged in a smart tile setting of cream, blue and mosaics, the deluxe bathroom includes a full size bath with an overhead waterfall shower.
Outside
Extending out across the full width of the apartment, a covered south facing balcony produces an easy flowing extension of this seafront apartment giving a prized spot to sit and take in the far-reaching views of the coast. The three sets of French doors make it temptingly easy to step outside, recline in the sunshine, enjoy al fresco drinks or watch the sun set over the sea.
Sitting nearby, a freehold garage provides the convenience of secure off-road parking and is available on a separate title to the apartment.
In Your Local Area
Sitting just across the road from the beach and promenade, the location of this iconic Victorian terrace means that you can be dipping your toes in the sea within moments of leaving your home. Take a stroll along the promenade to the lido, pier and pavilion in one direction and Marine Gardens in the other, or wander through the town centre with its numerous cafes, bars and restaurants.
Both Worthing and West Worthing mainline train stations are approximately just over a mile from your door providing routes to London and Brighton. Regular bus services travel along the coast road and the A27 is easily accessible. Local schools include St. Mary`s Catholic Primary School, Heene C of E Primary School and Our Lady of Sion Junior School.
Flood Risk
Rivers and the sea: Very low
Surface water: Very low
Tenure
The property is sold on a leasehold basis, with a share of the freehold and extended lease on completion.
Garage
A freehold garage is also included on a separate title.
what3words /// rocky.choice.hardly
Notice
Please note we have not tested any apparatus, fixtures, fittings, or services. Interested parties must undertake their own investigation into the working order of these items. All measurements are approximate and photographs provided for guidance only.
Council Tax
Adur & Worthing, Band C
Ground Rent
?15.00 Yearly
Service Charge
?3,200.00 Yearly
Utilities
Electric: Mains Supply
Gas: None
Water: Mains Supply
Sewerage: Mains Supply
Broadband: None
Telephone: None
Other Items
Heating: Electric Storage Heaters
Garden/Outside Space: Yes
Parking: Yes
Garage: Yes

This property is marketed by

Village Estate Agency - Brighton, Brighton, BN113JA
0/5 Rating
(0) reviews
Agent Statistics (Based on 0 Reviews) :