The UK's Largest Customer Review Website for the Property Industry
The UK's Largest Customer Review Website for the Property Industry
Back to Property Listings
Jacobs Court, Horbury
Situated in the sought after town of Horbury and nestled into this CUL-DE-SAC is this two bedroom first floor apartment finished well throughout and with good proportion rooms, off road PARKING and an ideal starter home.
EPC rating C73
Situated in the sought after town of Horbury and nestled into this cul-de-sac is this two bedroom first floor apartment finished well throughout and with good proportion rooms, off road parking and an ideal starter home.
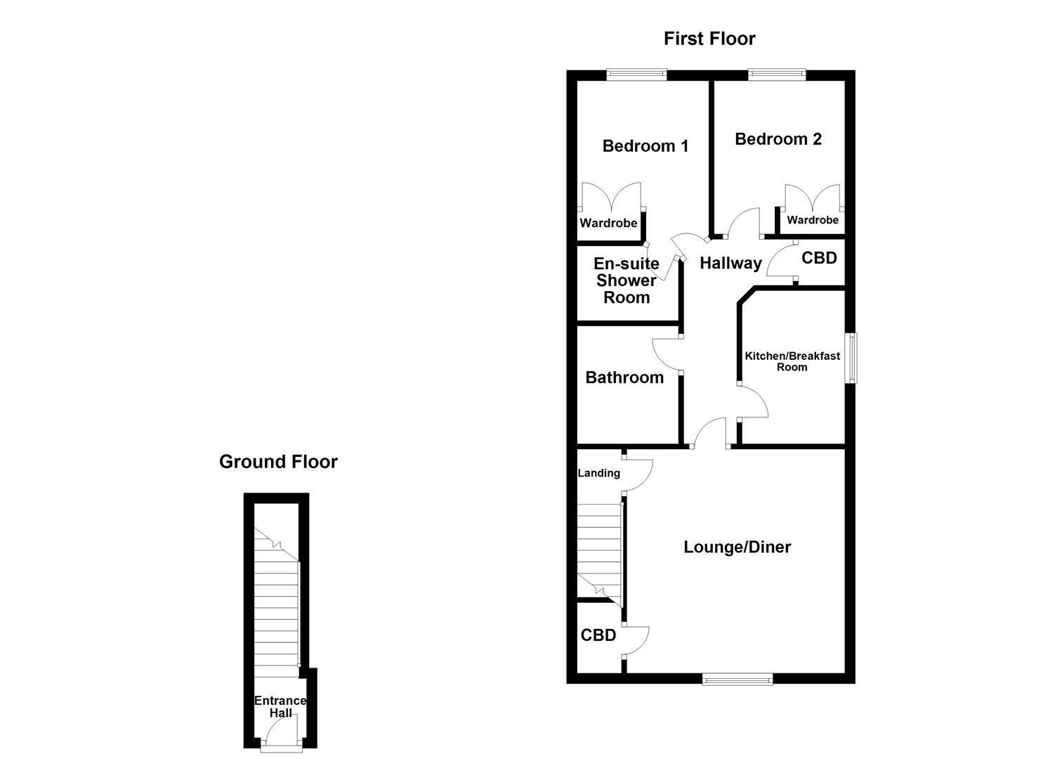
The accommodation briefly comprises entrance hall with stairs to the first floor. The living room has overstairs storage and a door into a further hallway, which has access to the loft, two bedrooms, bathroom/w.c. and the kitchen breakfast room. Bedroom one has en suite shower facilities and externally there is a tarmac driveway providing parking for one vehicle as well as a communal paved area.
Horbury is host to a good range of amenities including shops and schools, whilst daily access to Leeds and further afield can be had via the M1 motorway, which is only a short distance away.
This property would make an ideal purchase for a range of buyers including first time buyers, professional looking to commute further afield or even an investor looking for a buy to let. Only a full internal inspection will reveal what is on offer at this property and an early viewing comes highly advised.
Accommodation -
Entrance Hall - UPVC double glazed frosted entrance door. Central heating radiator, staircase providing access to the first floor.
First Floor Landing - LED spotlighting to the ceiling, door into the lounge diner.
Lounge Diner - 4.17m x 4.19m (13'8" x 13'8") - UPVC double glazed window to the front, central heating radiator, door to overstairs storage cupboard, door into the hallway and LED spotlighting to the ceiling.
Hallway - Loft access, LED spotlights to the ceiling, doors into bedrooms, bathroom/w.c. and kitchen breakfast room. Storage cupboard.
Kitchen Breakfast Room - 2.23m x 2.93m (7'3" x 9'7") - UPVC double glazed window to the side, central heating radiator, LED spotlighting to the ceiling. The kitchen has a range of wall and base units with laminate work surface over, stainless steel sink and drainer with mixer tap, tiled splashback, four ring gas hob, integrated oven with extractor hood over, space for undercounter fridge freezer, space and plumbing for a washing machine, breakfast bar with laminate work surface.
Bathroom/W.C. - 1.94m x 2.24m (6'4" x 7'4") - LED spotlighting to the ceiling, extractor fan, central heating radiator, low flush w.c., pedestal wash basin and panelled bath with shower head attachment and shower screen. Partially tiled.
Bedroom One - 2.74m x 3.62m max x 2.41m min (8'11" x 11'10" max - UPVC double glazed window to the rear, LED spotlighting to the ceiling, central heating radiator, set of double doors to a wardrobe and a door leading through to the en suite shower room/w.c.
En Suite Shower Room/W.C. - 1.93m x 1.6m max x 0.89m min (6'3" x 5'2" max x 2' - LED spotlighting to the ceiling, extractor fan, ladder style central heating radiator, low flush w.c., pedestal wash basin, shower cubicle with shower head attachment and shower screen. Partially tiled.
Bedroom Two - 2.93m x 2.5m max x 2.12m (9'7" x 8'2" max x 6'11") - LED spotlighting to the ceiling, central heating radiator, UPVC double glazed window to the rear, double doors to a wardrobe.
Outside - To the front there is a tarmac driveway providing off road parking for one vehicles. Communal patio area.
Leasehold - The service charge is £TBC (pa) and ground rent £TBC (pa). The remaining term of the lease is 109 years (2023). A copy of the lease is held on our file at the Ossett office.
Council Tax Band - The council tax band for this property is A.
Epc Rating - To view the full Energy Performance Certificate please call into one of our local offices.
Floor Plan - This floor plan is intended as a rough guide only and is not to be intended as an exact representation and should not be scaled. We cannot confirm the accuracy of the measurements or details of this floor plan.
Viewings - To view please contact our Horbury office and they will be pleased to arrange a suitable appointment.

This property is marketed by

Richard Kendall Estate Agent - Horbury, Wakefield, WF4
4.7/5 Rating
(1653) reviews
Agent Statistics (Based on 1653 Reviews) :