The UK's Largest Customer Review Website for the Property Industry
The UK's Largest Customer Review Website for the Property Industry
Back to Property Listings
Ivydore Avenue, Worthing
Step Inside
Perfectly positioned for both commuters, walks on the Downs and well regarded schools, this detached Durrington bungalow has a wealth of versatility.
Encompassed by leafy gardens to the front and rear, it has the added bonus of a detached garden studio that offers a host of possibilities.
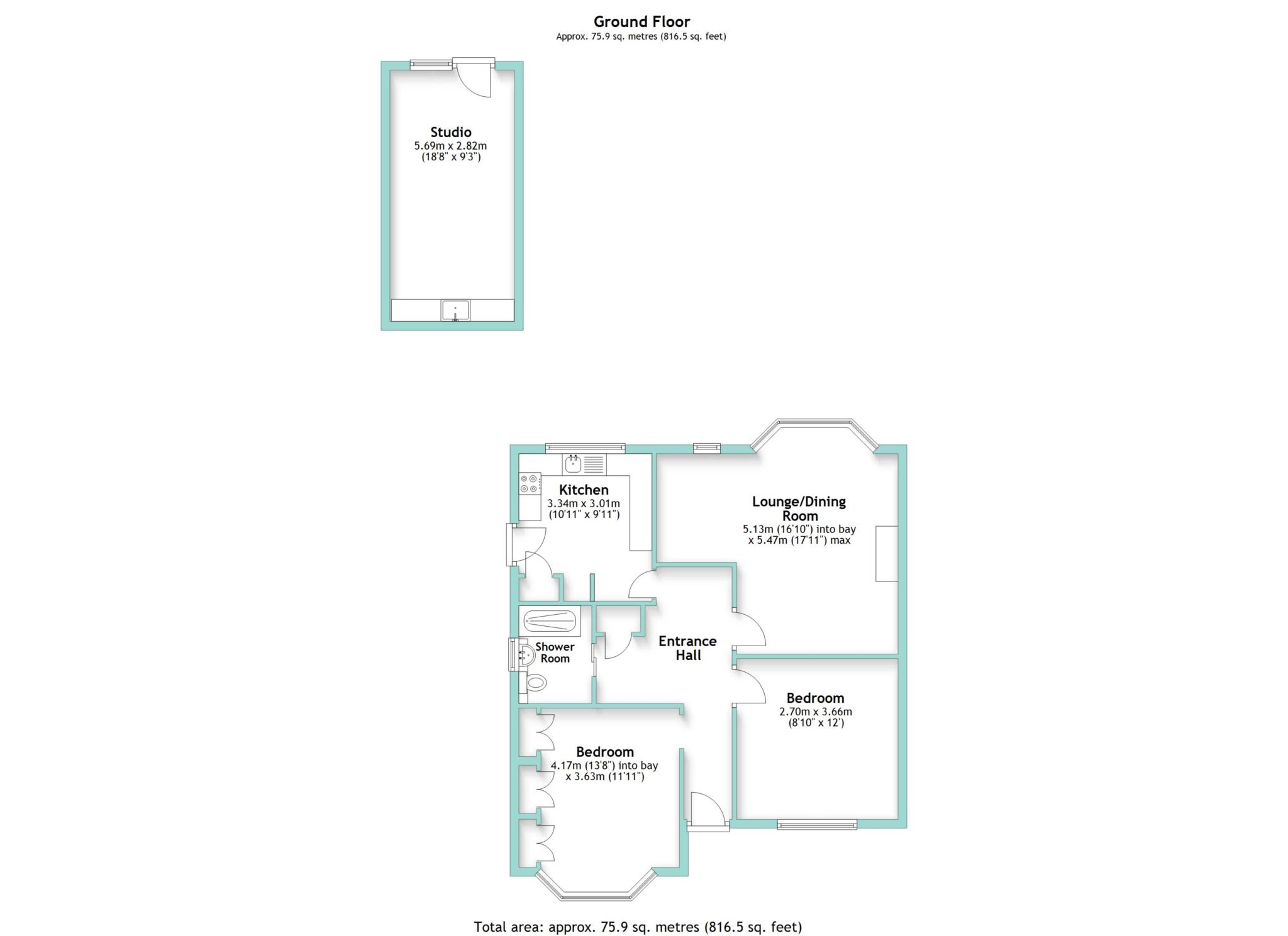
Well-presented throughout yet with scope to be refreshed to reflect your own sense of style, a brilliantly flowing layout unfolds from a large central entrance hall unfolds onto a succession of light filled rooms.
With the sweeping curve of wide bay windows, a spacious lounge/dining room has a wealth of space in which to relax, dine and unwind. A fireplace with a rustic brick surround lends a hugely homely and inviting focal point, rich heritage green accent hues match those of the trees and gardens outside and the bay of the windows provides an ideal spot for a dining table. Across the hall a generous kitchen is fully fitted with modern beech grain cabinets, black countertops and integrated tower ovens. The wrap-around layout includes ample dedicated space for a wide selection of freestanding appliances and whilst a side door gives handy access to the gardens the eternal charm of a serving hatch connects to the lounge/dining room.
The sense of space continues in a duo of excellently sized double bedrooms. Beautifully light and bright, the large main bedroom has a wall of tastefully styled mirror door wardrobes that bounce sunlight around the notable proportions from further bay windows. Versatile to your needs, the second bedroom has ample room for freestanding furniture. Together these two impressively sized rooms share a contemporary shower room. It`s good to note that the entrance hall has fitted storage and access to the loft above.
Outside
Framed by an abundance of mature hedging and beds filled with flowering shrubs, gardens to both the front and rear offer plenty of colour and greenery. Established lawns stretch out giving children every chance to play while you choose whether to relax and unwind on a choice of patios, beneath the boughs of a majestic tree or inside a timber summerhouse. Budding gardeners will love the chance to incorporate vegetable beds without encroaching on the main garden areas.
The detached garage is laid out as a stylish and contemporary studio space that creates an enviable hideaway. With a wood effect floor beneath your feet, the space conjures options to become a play/games room, home office or gym. Exposed brickwork delineates an excellent kitchen area fully fitted with stylish rich dark green Shaker cabinets with beautiful leaf design handles. A glazed metro tiled splashback and brass finished tap add on-trend finishing touches.
To the side of the property a private driveway has off-road parking for several vehicles.
In Your Local Area
Sitting to the south of Arundel Road/A27 this detached home is only moments from the South Downs with easy access to commuter routes. A choice of supermarkets is nearby and the shops, bars and restaurants of central Worthing are circa only three miles from your door. Durrington-On-Sea mainline train station is approximately only 1.8miles away and provides regular routes to London.
Notice
Please note we have not tested any apparatus, fixtures, fittings, or services. Interested parties must undertake their own investigation into the working order of these items. All measurements are approximate and photographs provided for guidance only.
Council Tax
Adur & Worthing, Band D
Utilities
Electric: Mains Supply
Gas: Mains Supply
Water: Mains Supply
Sewerage: Mains Supply
Broadband: ADSL
Telephone: None
Other Items
Heating: Gas Central Heating
Garden/Outside Space: Yes
Parking: Yes
Garage: No

This property is marketed by

Village Estate Agency - Brighton, Brighton, BN113JA
0/5 Rating
(0) reviews
Agent Statistics (Based on 0 Reviews) :