The UK's Largest Customer Review Website for the Property Industry
The UK's Largest Customer Review Website for the Property Industry
Back to Property Listings
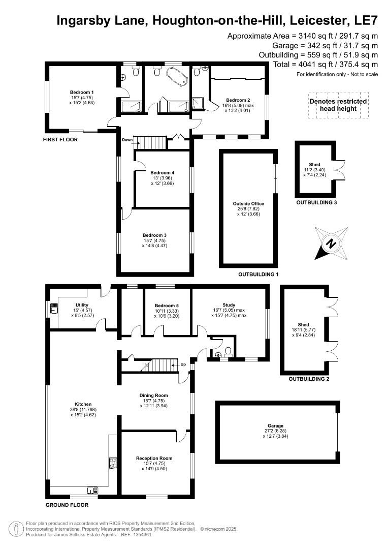
Ingarsby Lane, Houghton on the Hill, Leicestershire
A thoughtfully upgraded detached home blending modern design with hints of its 1920's character, complemented by west-facing landscaped gardens and a superb cedar-clad garden room.
The Old Mill House has undergone a programme of remodelling, extension, and sensitive modernisation over the past eight years, creating a home that is both practical and stylish. Sitting within grounds of just under half an acre, it enjoys generous proportions throughout, excellent garaging, and a garden that is ideal for family life and entertaining.
Location - Houghton on the Hill lies approximately seven miles due east of Leicester and retains a strong village community with active sporting and social scenes and a wide range of amenities including a village store, post office, hair salon, pharmacy, two public houses and a highly sought after village primary school filtering into the renowned Gartree and Beauchamp Colleges at nearby Oadby.
Accommodation - On arrival, the in-and-out driveway opens to a welcoming tiled entrance hall with a broad staircase. From here, three of the four principal reception rooms, a cloakroom/WC, and the family kitchen are accessed.
Reception rooms
A 16' games room, currently adapted as a substantial home office, finished with herringbone wood flooring.
A music room, designed in symmetrical fashion, equally well-suited as a fifth bedroom if required.
A traditional dining room with wood-burning stove, linked to the kitchen so that it can be used independently or as part of a more open plan flow.
A dual aspect sitting room offering separation from the busier areas of the house.
Kitchen and living space
The true heart of the home is the striking 38' family kitchen and dining room. With a full wall of sliding glass doors and garden views, it is both light-filled and spacious. Heated tiled flooring runs beneath, while a central island doubles as a large dining table. Neff integrated appliances include three ovens, a microwave, induction hob, American-style fridge freezer, and dishwasher. A utility/boot room sits alongside with access to the driveway and garage.
Bedrooms
The galleried first-floor landing leads to four generous double bedrooms:
Principal suite: vaulted ceiling, dual-aspect windows, sliding doors to a private roof terrace, and an ensuite shower room.
Bedroom three: fitted wardrobes and its own ensuite shower.
Bedrooms two and four: both close to a modern family bathroom with corner bath and separate shower.
Gardens & Grounds - The property is positioned within a 0.43-acre plot. The gated driveway leads to an oversized detached tandem garage (built in 2016) with roller doors to the front and rear. The garage was constructed with double walls and insulation, with services nearby, giving it straightforward potential for conversion into living accommodation (subject to consents).
The west-facing gardens stretch out behind the house. A wide terrace, complete with hot tub, runs across the rear, offering an ideal space for outdoor dining and evening sun. Beyond, lawns sweep to the boundary, framed by mature planting, trees, and a kitchen garden with raised beds.
At the far end stands a 31' insulated garden room, clad in American cedar. Currently used as a gym and lounge bar, it provides excellent flexibility and could easily serve as a home office, studio, or leisure space.
Other Information - Tenure: Freehold
Local Authority: Harborough District Council
Listed Status: Not Listed
Conservation Area: No
Tax Band: G
Services: The property is offered to the market with all mains services and gas-fired central heating.
Broadband delivered to the property: Assumed FTTC
Non-standard construction: Believed to be of standard construction
Wayleaves, Rights of Way & Covenants: Yes
Flooding issues in the last 5 years: None
Accessibility: Two storey dwelling. No modifications
Planning issues: Planning has been submitted several times over the years; as far as our Vendors are aware nothing has been approved to date.
Satnav Information - The property's postcode is LE7 9JJ, and house number 26, and house name The Old Mill House.

This property is marketed by

James Sellicks Estate Agents - Leicester, Leicester, LE1
4.9/5 Rating
(281) reviews
Agent Statistics (Based on 281 Reviews) :