The UK's Largest Customer Review Website for the Property Industry
The UK's Largest Customer Review Website for the Property Industry
Back to Property Listings
Hurst Road, Sidcup, DA15 9AE
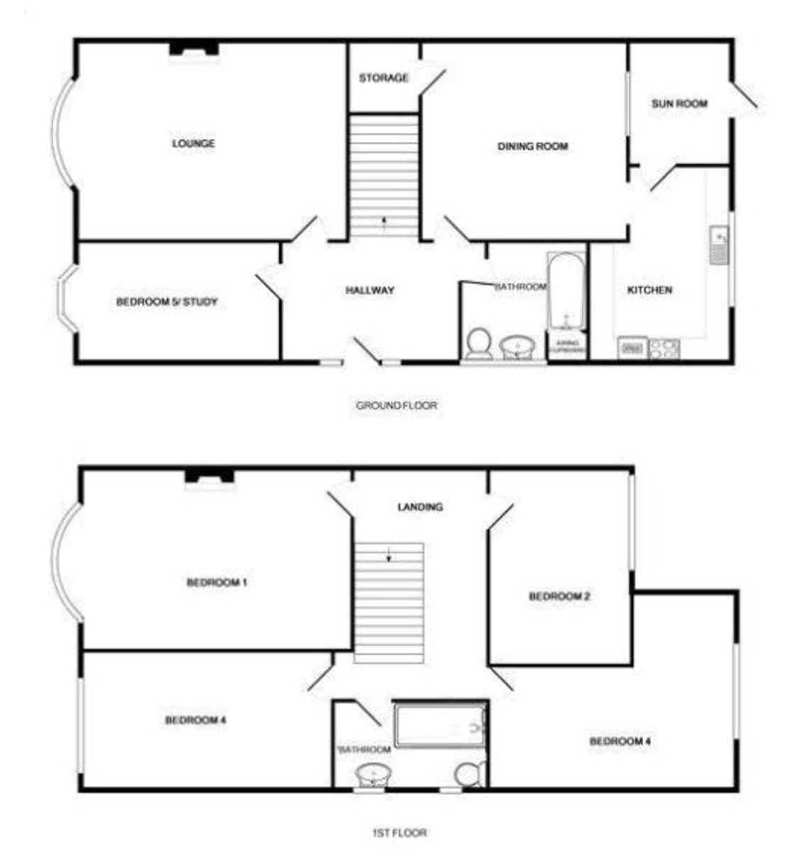
FULL DESCRIPTION A spacious and well presented 4/5 bedroom semi detached chalet style semi detached house. Situated in a popular residential road and close to all local amenities including: shops, local schools, parks, motorway links, bus routes and within easy access of Sidcup mainline railway station. The property benefits from gas central heating, double glazing and has a neutral décor throughout. The accommodation comprises: Entrance hallway. Spacious lounge with large bay window to front. Second reception room / dining room with understairs cupboard. Modern kitchen with a range of wall and base units, work surfaces, sink with drainer, electric oven, hob, extractor, plumbing space for washing machine / dishwasher, space for fridge / freezer. Sun room with doors leading to rear garden Study / bedroom 5. Modern bathroom with hand basin, large shower cubicle and W.C. To the 1st floor there are 4 x good size bedrooms. Modern family bathroom with hand basin, bath with overbath shower and W.C. Externally there is a large garden to the rear with decked area and lawn. There is a drive and garage providing off street parking. Available end March. Restrictions: no pets, smokers, students, or sharers.
Council Tax Band - F (£3,261.60)
Rent - £2,700.00 Per Calendar Month
Security Deposit - £3,115.38
12 Month Tenancy

This property is marketed by

Drewery Property Consultants - Sidcup, Sidcup, DA15
4.9/5 Rating
(272) reviews
Agent Statistics (Based on 272 Reviews) :