The UK's Largest Customer Review Website for the Property Industry
The UK's Largest Customer Review Website for the Property Industry
Back to Property Listings
Hugh Street, Castleford
A MODERN two bedroom mid terrace with utility room and enclosed patio garden, perfect for the FIRST TIME BUYER or investor. VIRTUAL TOUR AVAILABLE. EPC rating D67.
Situated on in the popular residential area within walking distance of the town centre is this superbly presented two bedroom mid terrace property benefitting from modern kitchen and low maintenance garden.
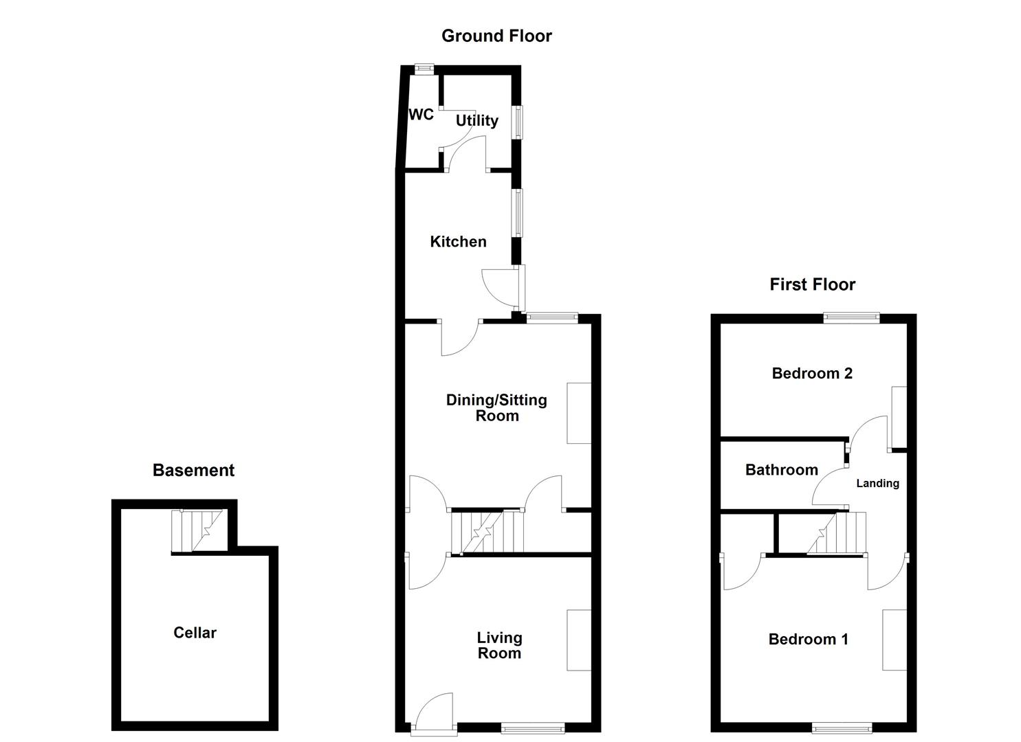
The property briefly comprises of the living room, hallway, dining/sitting room with access down to the cellar, modern fitted kitchen, separate utility room and downstairs w.c. The first floor landing leads two two bedrooms and house bathroom. Outside there is an enclosed low maintenance patio area, perfect for outdoor dining and entertaining.
Castleford makes an ideal place to settle for a range of buyers, as first time buyers looking to move to the area and is aptly placed for local amenities such as shops and schools. Hugh Street is within walking distance of Castleford town centre. Castleford also plays host to the Xscape entertainment centre and Junction 32 shopping outlet. Pontefract racecourse is slightly further afield. For commuters the property is within walking distance of both the bus station and train station.
Ready to move into, only a full internal inspection will reveal all that's on offer at this home and an early viewing comes highly recommended.
Accommodation -
Living Room - 3.42m x 3.87m (max) x 3.48m (min) (11'2" x 12'8" ( - UPVC front entrance door, UPVC double glazed window to the front, central heating radiator and door to the hallway.
Hallway - Stairs to the first floor landing and door through to the dining/sitting room.
Dining/Sitting Room - 3.8m x 3.86m (max) x 3.4m (min) (12'5" x 12'7" (ma - UPVC double glazed window to the rear, central heating radiator, door leading down to the cellar and door to the kitchen.
Cellar - 3.05m x 3.45m (10'0" x 11'3") - Light within.
Kitchen - 3.02m x 2.3m (9'10" x 7'6") - Range of modern wall and base units with laminate work surface over, stainless steel sink and drainer with mixer tap, integrated oven with four ring electric job and extractor hood. UPVC double glazed door to the rear garden, UPVC double glazed window to the side, column central heating radiator and door to the utility.
Utility - 1.61m x 1.87m (5'3" x 6'1") - Laminate work surface over with space and plumbing for a washing machine, space for a fridge/freezer, extractor fan, UPVC double glazed frosted window to the side and door to the downstairs w.c.
W.C. - 1.92m x 0.7m (6'3" x 2'3") - Timber framed double glazed frosted window to the rear, extractor fan, low flush w.c. and ceramic wash basin with mixer tap.
First Floor Landing - Doors to two bedrooms and bathroom.
Bedroom One - 3.42m x 3.88m (max) x 3.5m (min) (11'2" x 12'8" (m - Overstairs storage cupboard, central heating radiator and UPVC double glazed window to the front.
Bedroom Two - 3.9m x 2.6m (max) x 1.32m (min) (12'9" x 8'6" (max - UPVC double glazed window to the rear and central heating radiator.
Bathroom/W.C. - 1.4m x 2.55m (4'7" x 8'4") - Low flush w.c., pedestal wash basin with mixer tap and panelled with mixer tap and overhead shower attachment. Extractor fan, spotlights and chrome ladder style radiator.
Outside - To the front is on street parking. To the rear is a low maintenance patio area, perfect for outdoor dining and entertaining, fully enclosed by walls with a timber gate.
Council Tax Band - The council tax band for this property is A.
Floor Plans - These floor plans are intended as a rough guide only and are not to be intended as an exact representation and should not be scaled. We cannot confirm the accuracy of the measurements or details of these floor plans.
Viewings - To view please contact our Pontefract office and they will be pleased to arrange a suitable appointment.
Epc Rating - To view the full Energy Performance Certificate please call into one of our local offices.

This property is marketed by

Richard Kendall Estate Agent - Pontefract, Pontefract, WF8
4.9/5 Rating
(1653) reviews
Agent Statistics (Based on 1653 Reviews) :