The UK's Largest Customer Review Website for the Property Industry
The UK's Largest Customer Review Website for the Property Industry
Back to Property Listings
Horseleaze Lane, Winscombe
Nestled down a private lane in AONB on the Mendip Hills, this spacious, 4 bedroom family home has fabulous views and a 2 bedroom annexe.
WEST VIEW, HORSELEAZE LANE, SHIPHAM, WINSCOMBE, BS25 1UQ
Winscombe, Cheddar and Langford 3 miles, Bristol Airport 7.5 miles, Wells 14 miles and Bristol 16 miles.A fabulous spacious home, located down a private lane with immediate access to glorious open countryside. This substantial property has the added benefit of a spacious 2 bedroom annexe.
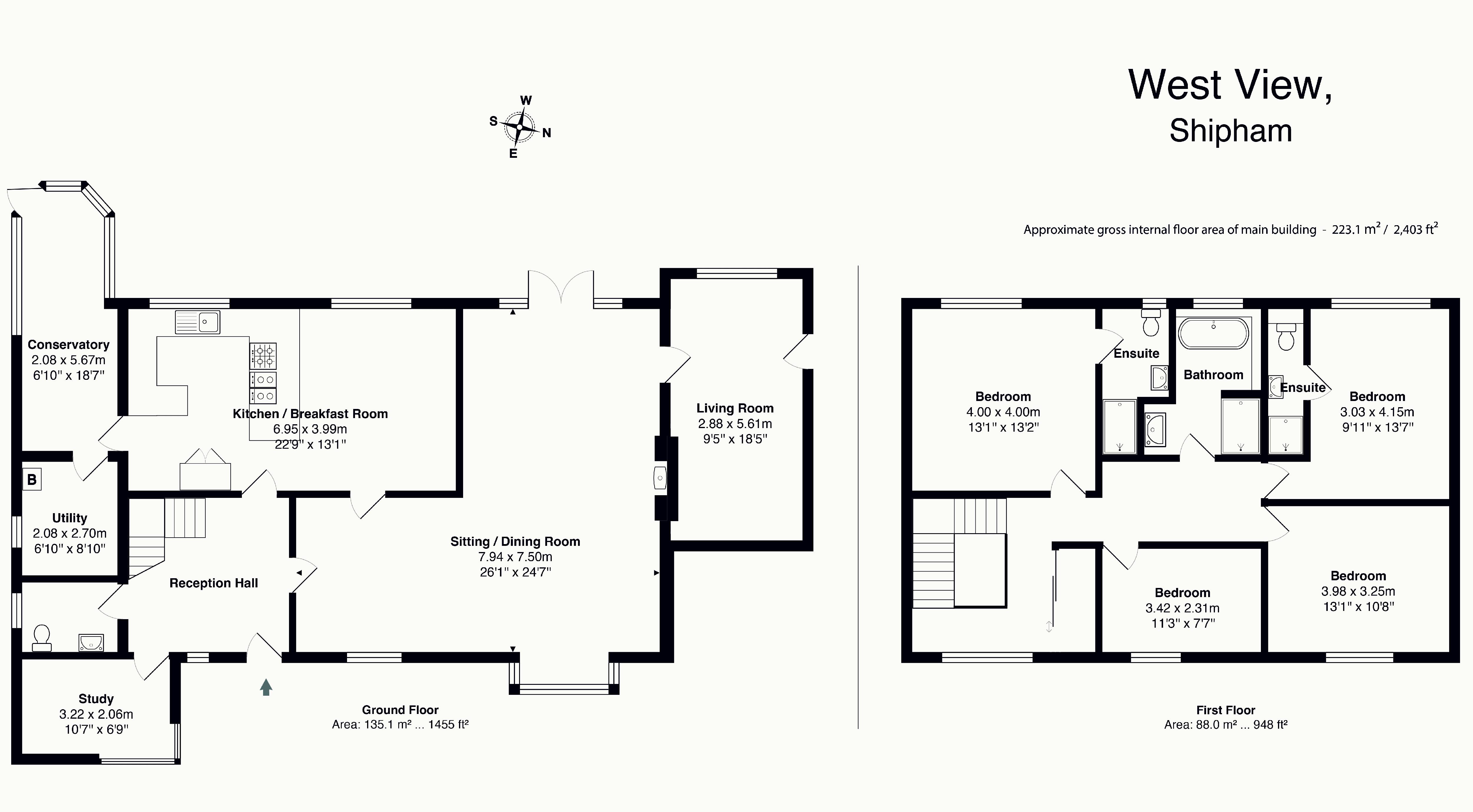
Summary
The main house has an entrance hall, study, cloakroom, kitchen/dining room, conservatory, utility room, living room/dining room, snug, 4 bedrooms, 2 ensuite shower rooms, a family bathroom and a large loft.The annexe has a large open plan living room/kitchen, 2 bedrooms and a shower room.Outside there is a double garage, plenty of parking, a mature garden of approximately half an acre with paved terraces and space for a large chicken run.
Location
The house is in an elevated position within the Mendip Hills AONB tucked down a discreet private lane which has 4 detached houses in total. It looks west over open countryside towards the Bristol Channel and the lane turns into a footpath with immediate access to Shipham village, the hamlet of Winterhead and a further network of footpaths through the beautiful surrounding countryside.Shipham has a village shop, pub, church, village hall, junior school, garage and various other facilities. Winscombe, Cheddar, Churchill and Langford all provide further facilities including senior schools and supermarkets within approx. 3 miles. Bristol Airport and Bristol are easily accessible and M5 is approx. 7 miles away.
Description
A spacious home with extremely comfortable accommodation which flows in an appealing way both downstairs and upstairs. It has a sizeable area for parking, a large double garage and a fantastic, newly converted 2 bedroom annexe. The gardens are mature and have fabulous views to the west which means you can enjoy the dramatic Somerset sunsets.
Accommodation
A covered porch leads to the front door which opens to a gracious and welcoming hallway. To the left is a study and a cloakroom. Stairs rise on the left to a galleried landing. The kitchen/dining room is located straight ahead. This room is flooded with light from two large west facing windows. The kitchen has range a of hand painted, solid wood, fitted units and a wooden worksurface. Arranged as a very sociable space for cooking and entertaining it has a Rangemaster with 4 gas rings, two electric hot plates, 2 ovens and a grill, there is also an integrated dish washer, plenty of storage and space for a fridge/freezer. The other end of the room has plenty of space for a table and chairs.
*
Beyond the kitchen there is a south facing conservatory with a door out to the garden, next to this is the utility room which has plenty of space for a washing machine and tumble dryer.To the right of the kitchen/dining room is a very attractive dual aspect, L shaped sitting room/dining room. This is a fabulously generous room with bags of space for a dining table and chairs as well as comfy seating around a fireplace with at log burning stove. French doors open to the west terrace. Beyond the sitting room there is a versatile snug/office with an exterior door to the terrace.
Upstairs
There are 4 bedrooms, 2 ensuite shower rooms and a very stylish family bathroom with freestanding bath, shower cubicle and vanity unity under the sink.A hatch above the landing gives access, via ladder, to the large, boarded loft.
Outside
The private, shared lane which services 3 other properties, leads to a block paved driveway. To the right is a double garage and there is plenty of parking beside this and the house. The covered porch has space for storing logs and a wall and fence enclose the west facing garden. A timber gate leads to the substantial terrace between the house and the annexe. The rest of the garden is a combination of lawns and mature shrubs and it adjoins attractive farmland.
The Annexe
A glazed door opens to an open plan kitchen/living room. This is wonderfully bright room with floor to ceiling windows to the south and west facing windows to catch the evening sun. A smart fitted kitchen occupies one corner of the room with an integrated dishwasher, electric oven, extractor and induction hob and space for a washing machine. There are two bedrooms and a shower room.
Tenure and other points
Freehold. Mains water and electricity. Private drainage and LPG gas central heating with a combi boiler. The Annexe has electric radiators. Council Tax Band G. EPC Rating D.
About the area
Shipham is a small village nestled in the glorious Mendip Hills surrounded by fabulous walking. It has a vibrant and friendly community and manages to have one foot on either side of this geographic divide with easy access to Bristol and the north via M5 but good connections with towns to the south and the coast. The village is well served with a pub, shop, church, garage and junior school. More comprehensive facilities are close by in Churchill, Winscombe and Cheddar.
**
Cheddar is a renowned holiday destination and a popular residential area.The village itself has a wide range of shops to cater for everyday needs, a bank and Post Office as well as doctor and dentist surgeries. There is a three-tier school system where children up to the age of nine attend the First School, then move on to Fairlands Middle School and finally on to The Kings of Wessex Academy and all these schools are within the village. Sidcot School provides private education nearby in Winscombe and Wells Cathedral School and Millfield are both less than 30mins away. The Kings Fitness and Leisure Centre adjoining the Kings of Wessex Academy offers an extensive range of activities for all the family and has an indoor heated swimming pool. There are also a number of village sports clubs and societies to cater for everyone.
Important Notes
Roderick Thomas, their clients and any joint agents state that these details are for general guidance only and accuracy cannot be guaranteed. They do not constitute any part of any contract. All measurements are approximate and floor plans are to give a general indication only and are not measured accurate drawings. No guarantees are given with regard to planning permission or fitness for purpose. No apparatus, equipment, fixture or fitting has been tested. Items shown in photographs are not necessarily included. Buyers must rely on information passed between the solicitors with regard to items included in the sale. Purchasers must satisfy themselves on all matters by inspection or otherwise. VIEWINGS. Interested parties are advised to check availability and current situation prior to travelling to see any property.All viewings are by appointment with the Agents.Roderick Thomas, 1 Priory Road, Wells, BA5 1SR.
Directions
Follow satnav to the postcode and take Horseleaze Lane south off Broadway. The house can be found approx. 100mts down the lane on the right.What3Words:///recruiter.fairy.crucially

Agent Statistics (Based on 1 Reviews) :