The UK's Largest Customer Review Website for the Property Industry
The UK's Largest Customer Review Website for the Property Industry
Back to Property Listings
Holmewood Gardens, SW2
Keating Estates are proud to present to market a truly stunning two bedroom Victorian garden flat. This elegant property is nestled within a handsome terrace on the sought-after Holmewood Gardens, a peaceful residential enclave arranged around an attractive central garden square.
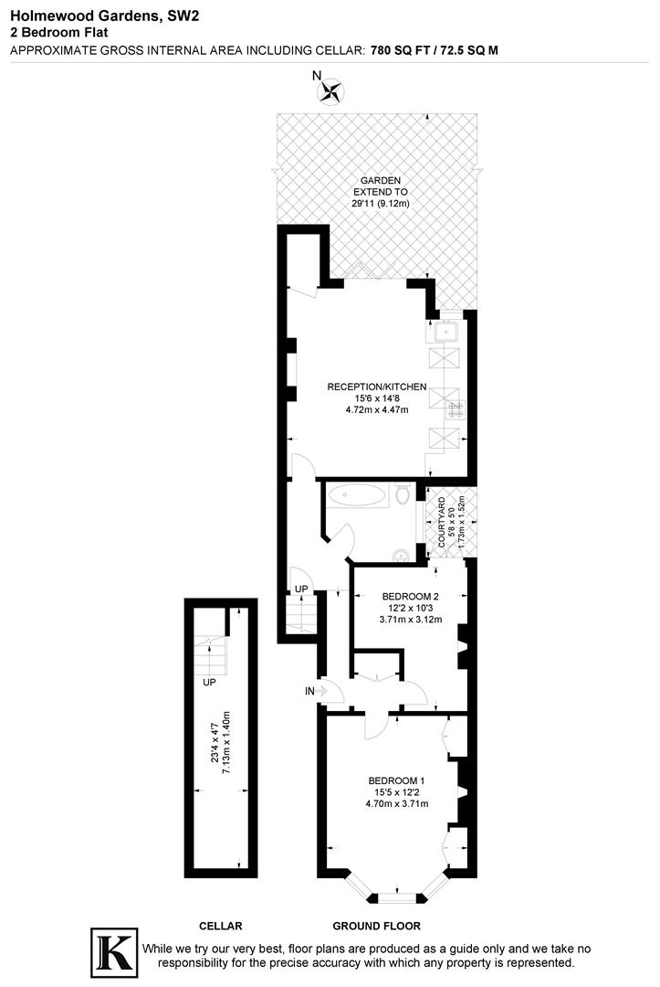
Full Description - Keating Estates are proud to present to market a truly stunning two bedroom Victorian garden flat, measuring 780 square feet and boasting a private landscaped garden, a spacious open-plan reception, and refined period features. This elegant property is nestled within a handsome terrace on the sought-after Holmewood Gardens, a peaceful residential enclave arranged around an attractive central garden square off Brixton Hill.
The home is beautifully presented throughout, blending classic Victorian character with considered modern touches.
Located to the rear of the property, the heart of the home lies in the generous open-plan reception and kitchen. This bright and inviting space is ideal for modern living and entertaining, with ample room for a dining area and lounge setup. The stylish kitchen is fitted with navy shaker-style cabinetry and brass hardware, complemented by crisp white worktops and a contemporary splashback. Skylights above flood the space with natural light, while a wood-burning stove nestled into the chimney breast in the lounge area provides a focal point with the option to cosy up in front of the fire during cooler months. A bank of trifold doors opens seamlessly onto the private garden, extending the living space and creating a perfect flow for indoor-outdoor entertaining.
The garden itself is a verdant haven, designed for easy maintenance and year-round enjoyment. Paved throughout and framed by lush greenery and mature planting, the space features several seating zones, ideal for alfresco dining or relaxing on long summer evenings. Potted plants add colour and charm, while a useful garden shed offers convenient storage, with further storage also available in the historic water closet, accessed off the reception room.
The principal bedroom is situated at the front of the property, enjoying calming views over Holmewood Gardens. This spacious and serene room benefits from high ceilings with intricate cornicing, a handsome original fireplace, a large bay window fitted with plantation shutters, and contemporary fitted wardrobes in a striking blue tone. Plush carpet underfoot enhances the comfort of this restful space. The second bedroom, currently arranged as a nursery, is also well-proportioned with a feature fireplace, soft carpeting, and French doors leading to a quaint courtyard area - an ideal setting for morning coffee or a peaceful retreat.
The bathroom has been designed with a luxurious, spa-like aesthetic, fitted with marbled wall tiles, a full-sized bathtub with overhead rainfall shower, a contemporary vanity, and sleek black fixtures to complete the look. Further benefits include a cellar offering excellent storage and hallway cupboards for practicality.
Situated on friendly and neighbourly road, the home overlooks the green open spaces of Holmewood Gardens. This pretty garden square is essentially a large garden to which you do not have to tend, with a designated area for dog exercise, children's playground and open grass for communal events, a leafy spot where the local residents are brought together. The Neighbourhood Association has planted an orchard and is actively involved in ensuring care of the area, plus organising many social events including summer parties, winter festivals, Hallowe'en activities. The gardens have played host to free concerts from Brixton Chamber Orchestra and the 606 Jazz club. Very family friendly, there are two great schools on the street (Orchard Primary rated Outstanding by Ofsted and Christ Church Streatham was in top 2% of attainment nationally last year).
Nearby, there are both chain and independent shops, bakeries, cafes, chemists, doctors and a gem of a pub, the Elm Park Tavern, just a five-minute walk away. Everything that Brixton has to offer, is a fifteen-minute walk away, from music venues and the culinary delights of Brixton Village to large brand shops and cracking transport links, first stop on the Victoria Line. Regular day and night buses run up and down Brixton Hill, with nine bus routes to whisk you to the Brixton tube within ten-minutes, and on into the city. In the other direction, you have Streatham High Street just a nine-minute walk away, with its multitude of restaurants and bars. Brockwell Park is a seven-minute stroll, with Tooting and Balham Common and Clapham Common also within walking distance. Having the South Circular on your doorstep and the option for on-street permit parking the location is perfect for those with a vehicle.
Share of freehold.

This property is marketed by

Keating Estates Ltd - Clapham London, London, SW4
4.9/5 Rating
(1255) reviews
Agent Statistics (Based on 1255 Reviews) :