The UK's Largest Customer Review Website for the Property Industry
The UK's Largest Customer Review Website for the Property Industry
Back to Property Listings
Holmes Chapel Road, Sproston, Crewe
*** We are delighted to bring forward for sale Manor Farm at Sproston near Middlewich in mid Cheshire ***The farm is well located close to the M6 motorway, east of Middlewich and is in excellent condition, having been owned and occupied by the same family for around 50 years.The land extends to 140 acres and is in great condition with good road access stop. Besides the commercial value that the farm offers it also has an amenity attraction as it runs alongside the River Dane. The farmhouse is laid out over 2 floors and has four bedrooms. Only there is a good array of farm buildings, some of which have been converted to a commercial use and are let.
Area Comments
Sproston is a rural village set in the heart of the Cheshire countryside, just a short distance from Holmes Chapel, which offers a range of local amenities including shops, cafés, and well regarded schools. The town of Middlewich is less than two miles to the west. The area is well connected for both road and rail travel. Junction 18 of the M6 is less than 1 mile away, offering access to the wider motorway network. Holmes Chapel and Crewe train stations provide regular services to Manchester, Liverpool, and London Euston, with journey times to the capital from Crewe in around 1.5 hours. Surrounded by open countryside, the area offers a variety of walking, cycling, and horse riding routes, making it ideal for those looking to enjoy a rural lifestyle without sacrificing connectivity
General Description
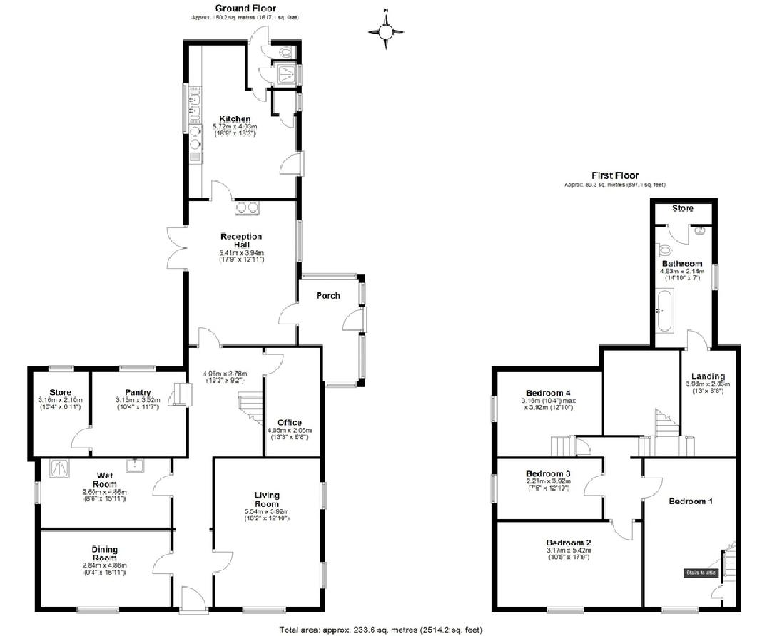
Manor Farm comprises approximately 140 acres of good quality Cheshire Farmland, being largely Grade 3 with some Grade 2. The land is in a ring fence and in good heart. There is a detached four bedroom farmhouse and an extensive range of farm buildings. There is good access from the A54 west of the M6 J18. The land runs down to the River Dane to the North. There are lettings of some buildings and areas on commercial leases, together with a license for the river, pond and horse letting. The total rent roll is £45,480. Floor plan for general information only.
Title
Title to the property is registered under the following numbers:CH 569791CH 590291CH 569790CH 736591CH 569789The property is sold subject to wayleaves and easements that may exist.
Directions
From M6 J18, head west towards Middlewich. Manor Farm will be found on the right-hand side after about 0.75 miles
Services
The property is connected to mains water and electricity. Drainage is to a septic tank. Heating is by oil-fired boilers (serving the house and offices).
Overage
The vendor reserves the right to negotiate an overage payment in respect of future non-agricultural development.
EPC
This property's energy rating (farmhouse) is E. EPCs for the office units are awaited. These were previously: Unit 1 (D) - Unit 2 (C).
Building Schdule
Viewings
Strictly by appointment call our office on 0161 941 4228.Please do not attend the site without prior appointment. The site is an operational farm so viewers must take appropriate precautions. Children will not be permitted on viewings.
Anti Money Laundering
In accordance with legal requirements, prospective buyers will be required to provide proof of ID and address before any offer can be reported to solicitors.
Offers
Offers must be made to the selling agent, Oakwood Property Services. Offers must include details of availability to proceed/funding and details of any conditions. The vendor reserves the right not to accept any offer made. Offers for lots will not be considered.
Building 1
Cow Kennels (Approx. 128 m²) Timber frame, corrugated tin sheeting to walls and roof. Concrete floor.
Building 2
Storage Building (Approx. 133 m²) Clear span steel frame, corrugated cladding. Concrete floor. Roller shutter door.
Building 3
Former Cubicle Shed (Approx. 725 m²) Steel frame open-fronted building with corrugated cladding. Mainly concrete floor.
Building 4
Former Milking Parlour (Approx. 252 m²) Brick walls, steel frame, corrugated roof, concrete floor. Milking pit still in situ.
Building 5
Modern Garage (Approx. 102 m²) Steel and timber frame. Steel cladding, concrete floor. In two sections with four electric roller shutter doors.
Building 6
Brick Shed (Approx. 19 m²) Brick and block walled shed with corrugated roof. Concrete floor.
Building 7
Former Dairy (Approx. 22 m²) Brick and block walls under a part tin, part slate roof. Concrete floor.
Building 8
8 Store Shed (Approx. 15 m²) Corrugated clad storage shed with plywood lining. Concrete floor.
Building 9
Storage Shed (Approx. 259 m²) Modern steel frame storage sheds in four sections, each with roller shutter door and pedestrian door. Breeze block internal walls.
Building 10
Dutch Barn and Lean-To (Approx. 416 m²) Steel framed Dutch barn with lean-to. Breeze block and corrugated tin to sides and ends, partly open, corrugated roof. Concrete floor. Eight stable partitions internally.
Building 11
Offices (Approx. 221 m²) Brick walls, corrugated roof, uPVC windows. Laid out as two independent offices, each with a central heating system, WC, and kitchen facilities.

This property is marketed by

Thompsons Estate Agents - Thompson's Estate Agents, Altrincham, WA14
5/5 Rating
(39) reviews
Agent Statistics (Based on 39 Reviews) :