The UK's Largest Customer Review Website for the Property Industry
The UK's Largest Customer Review Website for the Property Industry
Back to Property Listings
Holbrook, Oadby, Leicester
Immaculate detached family home which has been reconfigured to offer flexible accommodation for the modern family. The property is ideally situated on the ever popular Grange Estate in Oadby which is close to a selection of excellent schools, local amenities and open green space. The accommodation comprises entrance hall, downstairs w.c., lounge, kitchen diner, utility room, play room/home office, four bedrooms, two bathrooms, off road parking and landscaped rear garden. The property also benefits from owned solar panels. An excellent family home.
Details - SUMMARY Immaculate detached family home which has been reconfigured to offer flexible accommodation for the modern family. The property is ideally situated on the ever popular Grange Estate in Oadby which is close to a selection of excellent schools, local amenities and open green space. The accommodation comprises entrance hall, downstairs w.c., lounge, kitchen diner, utility room, play room/home office, four bedrooms, two bathrooms, off road parking and landscaped rear garden. The property also benefits from owned solar panels. An excellent family home.
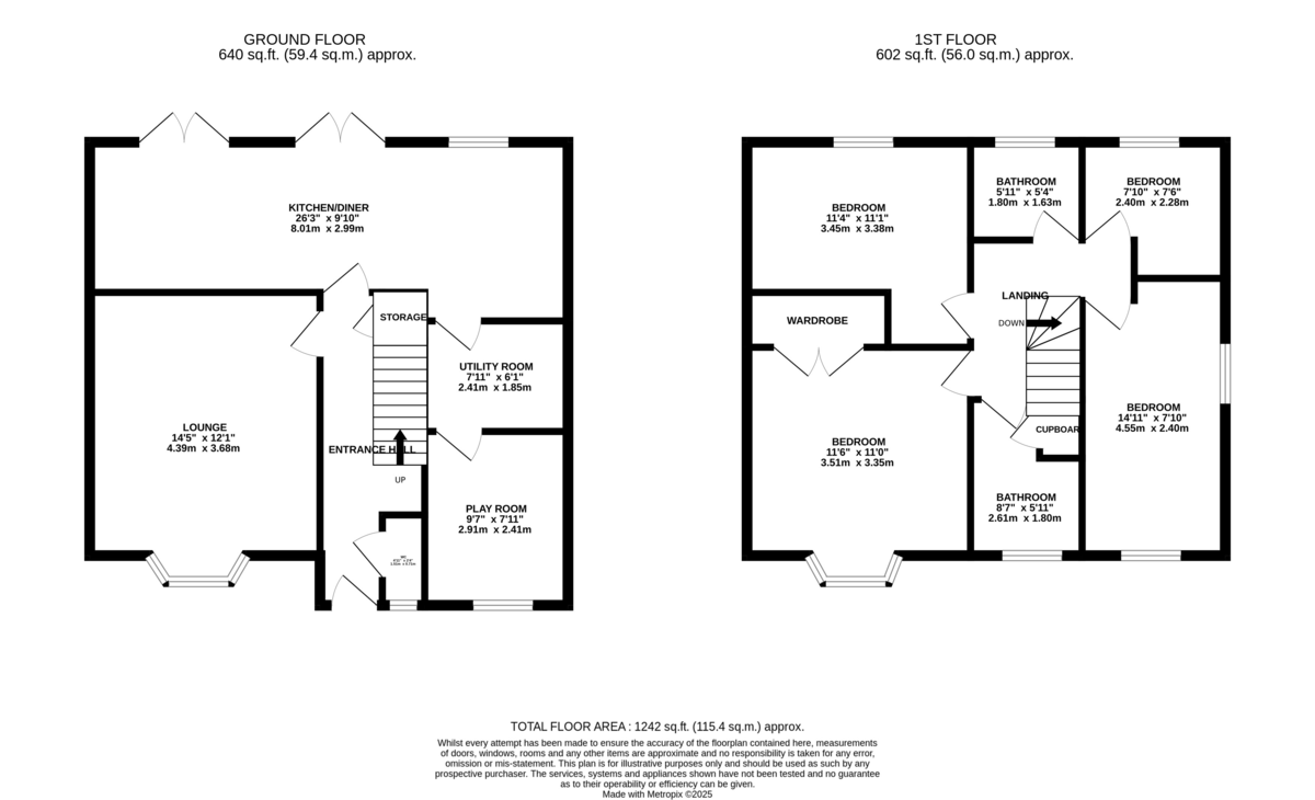
ENTRANCE HALL With under stairs storage cupboard, spotlights, security alarm, laminate floor, radiator and stairs off to the first floor.
WC 4' 11" x 2' 4" (1.5m x 0.71m) Comprising wash hand basin, low flush w.c., tiled splash backs, spotlights, window to the front elevation and radiator.
LOUNGE 14' 5" plus bay x 11' 1" (4.39m x 3.38m) With coving to the ceiling, radiator and bay window to the front elevation.
KITCHEN/DINER 26' 3" x 9' 10" (8m x 3m) Comprising base and wall mounted units with complementary work surfaces, sink unit with drainer, tiled splash backs, built in appliances to include fridge, dishwasher, oven, grill, hob and extractor, laminate floor, coving to the ceiling, two sets of French doors to the rear garden, radiator and window to the rear elevation.
UTILITY ROOM 7' 11" x 6' 1" (2.41m x 1.85m) With storage cupboard, plumbing for washing machine, spotlights, laminate floor and radiator.
PLAY ROOM/HOME OFFICE 9' 7" x 7' 11" (2.92m x 2.41m) With spotlights, laminate floor, radiator and window to the front elevation.
LANDING With access to the loft. The loft has a drop down ladder, is part boarded and houses the boiler.
BEDROOM 11' 6" plus bay x 11' (3.51m x 3.35m) With built in wardrobes, bay window to the front elevation, spotlights and radiator.
BEDROOM 11' 4" x 11' 1" (3.45m x 3.38m) With window to the rear elevation and radiator.
BEDROOM 14' 11" x 7' 10" (4.55m x 2.39m) With windows to the front and side elevations and radiator.
BEDROOM 7' 10" x 7' 6" (2.39m x 2.29m) With window to the rear elevation and radiator.
BATHROOM 8' 7" x 5' 10" (2.62m x 1.78m) Comprising panelled bath with shower over, wash hand basin, low flush w.c., extractor fan, tiled splash backs, over stairs storage cupboard, feature radiator, spotlights and window to the front elevation.
BATHROOM 5' 11" x 5' 4" (1.8m x 1.63m) Comprising panelled bath with shower over, vanity wash hand basin, low flush w.c., tiled splash backs, heated towel rail, extractor, tiled floor and window to the rear elevation.
OUTSIDE The front of the property has a lawned area and a hedged surround. There is a driveway to provide off road parking. The rear garden has been landscaped with a lawn area, well stocked flower borders, large patio area, summer house and a fenced surround.
SALES SUMMARY & MATERIAL INFORMATION • Price : OIRO £425,000
• Tenure : Freehold
• Length of lease : N/a
• Annual ground rent amount : N/a
• Ground rent review period : N/a
• Annual service charge amount : N/a
• Service charge review period : N/a
• Council tax band : D
• EPC Rating: TBC
• Property type: Detached House
• Property construction: Brick
• Number and types of room: Please refer to floorplan
• Electricity supply: mains
• Water supply: Mains
• Sewerage: Public sewer
• Heating: Gas Central Heating
• Broadband: Refer to Ofcom for broadband services
• Mobile signal / coverage: refer to Ofcom mobile coverage checker
• Parking: Driveway
• Building safety: No known hazards
• Restrictions: No known restrictions
• Rights and easements: No known relevant rights or easements
• Coastal erosion risk: None
• Planning permission: No known planning permissions or proposals for development
• Accessibility/Adaptations: None
• Coalfield or mining area: No direct impact of any mining activity
THINKING OF SELLING? We would be delighted to provide you with a free market appraisal/valuation of your own property. Please contact Phillips George to arrange a convenient appointment on 01162168178.
BUYING TO LET? Phillips George are expert, ARLA qualified letting agents with experience of all kinds of rental property across city and county. Should you need a rental valuation for your new property or on any of your existing portfolio, or simply want some advice on the current rental market, call us now on 01162168178.
DISCLAIMER & IMPORTANT INFORMATION Phillips George Sales & Lettings for themselves and the vendors of this property whose agents they are, give notice that these particulars are not to be relied upon as a statement or representation of fact and do not constitute any part of an offer or a contract. Intending purchasers must satisfy themselves by inspection or otherwise as to the correctness of each and any statements contained in these particulars. The vendors do not make or give and neither do Phillips George Sales & Lettings (nor any person in their employment) have authority to make any representation or warranty whatsoever in relation to the property.
None of the services, systems or appliances listed or shown in this specification have been tested by us and no guarantee as to their operating ability or efficiency is given. All floorplans and dimensions have been provided as a guide for prospective buyers only, and should not be relied on as a true representation.
Current money laundering regulations require us to confirm proof of identity and residency of anyone intending to purchase. We ask for your co-operation in providing the necessary documentation in order to avoid delays in agreeing the sale.

This property is marketed by

Phillips George Estate Agents - Wigston, Leicester, LE18
4.9/5 Rating
(42) reviews
Agent Statistics (Based on 42 Reviews) :