The UK's Largest Customer Review Website for the Property Industry
The UK's Largest Customer Review Website for the Property Industry
Back to Property Listings
Hogarth Close Beckton
Bryants are delighted to present this attractive two-bedroom family home.
A well-maintained mid-terraced property arranged over two floors, this home offers generous living space and would make an ideal first-time purchase, family home, or investment.
The ground floor features a bright and spacious living room with laminate flooring and double sliding doors opening onto a lovely rear garden complete with patio, lawn, and side flower beds, perfect for entertaining
There is also a modern fully fitted kitchen, with gloss finish wall and base units, dark wood effect worktops, gas hob, fitted oven, tiled splashbacks, and convenient power points.
Upstairs, the property boasts two generously sized bedrooms, along with a family bathroom comprising a three-piece white suite with shower attachment.
Additional benefits include double glazing throughout, gas central heating, a full-length attached garage offering storage or future development potential (S.T.P.P.), and a private driveway providing off-street parking.
Location Highlights:
Situated in a quiet residential area, Hogarth Close benefits from excellent transport links with A13, A406, Beckton DLR Station, and local bus routes nearby. Schools, parks, doctors, and shopping facilities are all within easy reach, making this a great option for families, commuters, and investors alike.
Contact Bryants today to arrange your viewing this fantastic property is not to be missed!
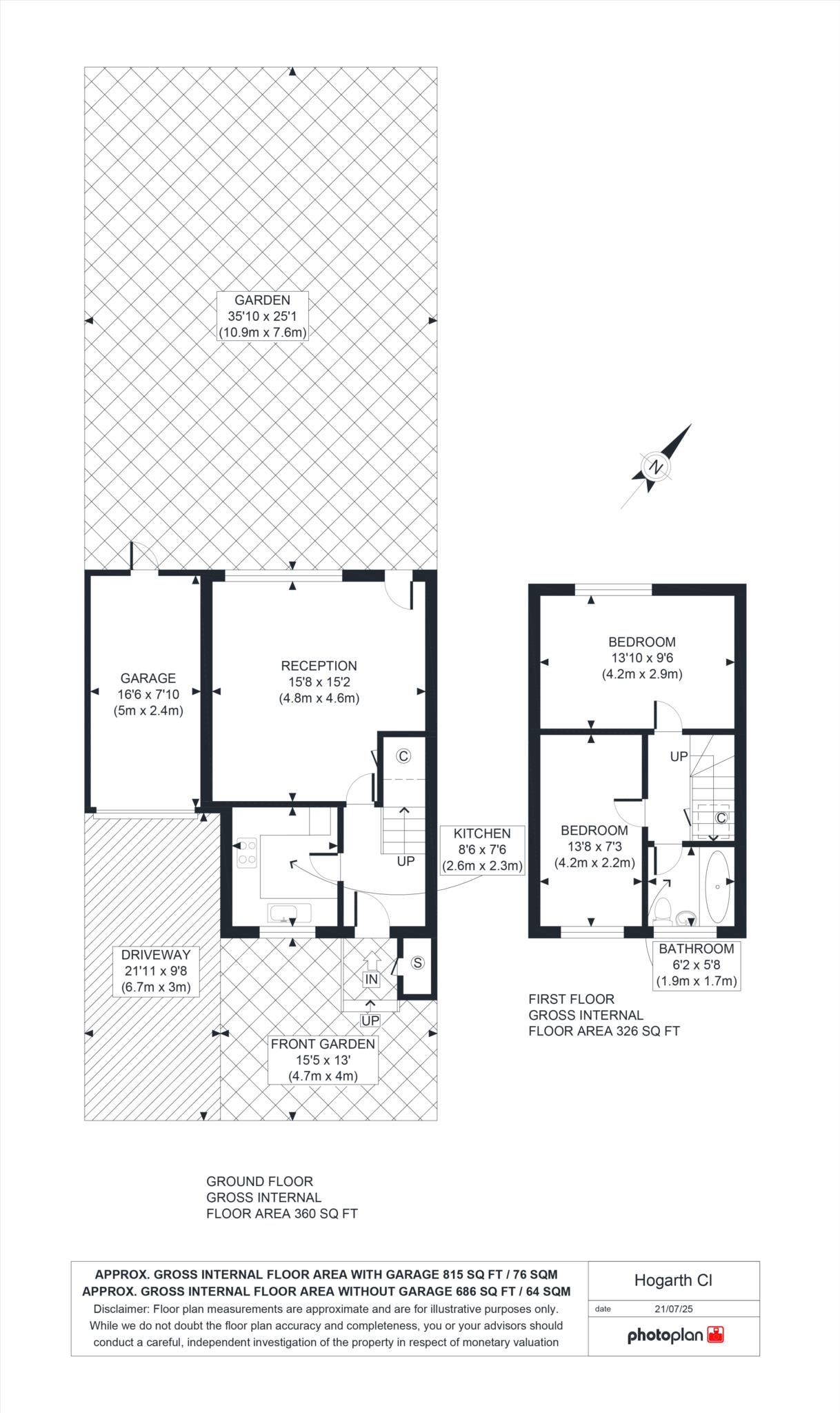
Lounge - 15'8" (4.78m) x 15'2" (4.62m)
Kitchen - 8'6" (2.59m) x 7'6" (2.29m)
Bedroom One - 13'10" (4.22m) x 9'6" (2.9m)
Bedroom Two - 13'8" (4.17m) x 7'3" (2.21m)
Bathroom - 6'2" (1.88m) x 5'8" (1.73m)
Garage - 16'6" (5.03m) x 7'10" (2.39m)
Garden - 35'10" (10.92m) x 25'1" (7.65m)
Driveway - 21'11" (6.68m) x 9'8" (2.95m)
Front Garden - 15'5" (4.7m) x 13'0" (3.96m)
Notice
Please note we have not tested any apparatus, fixtures, fittings, or services. Interested parties must undertake their own investigation into the working order of these items. All measurements are approximate and photographs provided for guidance only.
Council Tax
London Borough Of Newham, Band C
Utilities
Electric: Mains Supply
Gas: Mains Supply
Water: Mains Supply
Sewerage: Mains Supply
Broadband: Unknown
Telephone: Unknown
Other Items
Heating: Not Specified
Garden/Outside Space: No
Parking: No
Garage: No

Agent Statistics (Based on 13 Reviews) :