The UK's Largest Customer Review Website for the Property Industry
The UK's Largest Customer Review Website for the Property Industry
Back to Property Listings
Hinckley Road, Leicester
Dating back to 1890, this impressive Victorian villa boasts over 2,370 sq.ft. and five well proportioned bedrooms and three formal reception rooms set across three tall floors. The property offers immense character and many original features lending itself to a family buyer. This grand period home is located within close proximity of the city centre and an extensive range of amenities. The property has a superb landscaped and low maintenance rear garden and is beautifully presented throughout with ready to move into accommodation.
Details - SUMMARY Dating back to 1890, this impressive Victorian villa boasts over 2,370 sq.ft. and five well proportioned bedrooms and three formal reception rooms set across three tall floors. The property offers immense character and many original features lending itself to a family buyer. This grand period home is located within close proximity of the city centre and an extensive range of amenities. The property has a superb landscaped and low maintenance rear garden and is beautifully presented throughout with ready to move into accommodation.
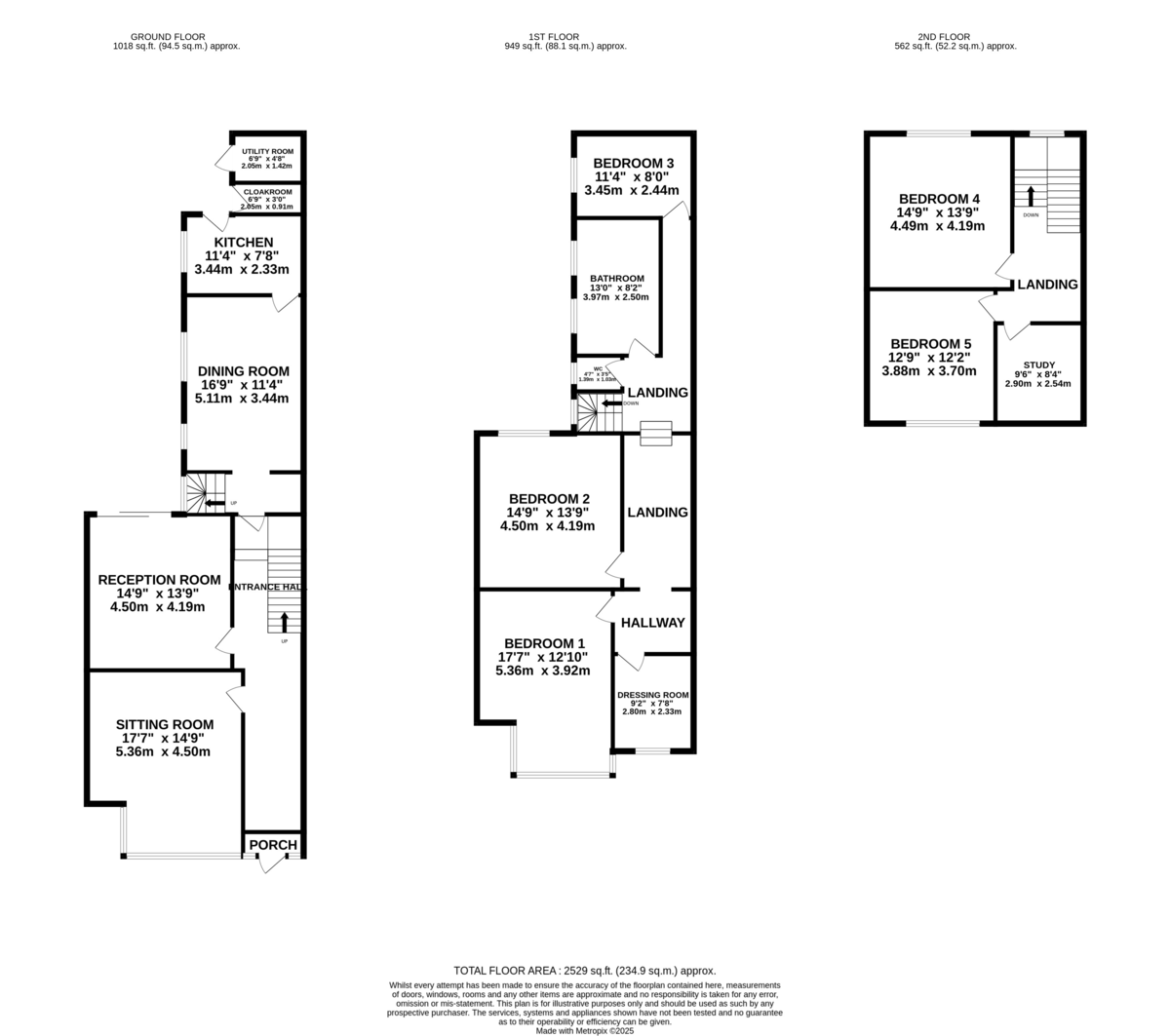
ENTRANCE PORCH With steps leading up from the front garden into entrance porch with original chequered tiled flooring, beautiful original stained glazed door providing access to:
ENTRANCE HALL 28' 0" x 6' 9" (8.53m x 2.06m) A welcoming and most impressive entrance hall with an original Minton tiled flooring, ornate solid wooden staircase with central runner rising to the upper floor accommodation. Within the hall there are many period features including cornicing, wood panelling, two radiators and doors through to the front two reception rooms.
SITTING ROOM 17' 7" x 14' 9" (5.36m x 4.5m) Having a bay window with glazing to the front and ornate open fireplace, also benefiting from decorative cornicing to the ceilings and high skirting.
SECOND RECEPTION ROOM 14' 9" x 13' 9" (4.5m x 4.19m) Currently utilised as a sitting room and also benefiting from an open fireplace with decorative painted Victorian tiled slips and ornate marble mantelpiece, floor to ceiling glazing with sliding doors leading directly into the garden, high ceiling with ceiling rose and cornicing.
INNER HALL The inner hall is approached from the end of the entrance hall with a second staircase rising to the first floor landing, access with stairs leading down to the cellar and original built in cupboards. Beyond which is:
DINING ROOM 16' 9" x 11' 4" (5.11m x 3.45m) This light, bright and airy room with two sash windows to the side elevation, chequered tiled flooring, a range of display glazed units with oak worktop and some original cupboards, central chimney breast with a Rayburn set within the middle with two hotplates and two ovens, recessed spotlighting and door which leads through to the rear kitchen.
KITCHEN 11' 4" x 7' 8" (3.45m x 2.34m) Having a range of shaker style units with space for freestanding appliances. A tall room with a sash window overlooking the garden and freestanding cooker with electric and gas connection. An original door leads out to a rear covered veranda with access to a refitted toilet and laundry room and into the garden itself.
FIRST FLOOR LANDING A split level landing with beautiful decorative features and return staircase to the second floor.
BEDROOM ONE 12' 9" x 12' 3" (3.89m x 3.73m) Situated to the front of the property with a large walk-in bay window and commanding fireplace with living flame gas fire and original tiled hearth with cornicing and picture rail as well as a vanity unit.
DRESSING ROOM 9' 2" x 8' 6" (2.79m x 2.59m) Currently being used as a study, but easily lends itself to becoming a dressing room with impressively tall ceilings and period charm with a timber framed sash window to front aspect.
BEDROOM TWO 14' 9" x 13' 9" (4.5m x 4.19m) A second double bedroom looking over the rear garden and also having the benefit of a vanity unit and original fireplace with decorative tiled hearth with beautiful sash windows to the rear.
WC Timber framed window to side aspect. Low level WC.
BEDROOM THREE 11' 4" x 7' 9" (3.45m x 2.36m) A well proportioned bedroom with a cast iron feature fireplace and window overlooking the side elevation.
FAMILY BATHROOM 13' 2" x 8' 5" (4.01m x 2.57m) This spacious family bathroom has been remodelled with underfloor heating and contemporary tiling to the walls and floor. There is a claw foot, roll top freestanding bath, a large separate double shower cubicle, wash hand basin, low level WC and two sash windows and recessed lighting.
SECOND FLOOR LANDING On the second floor there is access to a further two double bedrooms and a further room ideal as a study. There is a large timber framed sash window on the half landing overlooking the rear aspect.
BEDROOM FOUR 14' 9" x 13' 9" (4.5m x 4.19m) UPVC double glazed sash window to rear aspect. Cast iron feature fireplace. Wash hand basin.
BEDROOM FIVE 12' 9" x 12' 4" (3.89m x 3.76m) Being a double bedroom, having a vanity unit also having a seated bay window to the front with replacement UPVC glazing.
STUDY 9' 6" x 8' 4" (2.9m x 2.54m) Having a dormer window overlooking the front elevation.
OUTSIDE The property has a hard landscaped front garden for ease of maintenance with wall and mature hedging to the front boundary and wrought iron gate providing pedestrian access. Raised gravel beds with access to the front entrance door. The rear garden is a private oasis and has been beautifully landscaped with various seating areas, with low maintenance at the forefront. There is a large slate gravel area with railway sleepers leading to a further slate area with decorative circular paving and beyond is a raised timber deck which is an area of the garden which catches the sunshine and creates an ideal seating area with raised timber planters, outdoor tap and lighting and a covered walkway with access to the outdoor toilet and the laundry room with gated rear access.
BRICK BUILT OUTBUILDINGS There are two brick-built outbuildings one having a WC and wash hand basin and the other being a great utility/laundry room with space and plumbing for a washing machine with space over for a condensing tumble dryer. This room also houses the boiler.
CELLAR The property has a large cellar with power and is great for storage.
SALES SUMMARY & MATERIAL INFORMATION • Price : £489,950
• Tenure : Freehold
• Length of lease : N/a
• Annual ground rent amount : N/a
• Ground rent review period : N/a
• Annual service charge amount : N/a
• Service charge review period : N/a
• Council tax band : C
• EPC Rating: D
• Property type: Period Mid Terrace
• Property construction: Brick
• Number and types of room: Please refer to floorplan
• Electricity supply: Mains
• Water supply: Mains
• Sewerage: Public sewer
• Heating: Gas Central Heating
• Broadband: Refer to Ofcom for broadband services
• Mobile signal / coverage: refer to Ofcom mobile coverage checker
• Parking: On Street Parking
• Building safety: No known hazards
• Restrictions: No known restrictions
• Rights and easements: No known relevant rights or easements
• Coastal erosion risk: None
• Planning permission: No known planning permissions or proposals for development
• Accessibility/Adaptations: None
• Coalfield or mining area: No direct impact of any mining activity
THINKING OF SELLING? We would be delighted to provide you with a free market appraisal/valuation of your own property. Please contact Phillips George to arrange a convenient appointment on 01162168178.
BUYING TO LET? Phillips George are expert, ARLA qualified letting agents with experience of all kinds of rental property across city and county. Should you need a rental valuation for your new property or on any of your existing portfolio, or simply want some advice on the current rental market, call us now on 01162168178.
DISCLAIMER & IMPORTANT INFORMATION Phillips George Sales & Lettings for themselves and the vendors of this property whose agents they are, give notice that these particulars are not to be relied upon as a statement or representation of fact and do not constitute any part of an offer or a contract. Intending purchasers must satisfy themselves by inspection or otherwise as to the correctness of each and any statements contained in these particulars. The vendors do not make or give and neither do Phillips George Sales & Lettings (nor any person in their employment) have authority to make any representation or warranty whatsoever in relation to the property.
None of the services, systems or appliances listed or shown in this specification have been tested by us and no guarantee as to their operating ability or efficiency is given. All floorplans and dimensions have been provided as a guide for prospective buyers only, and should not be relied on as a true representation.
Current money laundering regulations require us to confirm proof of identity and residency of anyone intending to purchase. We ask for your co-operation in providing the necessary documentation in order to avoid delays in agreeing the sale.

This property is marketed by

Phillips George Estate Agents - Wigston, Leicester, LE18
4.9/5 Rating
(42) reviews
Agent Statistics (Based on 42 Reviews) :