The UK's Largest Customer Review Website for the Property Industry
The UK's Largest Customer Review Website for the Property Industry
Back to Property Listings
Hillway, Linton, Cambridge
A semi detached bungalow in a sought after and well served village with excellent facilities and amenities, benefiting from open plan lounge and kitchen, two double bedrooms and rear garden. Offered for sale with no onward chain. (EPC Rating C)
The well regarded village of Linton has a pleasing blend of both modern and period properties as well as a good range of local amenities including shops, public houses, post office, primary school and village college with its own sports centre. The market towns of Haverhill and Saffron Walden are approximately 8 miles distant and the University City of Cambridge is around 11 miles away. Audley End mainline station offering a commuter service to London's Liverpool Street is around 11 miles away and the M11 motorway access point is within approximately 8 miles at Duxford (junction 10).
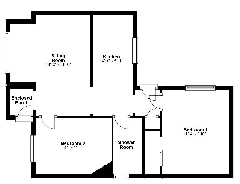
GROUND FLOOR
Entrance door to:
ENCLOSED PORCH
Radiator, open plan to:
SITTING ROOM
4.53m (14'10") max x 3.62m (11'10") max
Window, radiator, open plan to:
KITCHEN
4.53m (14'10") x 1.81m (5'11")
Fitted with a matching range of base and eye level units with worktop space over, stainless steel sink with mixer tap, integrated fridge/freezer, plumbing for washing machine and dishwasher, electric oven, four ring ceramic hob with extractor hood over, window to side, radiator, open plan to, door to:
SHOWER ROOM
Fitted with three piece suite comprising double shower enclosure, vanity wash hand basin, low-level WC and heated towel rail, extractor fan, obscure window.
BEDROOM 1
3.76m (12'4") x 3.00m (9'10")
Window to rear, radiator, sliding door to wardrobe.
BEDROOM 2
3.45m (11'4") x 2.53m (8'4")
Window, radiator.
AGENTS NOTE - For more information on this property, please refer to the Material Information brochure that can be found on our website.
Viewings - By appointment through the selling agents.
Special Notes - 1. None of the fixtures and fittings are included in the sale unless specifically mentioned in these particulars.
2. Please note that none of the appliances or the services at this property have been checked and we would recommend that these are tested by a qualified person before entering into any commitment. Please note that any request for access to test services is at the discretion of the owner.
3. Floorplans are produced for identification purposes only and are in no way a scale representation of the accommodation.

Agent Statistics (Based on 754 Reviews) :