The UK's Largest Customer Review Website for the Property Industry
The UK's Largest Customer Review Website for the Property Industry
Back to Property Listings
Hillcrest House, Husbands Bosworth, Lutterworth
Combining rural charm, character and period features with the convenience of commuter links, both road and rail, this detached seven-bedroom, Georgian home which is offered for sale with no upward chain, and features approximately 3,000 square feet of flexible space, landscaped walled garden with outdoor kitchen is ideal for growing families and downsizers alike.
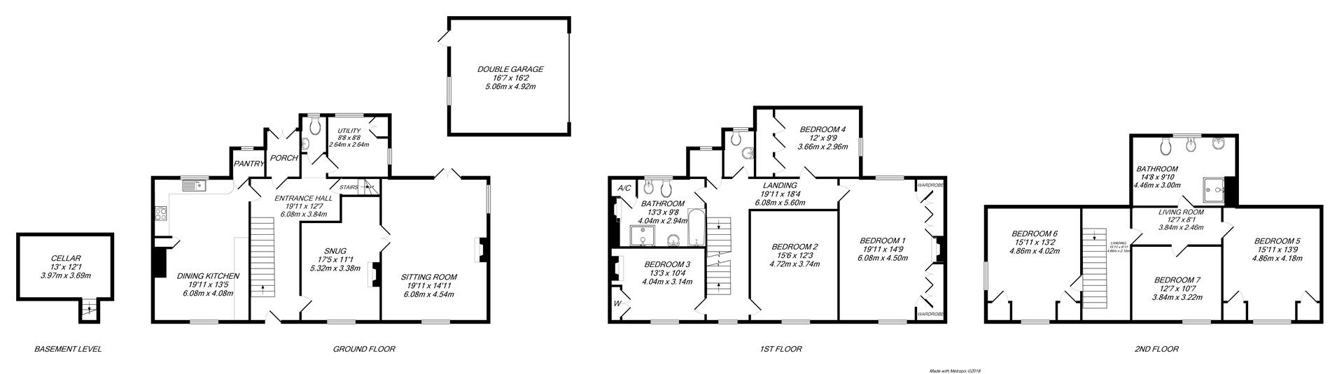
Accommodation - Welcome to Hillcrest House, a charming residence dating back to circa 1760 and steeped in charm and history. The wisteria wrapped canopied porch captures your attention before you see the striking, Minton tiles of the reception hall, deep skirting boards and hand-carved architraves. The hall leads to a vestibule area where there is a guest cloakroom, utility/boot room, which offers space for appliances as well as a larder cupboard and, also access down to the cellar, (believed to be a Victorian wet cellar).
To the right of the hall, is a snug, which could serve as a study. A cosy space with bespoke shelving and cabinetry to the recess, slate flooring and log-burning stove that provides a focal point. Arched double doors lead you through to generously sized sitting room, which is arranged around a striking hearth and mantle, within which is a "Jotul" log-burning stove. Natural light fills the room through sash windows at the front and side, as well as double patio doors to the rear. The farmhouse dining kitchen is full of charm with bespoke wall and base units and stone worksurfaces providing ample space and storage. A ceramic double Belfast sink takes in a view of the attractive courtyard terrace, while there is space for a range-style oven to the recess at the side, space for a fridge/freezer and integrated dishwasher. To the corner is a pantry cupboard.
To the first floor you will find four double bedrooms, all with fitted wardrobes, including the dual aspect master bedroom with striking feature fireplace. The bedroom at the rear, is currently used a study. The family bathroom has been re-fitted to provide a contemporary, heritage-style suite comprising free-standing bath, separate shower cubicle, WC and wash hand basin. There is also a separate WC.
The second floor features a landing, part of which has vaulted ceiling and exposed beams and could serve as a teenager's suite/ study area which in turn leads to two double bedrooms and refitted shower room. A further double bedroom can be found across the landing.
Outside - Step outside into a private oasis full of charm and colour in abundance. This delightful walled garden has been lovingly landscaped with mature bedding borders flanking the central lawn where a stepping stone path leads to the outdoor kitchen and barbecue/dining terrace, which is ideal for entertaining and relaxing, al fresco, in style. A radial paved terrace offers further space for a morning cuppa or breakfast, while a gravelled and paved terrace to the corner offers a private spot for a quiet read. There is access through a timber gate from the street and access into the rear of the double detached garage which can be approached by vehicle, from the lane at the side.
Location - Husbands Bosworth is a thriving, attractive village with many interesting period properties, offering a general store, medical centre, primary school, post office, parish Church and public house. The area is popular with buyers wanting convenient access to Market Harborough, Leicester and Lutterworth, and provides excellent communications via rail from Market Harborough and Rugby and Junction 20 of the M1 at Lutterworth. Leicester City Centre is some 12 miles distant offering a wider range of amenities normally associated with a large City Centre. Both Market Harborough and Leicester off mainline rail connections to London St Pancras in approximately an hour.
Property Information - Tenure: Freehold
Local Authority: Harborough District Council Tax Band: G
Listed Status: Not Listed Built: 1760
Conservation Area: Yes, Husbands Bosworth Conservation Area
Services: The property is offered to the market with all mains services and oil-fired central heating.
Meters: Water meter
Broadband delivered to the property: FTTC
Non-standard construction: Believed to be of standard construction
Wayleaves, Rights of Way & Covenants: Yes. Hillcrest House has a right of way to its private drive
Flooding issues in the last 5 years: None
Accessibility: No modifications
Planning issues: None which our clients are aware
Satnav Information - The property's postcode is LE17 6LA , and house number 19.

This property is marketed by

James Sellicks Estate Agents - Market Harborough, Market Harborough, LE16
4.9/5 Rating
(281) reviews
Agent Statistics (Based on 281 Reviews) :