The UK's Largest Customer Review Website for the Property Industry
The UK's Largest Customer Review Website for the Property Industry
Back to Property Listings
Highgrove Terrace, Reading
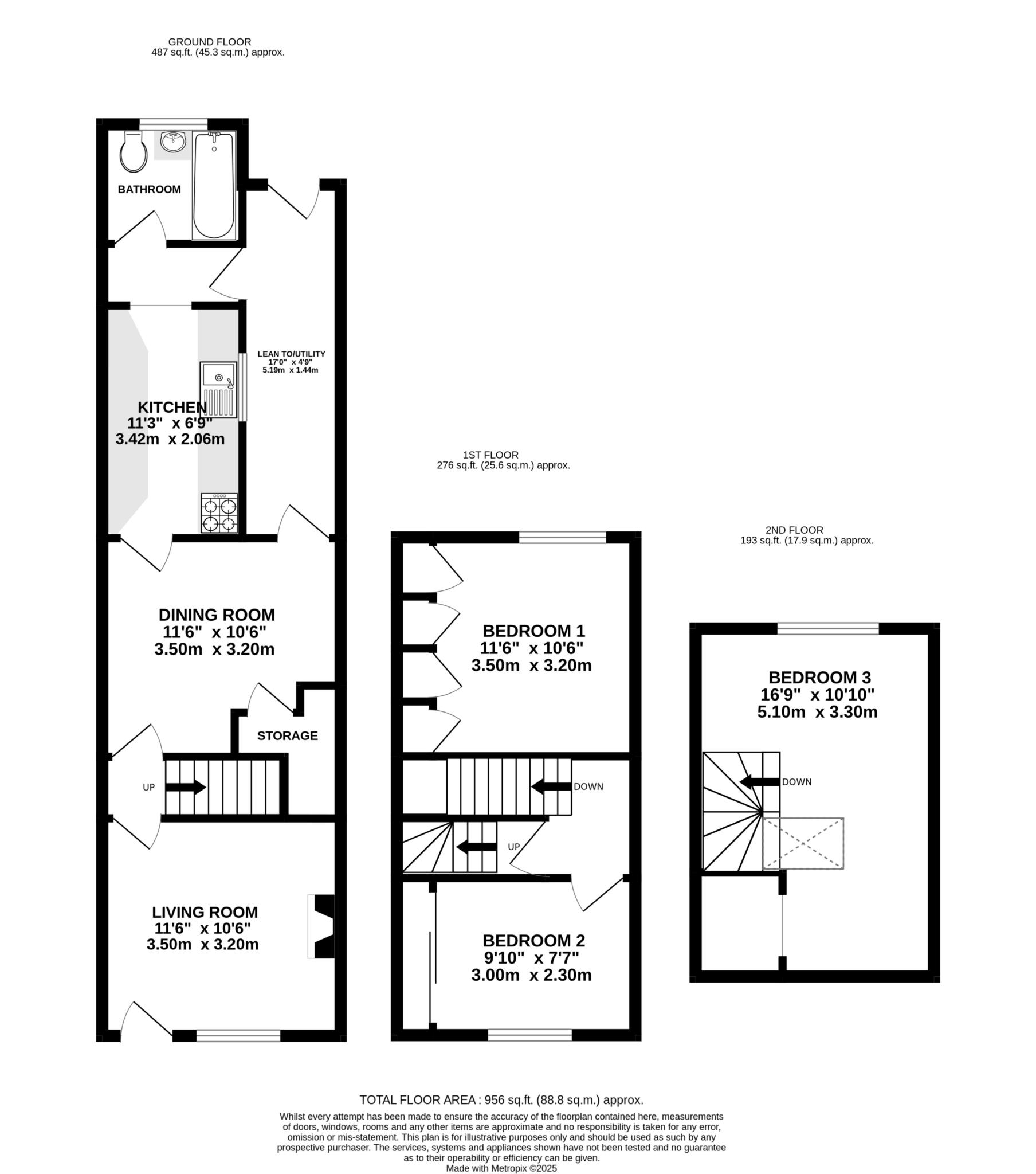
Masons are proud to offer to the market this 3 bedroom Victorian terraced family home situated close to a plethora of local amenities, within walking distance of Reading Town Centre and mainline station. The accommodation is arranged over three floors comprising of an 11ft living room, an 11ft dining room, an 11ft kitchen, modern family bathroom, an 11ft master bedroom, a 9ft second bedroom and a 16ft third bedroom. Further benefits include a 17ft lean to/utility, UPVC double glazing, gas central heating and the property is offered for sale with NO ONWARD CHAIN. VIEWING RECOMMENDED.
Front door opens into...
Living Room:
11`6" x 10`6"
Double glazed, front aspect and a door to hallway.
Dining Room:
11`6" x 10`6"
Fitted with a storage cupboard, a door to the lean to/utility and a door to the kitchen.
Kitchen:
11`3" x 6`9"
Double glazed with a side aspect, fitted with a range of eye and base level units with roll edge tops and tiled surround, 1.5 sink with drainer and space for further appliances. An opening from the kitchen leads to a hall which boasts a door to the lean to/utility and access to the bathroom.
Bathroom:
Single glazed with a rear aspect, fitted with a panel enclosed bath, low level WC and hand wash basin.
Lean to/utility:
17` x 4`9"
Fitted with a door to the garden and to the dining room.
Stairs from the hallway lead to the first floor landing which boats stairs to the second floor and doors to...
Bedroom 1:
11`6" x 10`6"
Double glazed with a rear aspect and built in wardrobes.
Bedroom 2:
9`10" x 7`7"
Double glazed with a front aspect and built in wardrobe.
Bedroom 3:
16`9" x 10`10"
Double glazed with a rear aspect, built in wardrobe and a velux window.
Outside:
To the rear the garden is mainly laid with block paving but boasts a shingled area at the highest level and also boasts shed storage. To the front the property offers on road permit parking.
Notice
Whilst every care has been taken in the preparation of these particulars, and they are believed to be correct, they are not warranted and intending purchasers/lessees should satisfy themselves as to the correctness of the information given.Please note we have not tested any apparatus, fixtures, fittings, or services. Interested parties must undertake their own investigation into the working order of these items. All measurements are approximate and photographs provided for guidance only.
Council Tax
Reading Borough Council, Band B
Utilities
Electric: Mains Supply
Gas: Mains Supply
Water: Mains Supply
Sewerage: Mains Supply
Broadband: Unknown
Telephone: Unknown
Other Items
Heating: Gas Central Heating
Garden/Outside Space: Yes
Parking: No
Garage: No

Agent Statistics (Based on 72 Reviews) :