The UK's Largest Customer Review Website for the Property Industry
The UK's Largest Customer Review Website for the Property Industry
Back to Property Listings
High Street, Wilburton, Ely
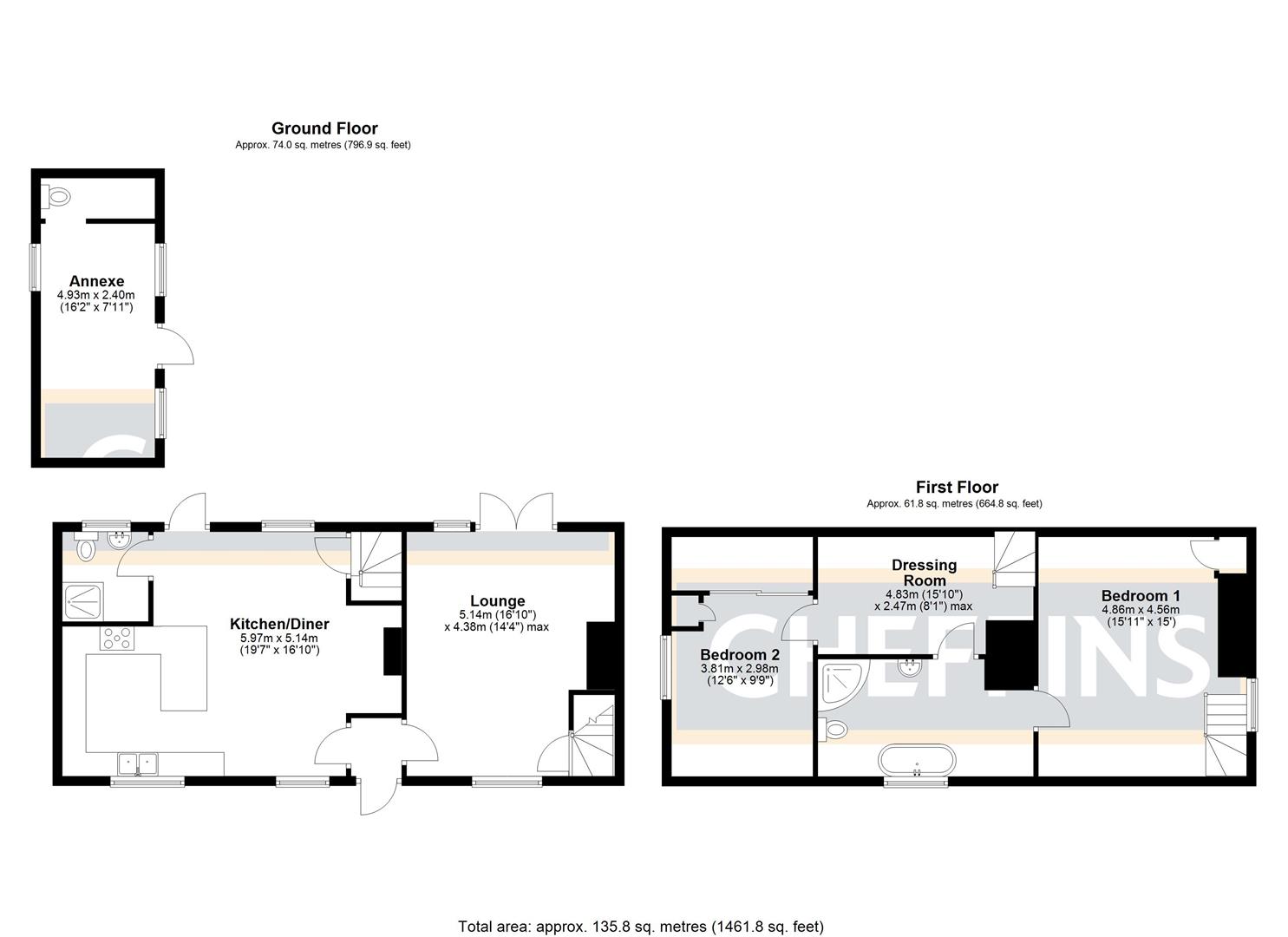
Offering to the market, this recently renovated Grade 2 Listed thatched cottage. Comprises entrance hall, living room, kitchen/dining room, 2 first floor bedrooms with a Jack & Jill bathroom, together with an enclosed garden to rear, outbuilding with planning for conversion and suitable for use as a third bedroom, office, air b& b or studio etc. , garage and off road parking.
Entrance Hall - With door to front aspect, wall mounted fuse box, radiator and original brick flooring. Door leading into:
Kitchen / Sitting Area - With double glazed window to the front, matching wall and base level units with worktop space, integrated microwave, stainless steel extractor fan, integrated induction hob with integrated Bosch oven and grill, tiled splash backs, double butler sink with stainless steel mixer tap (the tap is also provides boiling water), double glazed window to the rear, door leading to the rear garden, door to downstairs shower room / utility, wooden flooring throughout, feature inglenook with tiled flooring. Door to staircase leading to the first floor.
Downstairs Shower Room / Utility - With frosted double glazed window to the rear, shower cubicle, wash hand basin with separate taps and tiled splash back, low level WC, extractor fan and heated towel rail.
Sitting Room - With double glazed windows to the front and French doors leading into the garden, feature open fireplace (functional) with tiled flooring section to the front. Stairs rising to:
Bedroom 1 - With double glazed window to the side, built in storage cupboard, storage cupboard in the eaves, radiator and feature fireplace. Door leading to:
Jack & Jill Bathroom - With double glazed window to the front, shower cubicle, extractor fan, tiled splashbacks, wash hand basin with mixer tap, freestanding bath with mixer tap and hand-held shower, vinyl flooring, heated towel rail and access to loft.
Landing - Currently being used as a dressing area. With storage units, radiator, door to:
Bedroom 2 - With double glazed window to the side, built-in wardrobe, radiator.
Outside - The garden is enclosed by wooden fence panels with raised patio area, brick paved walkway leading to the rear parking, timber framed garage and outbuilding which currently has planning permission for an annexe (further information to follow).
Agents Notes - The property was built in 1783 and is Grade II Listed. The property was recently renovated and modernised within the legal process. The thatch has recently been re-done.
Planning permission for conversion of the outbuilding was granted by East Cambs District Council under planning reference 24/00475/FUL.
Viewing Arrangements - Strictly by appointment with the Agents.

Agent Statistics (Based on 752 Reviews) :