The UK's Largest Customer Review Website for the Property Industry
The UK's Largest Customer Review Website for the Property Industry
Back to Property Listings
High Street, Watlington
This luxury apartment over 1200 sqft, is located on the High Street in Watlington. The accommodation includes a generous 21` living room, with windows overlooking the front, a kitchen/dining room with plenty of space for dining table and chairs, two large double bedrooms, a bathroom and a separate en-suite shower room to bedroom one. The property has been comprehensively renovated to a high standard and the room sizes are generous, making the property feel light and airy. There is a recently fitted gas fired boiler, providing heating and hot water and double glazing, with EPC C. The property is unfurnished, with white goods provided. There is a private garden to the rear of the property. On street parking available.
Watlington is an attractive and busy small town, set in the Chiltern Hills, with a long history going back to the Domesday book and beyond. There is a range of local shops including a butcher, delicatessen and bakery, plus a local supermarket and a pharmacy. There are local sports facilities including football, cricket, tennis, squash and bowls. The Chiltern Hills are nearby, providing a wide range of access to local footpaths and nature reserves, plus views over fine landscapes. The M40 provides easy access to London, with the Oxford tube service from nearby Lewknor.
Professional couple preferred. Sorry, not suitable for smokers or pets.
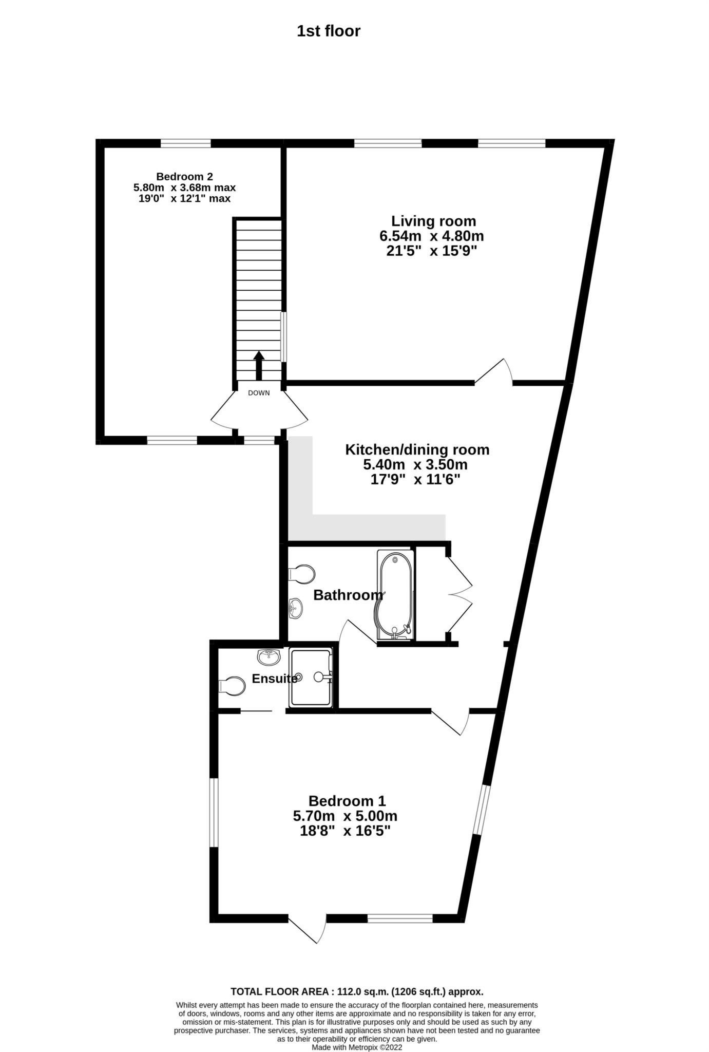
ACCOMMODATION - Ground floor
Half glazed door into entrance lobby with stairs rising to the first floor.
FIRST FLOOR - Landing
Doors to bedroom two and kitchen, double glazed window to the rear.
Bedroom Two - 5.8m (19'0") Max x 3.68m (12'1") Max
A large double aspect double room with double glazed windows to the front and rear, recessed ceiling down lights and radiators.
Kitchen / Dining Room - 5.4m (17'9") Max x 3.5m (11'6") Max
Smartly fitted with a matching range of Shaker-style wall and base units housing cupboards, drawers and full height pull out larder units, marble effect resin work surfaces and up stands, under set 1? bowl sink unit with mixer tap, built in electric oven with hob and extractor over, built in microwave, integrated dishwasher and washer/dryer, American-style fridge/freezer, recessed ceiling down lights, under unit lighting, radiator, double glazed window to the side. Doors to large airing.storage cupboard and door to:
Living Room - 6.54m (21'5") Max x 4.8m (15'9") Max
A spacious, light and airy reception room with electric fire in a marble surround, recessed ceiling down lights, radiators, television aerial point, internal window to the stair well and two double glazed windows to the front of the building.
Bedroom One - 5.7m (18'8") Max x 5m (16'5") Max
With a double glazed door and two double glazed windows to the rear along with one to the side, plenty of light makes this a lovely bright bedroom, recessed ceiling down lights, radiators and sliding door to:
En-suite shower room
Matching suite comprising shower cubicle, concealed cistern WC and vanity hand wash unit, illuminated vanity wall cupboard, wall mounted heated towel rail, tiled walls and floor and recessed ceiling down lights.
Bathroom
Fitted with a white suite comprising panel sided shower end bath with electric shower over, vanity hand wash basin and concealed cistern WC, wall mounted heated towel radiator, ceiling light point and double glazed window to the side.
Garden
Private garden for tenancy sole use. Laid to lawn bordered by flower beds. Some established shrubs and trees.
Availability
Available from July/August 2025
Unfurnished, with some white goods provided.
Assured Shorthold Tenancy for a minimum of twelve months.
Sorry, not suitable for: smokers / pets.
Professional couple preferred.
Viewings
Viewings strictly by appointment: benson@griffithandpartners.co.uk / 01491 612831
Services
Services: Mains Gas / Electricity / Water / Mains drainage
Broadband: BT indicates 63-73 mbps download available (not checked or warranted)
Local Authority: South Oxfordshire District Council
Council Tax Band: C ? 2214.97 pa 2025 / 2026
EPC Rating: C
Leased parking spaces available locally under a separate contract.
Terms and Conditions
Management Status: Griffith & Partners manage the property
Rent: payable per calendar month in advance. In addition the tenant shall be responsible for all Council Tax, Utility and Telephone / Broadband costs, including private drainage where applicable
Pets: Where a Landlord grants consent for a pet to be kept at the property, the Landlord may ask for a higher rent to be paid to reflect the additional wear and tear of a pet being kept at the property.
Security deposit payable: Five weeks rent where the rent is up to ?50,000 pa,
Deposit amount: ?1,903.00 based on a rental amount of ?1,650.00 pcm
Holding deposit: A holding deposit of one week`s rent will be requested to secure the property following acceptance of an offer.
Holding deposit: ?380.00 based on a rental amount of ?1,650.00 pcm
Costs and Charges
The tenant may be asked to pay the following costs:
Alterations to the Agreement: Where tenant/s request a change to the terms of the tenancy agreement after the Agreement has been signed, a fee of up to ?50.00 including VAT may be charged for each alteration requested.
Early surrender: Where tenant/s request an early surrender of the tenancy or a change of joint tenant, consent may be granted subject to conditions, and the outgoing tenant will be required to pay agents fees and reletting costs.
Default fees: Loss of keys or security devices. The tenant will be asked to pay for replacement keys, locks or security devices where they are lost, damaged or broken by the tenant.
Rental payments: Where the tenant is in default of rent payments, a reasonable default charge may be made, based on the reasonable costs incurred in recovering the unpaid rent. Interest maybe charged at a maximum of 3.0% above Bank of England base rate.
Client Money Protection
Client Money Protection:
We are members of the Propertymark Client Money Protection Scheme.
For more information: https://www.propertymark.co.uk/working-in-the-industry/member-requirements/client-money-protection.aspx
Deposit Protection:
We are members of the Tenancy Deposit Scheme Insured approved scheme for the protection of Tenant`s deposits. For more information: https://www.tenancydepositscheme.com/
Redress Scheme: We are members of The Property Ombudsman Redress Scheme.
For more information: https://www.tpos.co.uk/
Notice
All photographs are provided for guidance only.
Redress scheme provided by: Property Ombudsman (N02334)
Client Money Protection provided by: Property Mark (C007439)
Utilities
Electric: Mains Supply
Gas: Mains Supply
Water: Mains Supply
Sewerage: None
Broadband: None
Telephone: Landline
Other Items
Heating: Gas Central Heating
Garden/Outside Space: Yes
Parking: No
Garage: No

Agent Statistics (Based on 1 Reviews) :