The UK's Largest Customer Review Website for the Property Industry
The UK's Largest Customer Review Website for the Property Industry
Back to Property Listings
High Street, Stewarton
Nestled in the charming town of Stewarton, East Ayrshire, this delightful three-bedroom flat offers an excellent opportunity for first-time buyers, families, landlord and investors alike or those seeking a comfortable and affordable home in a peaceful setting. Priced at ?80,000, this property combines practical living with a convenient location, making it a fantastic addition to the local market.
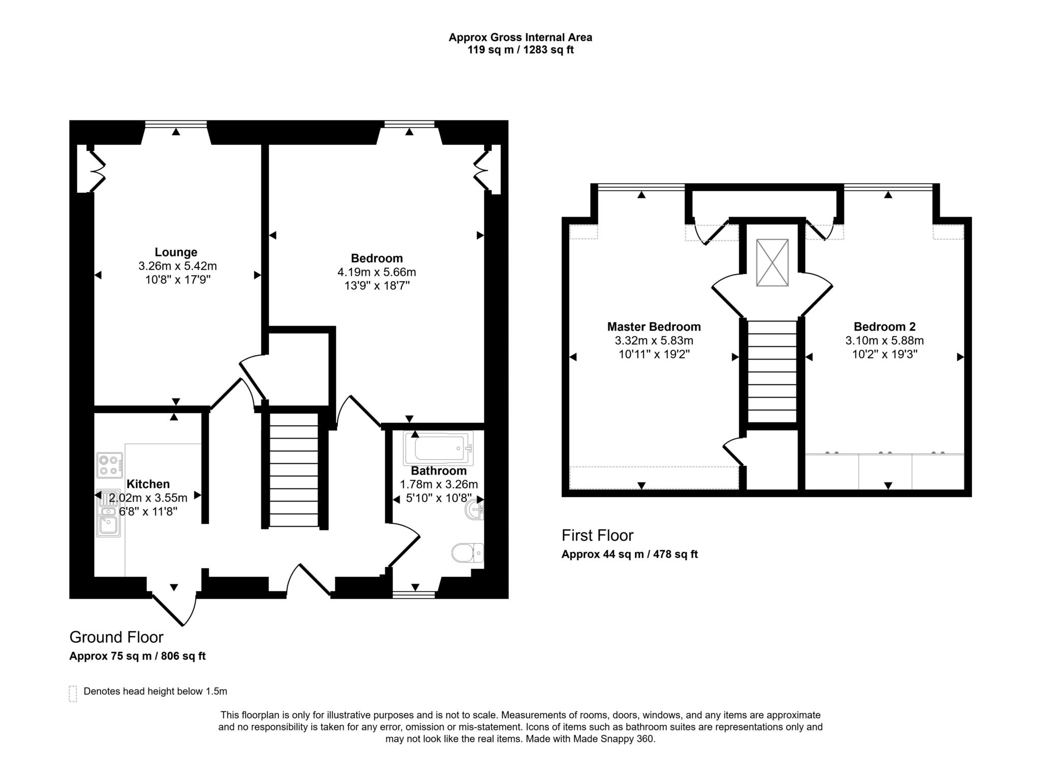
This substantial flat is bright and airy, The lounge area is generously proportioned, providing ample room for both relaxing and entertaining guests. Large windows flood the room with natural light, highlighting the neutral d?cor and creating a warm, inviting atmosphere. The double glazing ensures the flat remains quiet and cosy throughout the seasons.
The kitchen, adjacent to the reception area, is functional and well-equipped, featuring plenty of storage and work surfaces to accommodate all your culinary needs. Whether you enjoy cooking family meals or simply need a practical space for everyday use.
The flat boasts three comfortable bedrooms, each offering sufficient space for a double, wardrobes, and additional furniture. These rooms are versatile and can easily be adapted to suit your lifestyle, whether as bedrooms, a home office, or hobby rooms. The bathroom is neatly presented and includes a bath with an overhead shower, a wash basin, and a WC.
Additional benefits include gas central heating, which ensures the property remains warm and energy-efficient throughout the colder months. The double glazing not only contributes to the property`s energy efficiency but also provides excellent sound insulation, enhancing the overall comfort of the home.
Externally, the property is situated within a well-kept residential area, with easy access to local amenities, schools, and transport links. There is on-street parking available nearby, and the communal areas are maintained to a high standard, reflecting the pride of the local community.
Stewarton itself is a delightful town steeped in history and surrounded by beautiful Ayrshire countryside. Residents enjoy a strong sense of community and a range of local amenities including shops, cafes, and pubs. For those who appreciate the outdoors, there are numerous walking and cycling routes nearby, offering stunning views of the rolling hills and countryside.
The town is also known for its annual events, such as the Stewarton Bonnet Guild`s traditional celebrations, which bring the community together and attract visitors from across the region. For families, there are several well-regarded primary and secondary schools within easy reach, making this an ideal location for those with children.
For leisure and recreation, Stewarton offers a variety of options. The local golf course provides a pleasant challenge for enthusiasts, while nearby parks and green spaces are perfect for picnics, dog walking, or simply enjoying the fresh air. The town`s proximity to larger centres such as Kilmarnock and Glasgow means that a wider range of shopping, dining, and entertainment options are just a short drive away.
Transport links are excellent, with regular bus services connecting Stewarton to surrounding towns and cities. The nearby Stewarton railway station offers direct routes to Glasgow and beyond, making commuting straightforward for those working further afield.
In summary, this three-bedroom flat in Stewarton represents a superb opportunity to acquire a comfortable and well-appointed home in a friendly and accessible location. With its practical layout, modern conveniences, and attractive price point, it is sure to appeal to a wide range of buyers. Early viewing is highly recommended to fully appreciate all that this property and the charming town of Stewarton have to offer.
LOUNGE - 10'7" (3.23m) x 17'9" (5.41m)
KITCHEN - 13'9" (4.19m) x 18'7" (5.66m)
BATHROOM - 5'10" (1.78m) x 10'8" (3.25m)
BEDROOM THREE - 13'9" (4.19m) x 18'7" (5.66m)
BEDROOM TWO - 10'2" (3.1m) x 19'4" (5.89m)
MASTER BEDROOM - 11'0" (3.35m) x 12'7" (3.84m)
Notice
Please note we have not tested any apparatus, fixtures, fittings, or services. Interested parties must undertake their own investigation into the working order of these items. All measurements are approximate and photographs provided for guidance only.
Council Tax
East Ayrshire Council, Band C
Utilities
Electric: Mains Supply
Gas: Mains Supply
Water: Mains Supply
Sewerage: Mains Supply
Broadband: None
Telephone: None
Other Items
Heating: Gas Central Heating
Garden/Outside Space: No
Parking: No
Garage: No

Agent Statistics (Based on 0 Reviews) :