The UK's Largest Customer Review Website for the Property Industry
The UK's Largest Customer Review Website for the Property Industry
Back to Property Listings
High Street, Haddenham, Ely
Are you looking for something with a bit of character & history? Take a look at this former public house, located on the high street of the popular village of Haddenham, just 6 miles to the City of Ely.
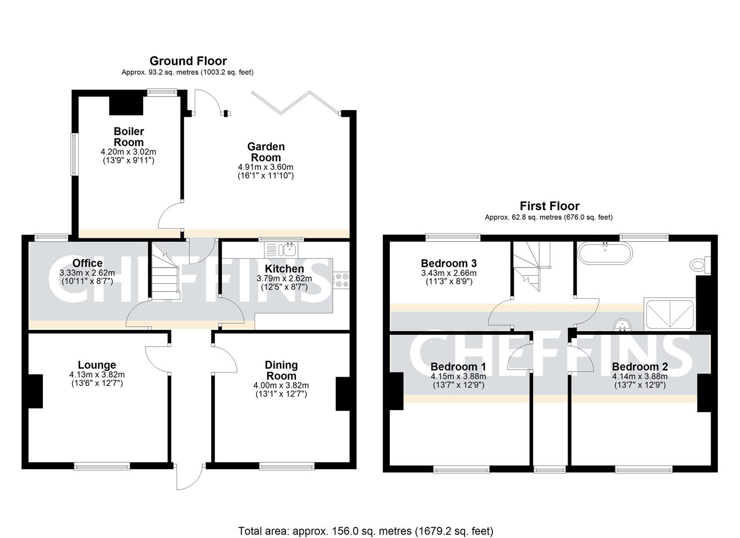
This spacious home offers deceptive accommodation and includes an entrance hall, a generous lounge, dining room, office, fitted kitchen, boiler room, a stunning garden room with bi-fold doors overlooking the garden, 3 double bedrooms and a family bathroom.
Outside the property is an enclosed mainly laid to lawn rear garden with raised flower beds, a paved patio, brick outbuildings and gated access at the rear. Beyond the garden is a private gravelled driveway providing off road parking and access to the double garage. Beyond this is a further, large mainly laid to lawn garden with mature shrubs & trees to borders with fields beyond.
This fabulous family home is sat on a plot of an estimated 0.25 acre plot (sts) and offered for sale with NO FORWARD CHAIN.
Entrance Hall - Door to front, radiator, stairs leading up to the first floor.
Lounge - Window to front, multi-fuel stove, radiator and a granite hearth for the stove.
Dining Room - Window to the front and radiator.
Kitchen - Fitted with a range of base and wall units, cupboards and drawers with worksurfaces over. Double oven, 4 ring electric hob with extractor hood over, plumbing for dishwasher, one and a half bowl sink with mixer tap over, radiator, space for under counter fridge and freezer and a window to the rear.
Office - Window to the rear and radiator.
Garden Room - Bi-fold doors to the rear over looking the gardens and radiator. Door to..
Boiler Room - Window to the side and rear. Fitted boiler.
First Floor Landing - Window to the front, radiator
Master Bedroom - Window to the front, fitted wardrobes and radiator.
Bedroom 2 - Window to front and radiator.
Bedroom 3 - Window to rear and radiator.
Family Bathroom - Fitted with a 4 piece suite, comprising of a roll top bath, a vanity wash hand basin, low level WC and a walk in shower, heated towel rail and window to the rear.
Outside - Gravelled driveway to the side, leading through to the rear of the property. The rear garden has paved patio, mainly laid to lawn, has raised flower beds, some brick out buildings and also has gated access at the very rear. Gravelled courtyard that leads to the detached double garage with up and over doors and has power and light connected. Beyond the garage there is further rear garden which is mainly laid to lawn, has mature trees and shrubs to borders with fields to the rear. There is also access at the rear of the back garden to a public footpath.
Viewing Arrangements - Strictly by appointment with the Agents.

Agent Statistics (Based on 754 Reviews) :