The UK's Largest Customer Review Website for the Property Industry
The UK's Largest Customer Review Website for the Property Industry
Back to Property Listings
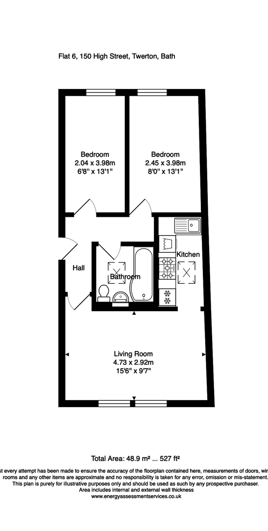
High Street, BA2 1BY
Modern top floor two double bedroom apartment, offered unfurnished from mid June. Located 2 miles from Bath city centre and with local amenities nearby.
Situated on the top floor, this apartment offers modern and bright accommodation in a convenient location at the end of the High Street. Transport links to Bath city centre are readily available nearby, as well as local amenities being on the doorstep - including shops, cafes, and supermarkets.
The property comprises a lounge / dining area, with adjacent kitchen including washing machine, fridge/freezer, gas hob and oven. There are two double bedrooms, both at the back of the property allowing for peace and quiet. The bathroom has a fitted bath with shower over, WC and basin.
Available from mid June, this property would suit a professional single, couple, or two sharers.

Agent Statistics (Based on 99 Reviews) :