The UK's Largest Customer Review Website for the Property Industry
The UK's Largest Customer Review Website for the Property Industry
Back to Property Listings
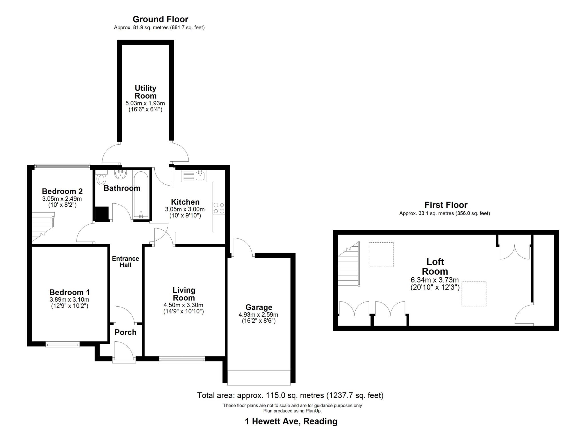
Hewett Avenue, Caversham Heights,Reading
A rare opportunity to purchase this super two/three bedroom semi detached property enjoying a beautiful country lane setting within the heart of Caversham Heights. The property offers spacious accommodation including an entrance porch leading to the well lit entrance hall. The living room is a good size, the kitchen has been recently installed benefiting from integrated appliances and the bathroom has also been recently installed. Bedroom one features a range of fitted wardrobes whilst bedroom two has a staircase rising to a further room currently used as an office. The property is approached via a gravel drive affording parking for several cars and leading to the garage with light, power and a courtesy door to the rear. The rear garden is established, approaches 80ft in length and enjoys a high degree of privacy. Hewett Avenue is conveniently placed for Caversham centre with its excellent range of restaurants and bars whilst Reading town centre and mainline station are within striking distance. Furthermore, the catchment schooling is Ofsted outstanding and parkland will be found just moments away.
Notice
Please note we have not tested any apparatus, fixtures, fittings, or services. Interested parties must undertake their own investigation into the working order of these items. All measurements are approximate and photographs provided for guidance only.
Council Tax
Reading Borough Council, Band E
Utilities
Electric: Mains Supply
Gas: None
Water: Mains Supply
Sewerage: None
Broadband: None
Telephone: None
Other Items
Heating: Gas Central Heating
Garden/Outside Space: Yes
Parking: Yes
Garage: Yes

This property is marketed by

Bridges Estate Agents (Reading) - Caversham Reading, Reading, RG4
3.7/5 Rating
(3) reviews
Agent Statistics (Based on 3 Reviews) :