The UK's Largest Customer Review Website for the Property Industry
The UK's Largest Customer Review Website for the Property Industry
Back to Property Listings
Hemdean Road, Caversham
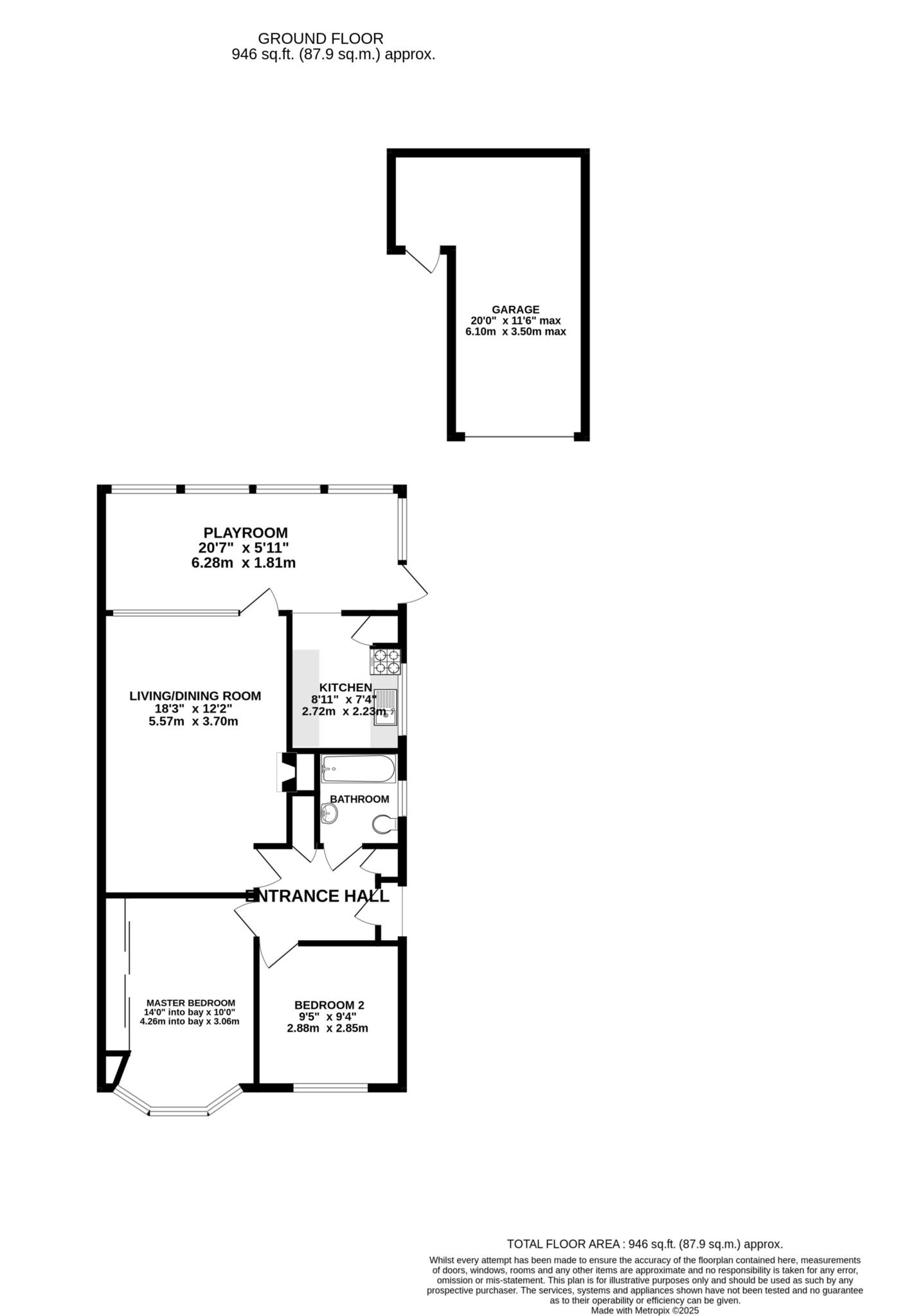
Masons are proud to offer to the market this recently refurbished two bedroom detached bungalow presented in excellent condition throughout and situated next to Bugs Bottom playing fields & woods, as well as being close to local amenities, including shop, bus stop, doctors and schools. Located close to Caversham & Reading centres the property benefits from a brand new boiler & radiators throughout, new carpet & wood parquet flooring, new bathroom, re-plastered walls & cielings, redecorated throughout and new kitchen units & worktops. Further benefits include an 18ft living/dining room with fireplace, 20ft playroom, a 14ft master bedroom with new built-in wardrobe & shelving, off road parking & block paved driveway, a 20ft garage with light & power and a private garden with patio. Viewing recommended.
Entrance hall, has doors to:
Living/dining room: 18`3" x 12`2" recently refurbished parquet flooring & fireplace.
Playroom: 20`7" x 5`11" double glazed, new carpets.
Kitchen: 8`11" x 7`4" double glazed, newly fitted units & worktops and larder.
Master bedroom: 14`0" x 10`0" into double glazed bay window, newly fitted built-in wardrobes & shelving.
Bedroom 2: 9`5" x 9`4" double glazed front aspect.
Bathroom: double glazed, newly fitted bath with shower over, low level wc, wash basin & mirrored cabinet.
Loft space with newly fitted combination boiler & new insulation.
Outside: To the front there is new hard standing for parking and a block paved driveway leading to the garage. The garage has light & power and a separate access and could be converted into a utility room if desired. To the rear there is a patio area and tiered garden which is mainly laid to lawn, with a variety of plants & shrubs.
Notice
Whilst every care has been taken in the preparation of these particulars, and they are believed to be correct, they are not warranted and intending purchasers/lessees should satisfy themselves as to the correctness of the information given.Please note we have not tested any apparatus, fixtures, fittings, or services. Interested parties must undertake their own investigation into the working order of these items. All measurements are approximate and photographs provided for guidance only.
Council Tax
Reading Borough Council, Band D
Utilities
Electric: Unknown
Gas: Unknown
Water: Unknown
Sewerage: Unknown
Broadband: Unknown
Telephone: Unknown
Other Items
Heating: Not Specified
Garden/Outside Space: Yes
Parking: Yes
Garage: Yes

Agent Statistics (Based on 72 Reviews) :