The UK's Largest Customer Review Website for the Property Industry
The UK's Largest Customer Review Website for the Property Industry
Back to Property Listings
Heath Close, Harlington, Middlesex, UB3 5LA
Council tax band: C
2 BED MAISONETTE / CONVENIENT LOCATION: This 2 bedroom maisonette situated within walking distance of Harlington village centre with its shopping facilities, William Byrd school and bus routes to the Bath Road and London Heathrow Airport. The M4/M25 networks and Hayes mainline station to Paddington are also only a short drive away.
This Property is available immediately this extremely spacious property features a good size lounge, good size bedrooms and a three-piece bathroom.
Other benefits include double glazed windows, gas central heating, residents permit parking and private rear garden.
* Minimum Tenancy 6 Months
* Deposit £1,450
* Council Tax Band C
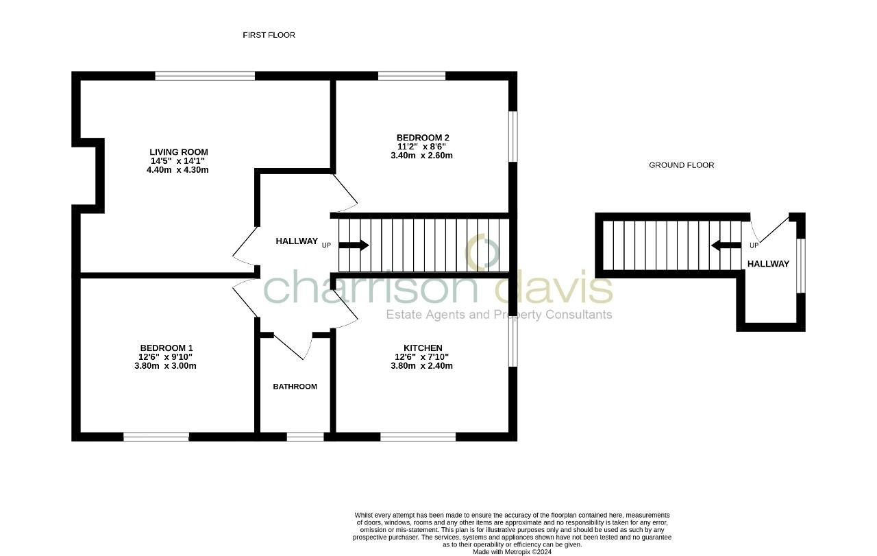
Entrance Hall
Fitted carpet and stairs leading to first floor.
Living Room
14' 5'' x 14' 1'' (4.4m x 4.3m) Fitted carpet, radiator and double glazed window to front aspect.
Kitchen
12' 5'' x 7' 10'' (3.8m x 2.4m) Vinyl flooring. Fitted wall and base units with worktops to include a single drainer sink unit, gas hob, extractor fan hood, electric oven, space for fridge/freezer, plumbing for washing machine and tiled wall. Double glazed windows to side and rear aspect.
Bedroom 1
12' 5'' x 9' 10'' (3.8m x 3m) Fitted carpet, radiator and double glazed window to rear aspect.
Bedroom 2
11' 1'' x 8' 6'' (3.4m x 2.6m) Fitted carpet, radiator and double glazed window to front aspect.
Bathroom
Vinyl flooring. Three-piece bathroom suite to include a panel enclosed bath with electric shower, pedestal hand basin, low level W.C. and part tiled walls and splashbacks. Frosted double glazed window.
Private garden
Laid to lawn
Council Tax
Band C.
About Harlington
Harlington is a district of the London Borough of Hillingdon, on the northern perimeter of London Heathrow Airport. The district adjoins Hayes to the north and shares a railway station with the larger district, which is its post town, on the Great Western Main Line to Paddington. The Crossrail project linking the Hayes and Harlington station to Canary Wharf .The journey time to Canary Wharf will be just 34 minutes. Other London stations will include Bond Street, Tottenham Court Road, Farringdon and Liverpool Street.
The village is surrounded by Green Belt land and open fields and also contains a parade of shops to include a Pharmacy, Co-operative Convenience store, Newsagents, a variety of restaurants and fast food outlets and a Post Office. There are also four public houses: The Great Western, The Pheasant, The Wheatsheaf, and The White Hart. The village also boasts two churches, a Baptist church and a Church of England church, St Peter & St Paul's and William Byrd School. The village High Street is also home to the Harlington Locomotive Society and West London Models.

Agent Statistics (Based on 192 Reviews) :