The UK's Largest Customer Review Website for the Property Industry
The UK's Largest Customer Review Website for the Property Industry
Back to Property Listings
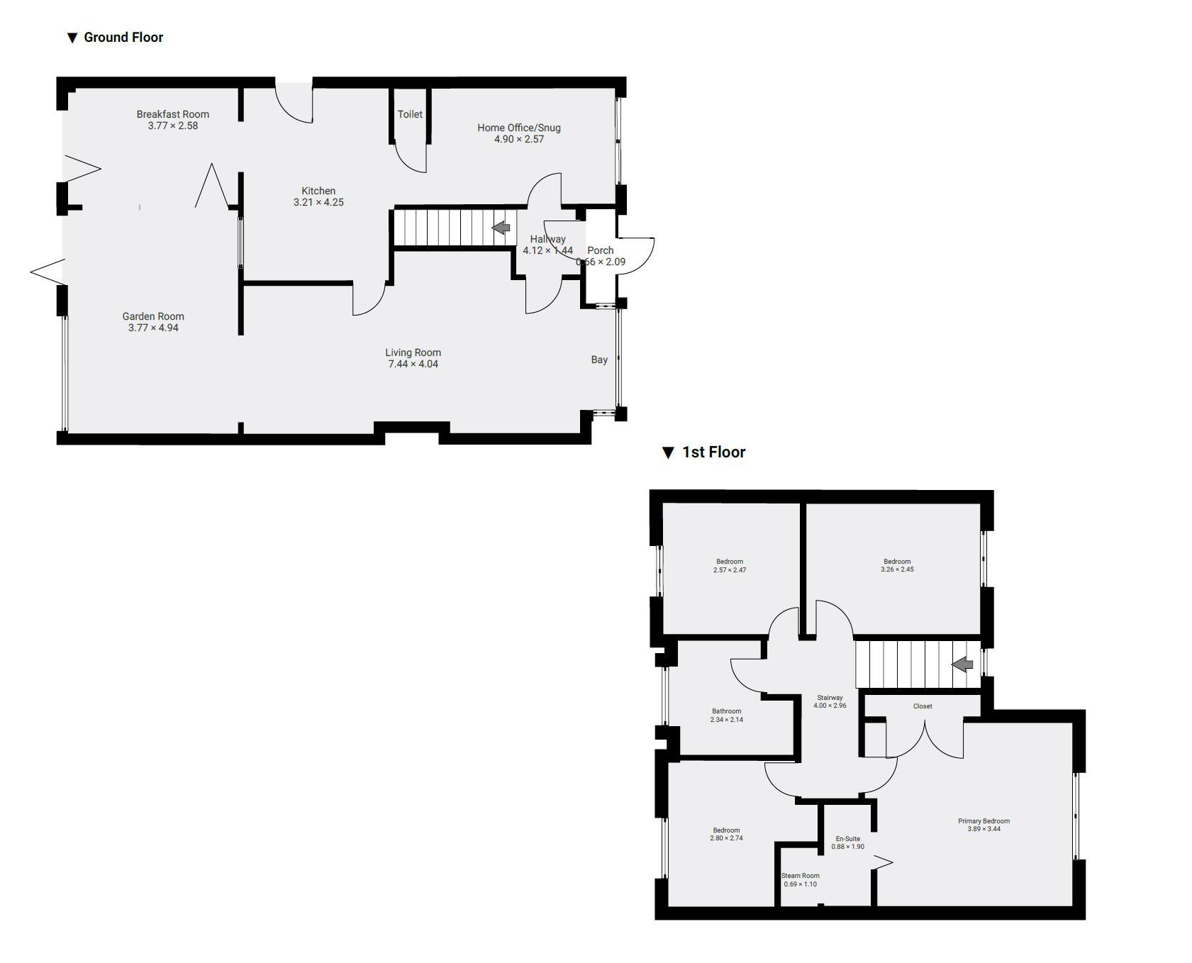
Hawthorn Brook Way, New Oscott, Birmingham, B23 5LF
BEING SOLD WITH NO UPWARD CHAIN VACANT POSSESSION UPON COMPLETION- Paul Carr are thrilled to offer for sale this wonderful detached residence, beautifully positioned in a lovely cul-de-sac location on the highly desirable New Oscott Development, close to a park andeasy access to Boldmere and New Oscott with plenty of shops and restaurants. There are also great transport links including buses and Train station on Chester Road.The interiors are beautifully presented and very spacious throughout including the following, an entrance hall, guests cloakroom, stylish family lounge with Cinema projector and screen, fabulous for entertaining both family and friends. To the rear is an amazing orangery with bi-folding doors out to the garden that is currently used as a second reception room and further bi-folding doors to a dining/breakfast area that lead into a modern fitted kitchen. There is also a home office/snug that was originally the garage. What an array of accommodation being offered to you.The first floor does not disappoint it has a master bedroom with luxury en-suite, that has a shower with steam facility. three further excellent bedrooms and a modern bathroom.Outside is a fore garden with parking and to the rear is a very pretty enclosed garden with an abundance of flowering and verdant trees and shrubs, seating area that is ideal for alfresco dining and rear garden shed. There is also a wide side area that gives access to the front.Whoever purchases this property will be incredibly lucky and an early internal is essential so that you do not lose out.
All Viewings are via selling agents Paul Carr Boldmere Sutton Coldfield 0121 321 3003.
Identity Verification Fee - We are required by law to conduct anti-money laundering checks on all those buying a property as part of our due diligence. As agents acting on behalf of the seller, we are required to verify the identity of all purchasers once an offer has been accepted, subject to contract. The initial checks are carried out on our behalf by Lifetime Legal . A non-refundable administration fee of £40 + VAT (£48 including VAT) applies which covers the cost of obtaining relevant data and any manual checks and monitoring which might be required. This fee will need to be paid by you in advance of us issuing a memorandum of sale, directly to Lifetime Legal, and is non-refundable.

This property is marketed by

Paul Carr Estate Agents - Sutton Coldfield, Sutton Coldfield, B73
4/5 Rating
(1984) reviews
Agent Statistics (Based on 1984 Reviews) :