The UK's Largest Customer Review Website for the Property Industry
The UK's Largest Customer Review Website for the Property Industry
Back to Property Listings
Harwill Avenue, Churwell
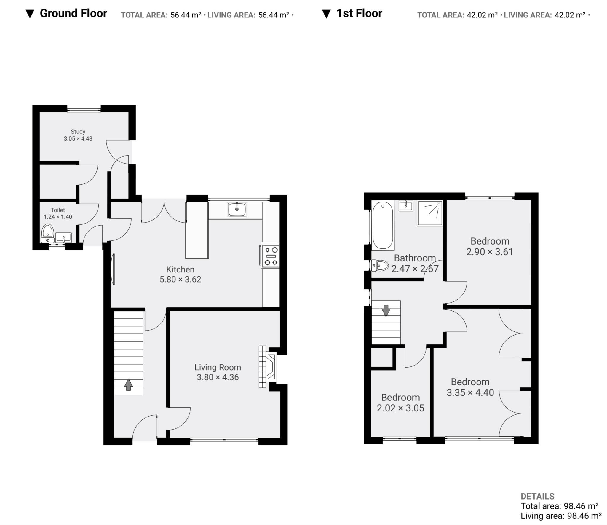
Upon entry, you`re welcomed into a stunning entrance hallway that immediately sets the tone for the rest of the home. From here, you step into the spacious living room, where a feature fireplace creates a warm focal point and large windows flood the space with natural light, enhancing the rooms bright and inviting atmosphere. The hallway also provides access to a handy understairs storage cupboard and flows effortlessly into the heart of the home the impressive fully fitted kitchen diner. This beautiful space is designed with both practicality and aesthetics in mind, offering ample worktop and cupboard space, an integrated dishwasher and a feature backsplash. A boiling/filtered water tap and a breakfast bar for casual dining complete this contemporary kitchen. French doors at the rear allow natural light to pour in while providing direct access to the garden, seamlessly connecting indoor and outdoor living. Adjoining the dining area is a dedicated utility room, providing space and plumbing for a washer and dryer, as well as access to a convenient downstairs W/C. This area also leads to a separate office space.
Upstairs, the property continues to impress with two generously sized double bedrooms, both featuring fitted wardrobes that provide ample storage. Whilst a third bedroom is currently used as a home office. The luxurious, fully tiled four piece family bathroom is a stand out feature of the home, comprising a free standing bath, a spacious double walk-in shower unit, and under floor heating for added comfort.
Externally, the property is equally impressive. A large driveway to the front provides off road parking for multiple cars. To the rear, the garden is designed with low maintenance in mind, featuring a paved patio area for outdoor dining and a neatly kept lawn ideal for entertaining. This property is located in a very popular area of Morley, with great public transport link and good access to local amenities. Early viewing is highly recommended to fully appreciate all that this property has to offer.
Notice
Please note we have not tested any apparatus, fixtures, fittings, or services. Interested parties must undertake their own investigation into the working order of these items. All measurements are approximate and photographs provided for guidance only.
Council Tax
Leeds City Council, Band C
Utilities
Electric: Mains Supply
Gas: Mains Supply
Water: Mains Supply
Sewerage: Mains Supply
Broadband: Cable
Telephone: None
Other Items
Heating: Not Specified
Garden/Outside Space: Yes
Parking: Yes
Garage: No

Agent Statistics (Based on 0 Reviews) :