The UK's Largest Customer Review Website for the Property Industry
The UK's Largest Customer Review Website for the Property Industry
Back to Property Listings
Harvey Road, Leytonstone
Tucked away just off Leytonstone High Street, we're absolutely thrilled to present this charming three-bedroom Victorian cottage - brought to you by Petty Son & Prestwich.
Perfectly positioned for both convenience and greenery, this three-bedroom period cottage is a mere 100 yards away from Leytonstone High Road, which benefits from the recently opened M&S Food Hall, and Leytonstone Central Line station is just 0.2 miles on foot - making commuting into the City or West End a breeze. For those who crave outdoor space, you're also just a short stroll (0.2 miles) from the stunning Wanstead Flats - offering expansive green space, cycle routes and picturesque walks all year round; a true blend of urban buzz and natural beauty.
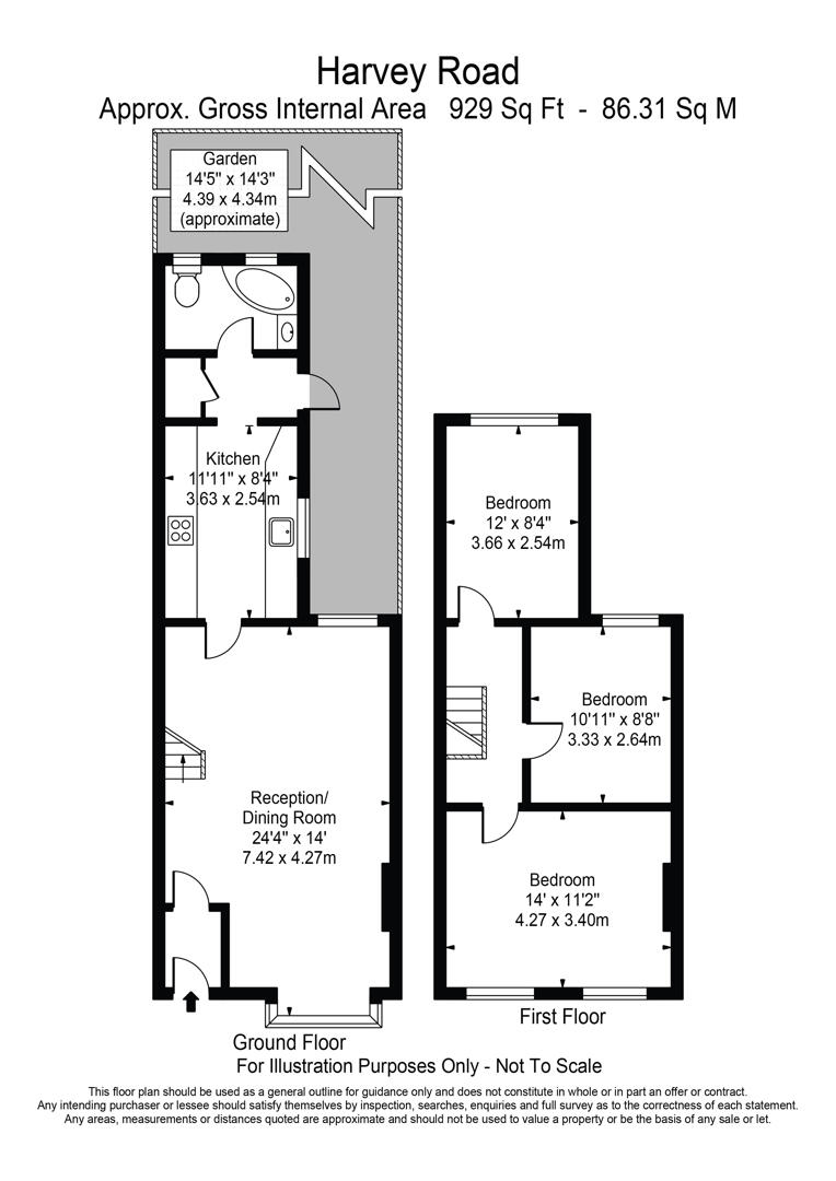
The home itself boasts the classic period cottage layout, thoughtfully opened up to suit modern living. The original reception rooms have been combined to create a generous through-lounge - a bright, airy space flooded with natural light thanks to the elegant bay window at the front and a stylish full-height window at the rear, offering lovely views over the garden. The sleek, contemporary kitchen leads through to a handy rear lobby and the family bathroom. Upstairs, you'll find three well-proportioned bedrooms. For those with an eye for reconfiguring space, there's scope to convert one of the bedrooms into an upstairs bathroom - freeing up the current bathroom and kitchen area to create a spacious kitchen-diner, should you wish to reimagine the layout.
Energy efficiency has also been given a recent boost, with an upgraded boiler, radiators, windows and doors installed in recent years - helping to keep the home warm and energy bills manageable.
To the rear is a private, low-maintenance cottage garden, currently laid with AstroTurf, ideal for those who prefer ease, but with real potential for anyone keen to roll up their sleeves and get planting.
Offered to the market chain-free, this is a brilliant opportunity for first-time buyers, upsizers or investors alike.
EPC Rating: C70
Council Tax Band: C
An Anti-Money Laundering fee will be applicable to all purchasers at a cost of £5.00 per person.
Reception/Dining Room - 24'4" x 14' -
Kitchen - 11'11" x 8'4" -
Bedroom - 14' x 11'2" -
Bedroom - 10'11" x 8'8" -
Bedroom - 12' x 8'4" -

Agent Statistics (Based on 315 Reviews) :