The UK's Largest Customer Review Website for the Property Industry
The UK's Largest Customer Review Website for the Property Industry
Back to Property Listings
Hart Street, Linwood, PA3
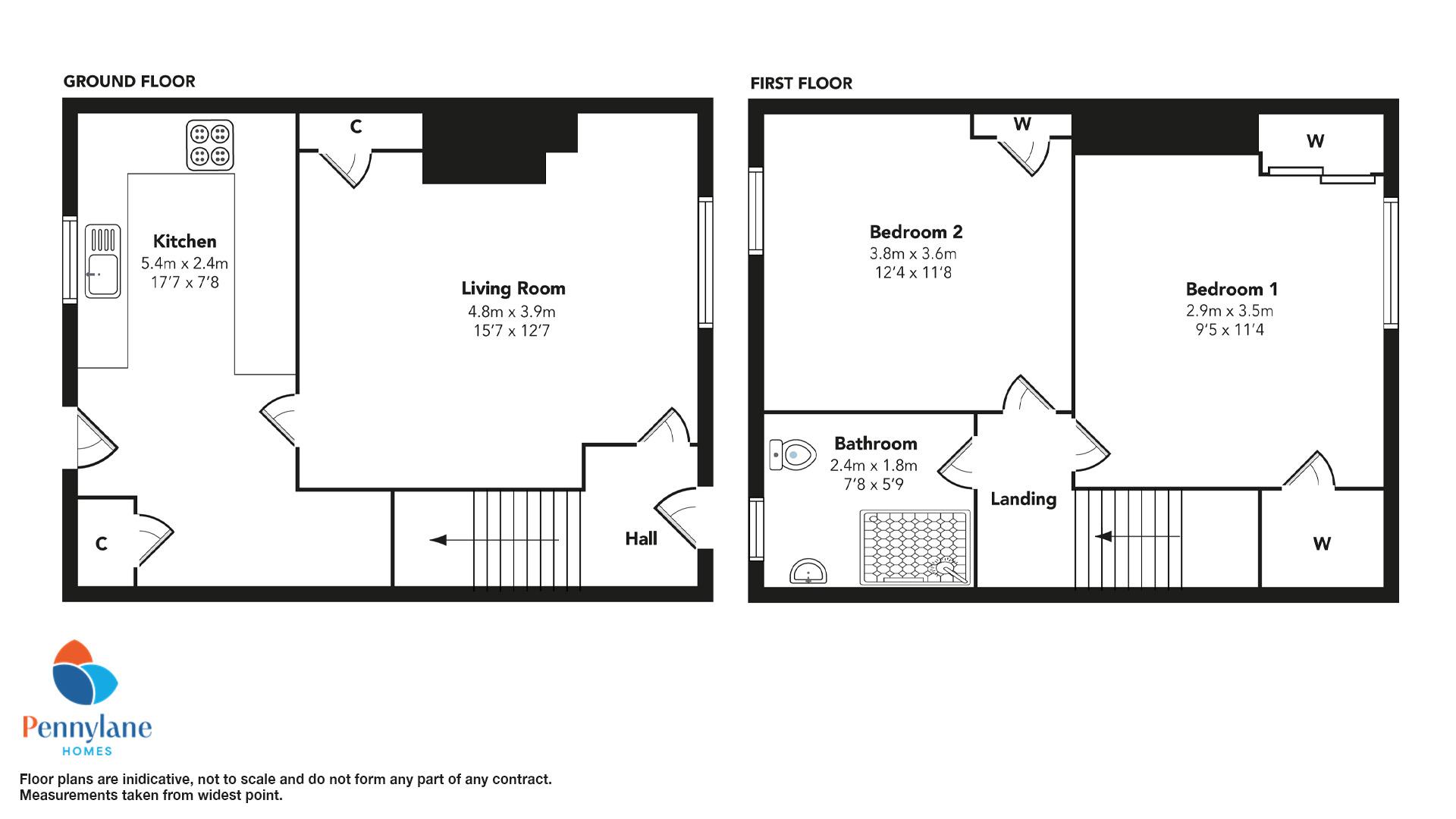
The property is accessed via a small entrance hallway with stairway to upper level. The lounge, to the front of the property, has a large window and recently installed media wall with built in shelving and a convenient storage cupboard. The kitchen, accessed via the lounge, comprises a combination of wall and floor mounted units with integrated oven, hob and chimney style hood and space for additional appliances. There is space for a small dining table and convenient storage cupboard.
On the upper level, the master bedroom is located to the front of the property with built in storage cupboard and fitted wardrobes offering fantastic storage. Quietly situated to the rear, there is a further double bedroom with storage cupboard and mirror fronted fitted wardrobes. The family bathroom comprises a modern three piece suite including walk in shower cubicle.
The property benefits from gas central heating and double glazing throughout.
Externally there is a private garden to the front and large enclosed garden space to the rear with raised deck area.
Hart Street is a popular residential area within the heart of Linwood. All local amenities are available a short walk from the property and local schooling is readily available nearby. The area`s close proximity to the M8 motorway and Glasgow Airport make this a perfect spot for an easy commute.
Notice
Please note we have not tested any apparatus, fixtures, fittings, or services. Interested parties must undertake their own investigation into the working order of these items. All measurements are approximate and photographs provided for guidance only.
Council Tax
Renfrewshire Council, Band B
Utilities
Electric: Mains Supply
Gas: Mains Supply
Water: Mains Supply
Sewerage: Mains Supply
Broadband: Unknown
Telephone: Unknown
Other Items
Heating: Gas Central Heating
Garden/Outside Space: Yes
Parking: No
Garage: No

Agent Statistics (Based on 197 Reviews) :