The UK's Largest Customer Review Website for the Property Industry
The UK's Largest Customer Review Website for the Property Industry
Back to Property Listings
Harefield Road, Uxbridge
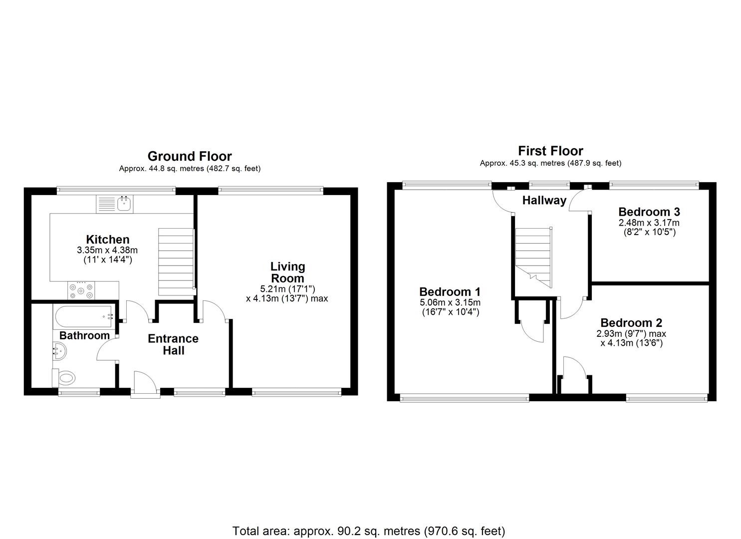
Cameron are delighted to offer this FULLY REFURBISHED, three bedroom maisonette located within a short walk of Uxbridge Town. This property has undergone full refurbishment, new bathroom/kitchen, new carpets, radiators etc! Offered to the market UNFURNISHED, ideal for a small family and available to move-in early February 2026.
Description - Cameron are delighted to offer this FULLY REFURBISHED, three bedroom maisonette located within a short walk of Uxbridge Town.
On the ground-floor, the accommodation offers, an entrance hall, a good sized front reception room, brand new family bathroom, a new kitchen that is fitted with a range of storage units and drawers, integrated oven with electric hob and all the relevant white goods,. The windows are brand new through-out the the rear windows give a great view overlooking a greenery area. To the first floor there are three double bedrooms with the main bedroom being a great size and offering built in storage. This property has undergone full refurbishment, new carpets, new radiators and is offered to the market UNFURNISHED, ideal for a small family and available to move-in early February 2026.
Situated just a short walk from Uxbridge Town centre with its shopping facilities, restaurants, bars and Metropolitan/Piccadilly line station. For the motorist the A40/M40 is a short drive away giving access to London and the M25. Uxbridge common is just a short walk away, as is Hillingdon Leisure Centre with its state of the art facilities and 50 metre indoor and outdoor swimming pools and there are well regarded schools within close proximity. CALL NOW FOR YOUR VIEWING.

This property is marketed by

Cameron Estate Agents - Uxbridge, Uxbridge, UB8
4.8/5 Rating
(1176) reviews
Agent Statistics (Based on 1176 Reviews) :